Den­si­fi­ca­tion à Lancy

Avec un projet qui se confronte aux nombreuses contraintes du site, le bureau genevois Jaccaud Spicher Architectes Associés remporte le concours Bachet-de-Pesay dans le canton de Genève.

Date de publication
13-07-2017
Revision
17-07-2017
Cedric van der Poel
Codirecteur d'espazium.ch, espace numérique des éditions pour la culture du bâti

Les changements juridiques dans l’aménagement du territoire, l’infrastructure du CEVA (liaison ferroviaire Cornavin – Eaux-Vives – Annemasse) ou encore les grands projets comme le PAV (la réaffectation de la zone industrielle encore en activité Praille Acacias Vernets en zone mixte d’habitation, de services et de loisirs) transforment lentement mais profondément le canton de Genève. Cette nouvelle condition urbaine contextualise les grands enjeux urbains actuels : pénurie de logements, densification, mixités sociale et programmatique, diversité économique ou encore relations à l’agriculture et à la périphérie. Résumée par la devise du Plan directeur cantonal 2030 – une « agglomération compacte, multipolaire et verte » – cette mue offre des opportunités de développement considérables dans des situations urbaines parfois complexes.
C’est le cas du concours Bachet-de-Pesay lancé en mai 2016 conjointement par la Fondation de placement Turidomus, la société Trèfle d’Or, la Ville de Lancy et la Fondation communale immobilière de Lancy (FCIL). Idéalement localisé à quelques encablures de la future halte du CEVA Carouge-Bachet, qui devrait dans un futur proche accueillir environ 30 000 passagers par jour, le concours portait sur deux sites non contigus séparés par la route de St-Julien, l’un des principaux axes d’entrée de la ville depuis la France (plan de situation).
Le premier site, d’une surface globale d’environ 12 000 m2, situé au nord de la route de St-Julien, est propriété en partie de Turidomus et de la Ville de Lancy qui a transféré ses droits à bâtir à la FCIL. Il est occupé aujourd’hui par cinq bâtiments de 108 logements dont la valeur patrimoniale n’a pas été jugée suffisante pour mériter une réhabilitation, et dont la construction et l’implantation urbaine ne répondent pas aux normes et exigences actuelles.
Le second site, au sud de la route de St-Julien, est occupé aujourd’hui par une maison de 1830. Consciente du potentiel urbain et économique de sa parcelle, la société Trèfle d’Or s’est associée au concours pour développer un projet de densification et de valorisation.
Le concours Bachet-de-Pesay portait donc sur la destruction et la reconstruction de deux sites. Le programme comprenait majoritairement du logement locatif et estudiantin pour les parcelles au nord de la route de St-Julien – la Cité Bachet-de-Pesay – et des bureaux, du commerce et du logement pour celle au sud, le bâtiment Trèfle d’Or (répartition programmatique).
Mené par l’architecte cantonal genevois, Francesco Della Casa, le jury a délibéré en deux tours et a porté son choix sur le projet « Charice » du bureau genevois Jaccaud Spicher Architectes Associés et l’Atelier Descombes Rampini pour la partie paysagère du programme.

Un site aux contraintes multiples


Situé à l’entrée sud de Genève et de la zone industrielle en mutation du PAV, les deux sites en question se trouvent entourés de morphologies urbaines et d’infrastructures diverses et variées : un urbanisme de grandes cours aux qualités paysagères affirmées au nord-est, une série d’infrastructures ferroviaires et publiques au nord-ouest et à l’ouest (dépôt des trams, voies de triage, gare du CEVA et future patinoire) (plan de situation). De plus, la route de St-Julien, qui traverse le périmètre du concours, impose de nombreuses contraintes liées à l’ordonnance sur la protection contre les accidents majeurs (OPAM) et l’ordonnance sur la protection contre le bruit (OPB).
La force du projet du bureau genevois est d’avoir réussi à intégrer ces nombreuses contraintes sans s’y soumettre.
Dans un souci de continuité urbaine le bâtiment en forme de L de la Cité Bachet-de-Pesay s’insère dans le tissu existant en venant compléter les îlots urbains. Une cour paysagère en pleine terre, généreuse et protégée des nuisances, vient ainsi s’ouvrir aux quartiers voisins et s’inscrire dans la charpente paysagère du grand territoire formée notamment par la promenade des Crêtes (plan).
La façade extérieure sud, fragmentée par de légers plis, vient s’aligner à une distance sécuritaire de 26 mètres à la route de St-Julien (visualisation façade). La façade extérieure nord complète à grande échelle la figure de la Promenade des Crêtes et « s’affirme avec un gabarit à la mesure de son vis-à-vis ».
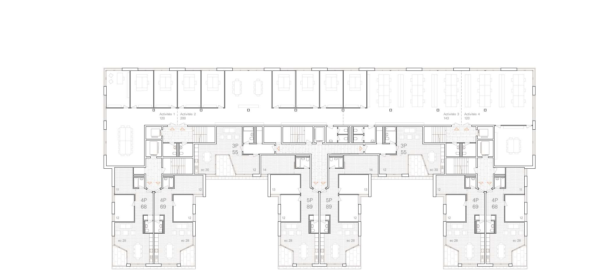
La volumétrie de la façade intérieure s’articule en une série de redents optimisant, d’une part, les possibilités d’ouverture protégées et, d’autre part, offrant aux logements des situations soit traversantes, soit d’angle à double orientation (plan d'étage type). Le rez-de-chaussée est percé d’une série de passages assurant la perméabilité du site entre la cour intérieure et la route de St-Julien.
Au niveau de la répartition typologique , le bureau genevois a également fait preuve d’ingéniosité. Les logements pour étudiants regroupés à l’angle nord-est du bâtiment se structurent autour d’une cour où se trouve un dispositif de circulation affirmé, visible depuis la rue et conférant au bâtiment un sentiment d’étrangeté contextuelle. Aussi bien espace circulatoire que de convivialité qui ne cause pas de nuisances aux voisins, cette cour permet une double orientation aux logements. De grands balcons partagés sont situés tous les trois étages, face au paysage.
Les surfaces commerciales exigées par le programme sont réparties au rez-de-chaussée de la façade-pignon sud-est bordée par un espace public arborisé.
De l’autre coté de la route de St-Julien, re-caractérisée en boulevard urbain par des interventions paysagères des deux côtés de la route, le site Trèfle d’Or suit la même logique face aux contraintes, mais cherche une contextualité à plus grande échelle. Les bureaux sont répartis dans un premier corps bâti qui protège du bruit les logements situés aux étages supérieurs. La morphologie en peigne des logements démultiplie les situations d’angle et les vues sur le grand paysage (plan d'étage type). Initialement prévu d’une hauteur de 50 mètres, le jury a exigé qu’il soit réduit à environ 33 mètres, lui diminuant malheureusement par la même occasion son caractère de tête de la route de St-Julien et son rapport visuel avec le PAV.

Une architecture de réponses


Dans le grand entretien qui ouvre la monographie De aedibus qui lui est consacrée, Jean-Paul Jaccaud souligne que « à Genève, la qualité du tissu urbain résulte souvent de réponses directes à l’urbanisme et aux contraintes réglementaires ». A plusieurs reprises, l’architecte genevois a démontré sa capacité à répondre de manière efficace et élégante à des situations urbaines complexes et denses. A la rue du Cendrier (photo du projet), par exemple, l’immeuble de logements sociaux qu’il a réalisé en collaboration avec Sergison Bates architects propose une « médiation » réussie entre le tissu urbain moderne de l’architecte Saugey et celui du 18e siècle.
Au quartier des Grottes (photo de la maquette), toujours à Genève, si le projet du concours gagné en 2012 rompt avec la régularité morphologique en îlot des bâtiments proches, il s’insère dans le quartier par le jeu visuel et circulatoire qu’il amorce avec ce dernier.
Ce que le bureau genevois a proposé pour le site Bachet-de-Pesay se situe dans cette catégorie de projets dont les décisions tant formelles qu’urbaines, semblent être guidées par les questions posées par la condition urbaine du site, ses contraintes juridiques et réglementaires ou encore les exigences programmatiques. Une fois encore, avec ce projet, le bureau a trouvé l’équilibre fragile et discret entre une architecture qui affirme son autonomie vis-à-vis du contexte et celle qui s’y plie docilement sans s’y confronter.
Pour reprendre Bernard Huet dont Jean-Paul Jaccaud a suivi l’enseignement à l’EPFL, le bureau Jaccaud Spicher architectes associés a développé un savoir-faire sophistiqué dans « l’art d’accommoder les restes, de recoudre des fragments hétérogènes pour reconstituer une logique de continuité ».

Retrouvez le palmarès et toutes les planches primées sur notre page concours

Sur ce sujet