De la haute cou­ture en bois

Cadre composé de coffrages verticaux et horizontaux, avec parement de bardeaux de deux types: l’architecte Aita Flury a enveloppé deux constructions nouvelles d’une école d’Aarau d’une «robe sur mesure» en mélèze.

Date de publication
09-08-2022

L’enveloppe d’aspect textile et les façades en mélèze sont la signature des constructions nouvelles du jardin d’enfants triple et des structures familiales et parascolaires de jour (FuSTA) d’Aarau Rohr. Dans un environnement plutôt indéfini, ils marquent le territoire et renvoient à l’histoire des lieux: l’activité de l’ancien village de Rohr était dominée par l’agriculture jusqu’au début du 20e siècle. C’est via la Hinterdorfstrasse que l’on quitte ce quartier où la structure villageoise est encore palpable par endroits. Quelques vieilles granges en bois isolées témoignent de cette histoire.

Alors que ces bâtiments utilitaires sont construits selon les techniques traditionnelles de charpenterie, la construction en bois obéit aujourd’hui à d’autres règles. La préfabrication avancée permet une grande précision dans la planification et une exécution sur site indépendante de la météo, tout en obligeant à penser et travailler en termes de système. Fondée sur de tels paramètres, la conception influence par ailleurs l’expression des constructions.

Explorer les propriétés des matériaux

À Aarau, l’architecte Aita Flury a réalisé une façade qui s’affranchit d’une telle dépendance pour donner corps à une enveloppe vivante, chaleureuse et durable. La priorité: l’exploration des qualités d’expression matérielle. L’effet spatial découle de l’utilisation réfléchie du bois comme matériau de construction linéaire et de ses exigences structurales. Non seulement l’articulation des façades permet le respect de l’échelle, mais elle ancre aussi la construction nouvelle dans son environnement et est porteuse d’identification. Le thème du «remplissage» renvoie à la façade de l’école existante, dont la structure porteuse en béton armé est remplie en briques en terre cuite, et à celle de l’ancien gymnase, est elle aussi remplie. Dans les constructions nouvelles, les coffrages à rainure et à crête constituent l’élément encadrant et confèrent aux façades leur rythme structurant. Les remplissages forment des champs de bardeaux et l’enveloppe en bois est réalisée en mélèze durable.

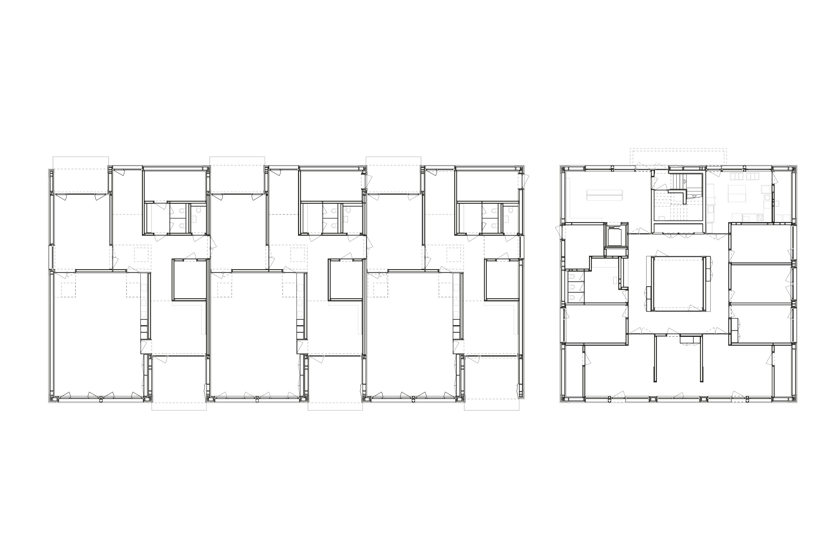
Les constructions nouvelles complètent le complexe existant de l’école Stäpfli, tandis que leur disposition fait écho à leurs volumes légèrement décalés. Ils forment avec les bâtiments scolaires une cour perméable. À l’ouest et à l’est, deux cabanes de jardin définissent l’espace extérieur du jardin d’enfants au sein de cette cour. Par leur matérialisation, les façades en mélèze s’inspirent des anciens bâtiments utilitaires situés à proximité.

L’équilibre entre les surfaces de bardeaux et les coffrages à rainure et à crête rappelle la marqueterie en ébénisterie. Deux différents formes d’éléments de bardeaux fendus mécaniquement – arrondies pour les façades frontales et lisses pour les façades côté rue et côté jardin – confortent les hiérarchies urbanistiques. Dans le même temps, l’enveloppe en bois de mélèze s’incarne comme une matière et souligne l’ordre spatial qu’elle confère aux deux constructions. L’alignement des trois écoles maternelles et de leurs salles principales surélevées ainsi que l’accueil de jour positionné en tête de bâtiment rappellent le «Kindergartenhaus» de Wiedikon (Zurich) signé Hans Hoffmann et Adolf Kellermann (1928-1932).

Bardeaux en bois de mélèze
Les bardeaux en bois de mélèze offrent un revêtement très résistant. Ils ne sont pas traités, car les résines du mélèze protègent naturellement contre la pourriture. Rappelons également que les mélèzes poussent surtout à haute altitude et que leur croissance est donc généralement très lente. Ce bois dit «à cernes fins» est extrêmement résistant aux intempéries. Les bardeaux de mélèze fendus mécaniquement sont solidarisés à l’aide d’un fil pour former des rustines. Cette technique permet de monter une bande de bardeaux d’environ 80 cm de large.

Une construction différenciée

Les corps de bâtiment simples et cubiques de l’école maternelle et des FuSTA sont subtilement modulés. L’encadrement en coffrage à rainure et à crête souligne le cubage du bâtiment et rend lisible l’idée de «coupe» des différentes hauteurs de plafond. Les loggias encastrées qui rythment le corps du bâtiment sont entièrement revêtues de bardeaux et parachèvent l’enveloppe en bois. Dans le volume à deux étages des FuSTA, les revêtements en apparence continus des jambages de fenêtres et des tuyaux de descente des eaux pluviales soulignent la verticalité de la façade d’entrée. Le coffrage à rainure et à crête sert de marqueur à l’étage et se lit aussi comme un attique. Sur les façades à un étage du jardin d’enfants, les ouvertures de fenêtres côté cour et les loggias accueillant les entrées sont insérées avec précision. Des demi-reliefs figuratifs en bois – une œuvre de l’artiste zurichois Severin Müller – accompagnent les entrées parées de bardeaux en guise d’éléments intégraux de l’enveloppe du bâtiment.

Le remplissage, qui a permis à Flury de hiérarchiser les façades, a nécessité de gros efforts de planification, les revêtements en bois ayant nécessité différents supports et donc différentes structures de façade. Les panneaux de bardeaux ne sont pas ventilés par l’arrière, à la différence des coffrages à rainure et à crête qui les encadrent. De plus, le support ventilé change une nouvelle fois, les coffrages verticaux nécessitant une grille à croisillons, alors que les coffrages horizontaux se contentent d’un support à lattes vertical. Dans chaque champ de façade, les transitions et les détails des raccordements ont été spécialement mis au point pour permettre d’harmoniser la superposition des couches.

La précision de conception poussée de tous les plans de façade a nécessité une planification hors pair afin d’intégrer dans les façades et d’ajuster au millimètre les autres éléments contribuant à l’expression, tels que les pilastres métalliques, le 1% artistique, les parois de fenêtres métalliques et les portes extérieures.

Cet article a été publié dans le numéro spécial  «Fassaden | Façades | Facciate – Constructions contemporaines en Suisse».

Kiga + FuSTA, Hinterdorf­strasse 2a/2b/2c/4, Aarau
Maîtrise d’ouvrage
Ville d’Aarau

 

Architecture
Aita Flury Architektin EPF SIA FAS, Zurich

 

Structure porteuse
Pirmin Jung Schweiz, Rain

 

Conception de la façade
Aita Flury Archi­tektin, Zurich, Pirmin Jung Schweiz, Rain

 

Réalisation de la façade
PM Mangold, Ormalingen

 

Planification CVCS
Abicht Aarau, Aarau

 

Physique du bâtiment
Pirmin Jung Schweiz, Rain

 

Architecte paysager
Müller Illien, Zurich

 

1 % artistique
Severin Müller, Zurich

 

Facts & Figures
Concours, 1er prix
2015

 

Planification
2015-2020

 

Livraison
2020

 

Surface bâtie (SIA 416)
surface de plancher: 1551 m2; surface utile: 1060 m2

 

Volume (SIA 416)
6629 m2

 

Coûts de construction
(CFC 2) env. 7 Mio CHF, (CFC 1-9) env. 8.2 Mio CHF

 

Matériaux de façade
différents types de bardeaux de mélèze; coffrages horizontaux et verticaux; fenêtres en bois/alu; huisseries et pilastres en aluminium thermolaqué

 

Installation PV sur le toit
Éco-label/label énergétique: Minergie-Eco

 

Distinctions
«Construction de la semaine», Swiss Architects 2020

Remarque

 

1 Mario Rinke, Martin Krammer, Architektur fertigen. Konstruktiver Holzelementbau, Zurich 2021, p. 8.

Magazine

Sur ce sujet