Com­ment ha­bi­ter en 1964?

Comment souhaitait-on habiter en 1964? Quelles étaient les aspirations résidentielles des habitants dans ces années-là? Ces questions sont à la base de la conception de cinq appartements témoins, grandeur nature, exposés durant l’Expo 64 dans la section «La maison et l’homme» du secteur Art de vivre

Date de publication
17-11-2014
Revision
25-10-2015

L'exercice, effectué essentiellement par des architectes d’intérieur, se veut à la fois innovant et réaliste. Différentes familles ont en effet participé à la conception de ces appartements1, conçus d’après leurs désirs et besoins. Il s’agit donc de logements modèles, entièrement équipés, « dont rêvent cinq familles suisses, de condition bien déterminée »2, que « le visiteur pourra examiner à loisir du haut d’une passerelle ou d’allées de circulation latérales »3, ou parcourir à niveau (image).

Eloge du logement collectif en ville


Il est frappant de constater que ce sont des appartements et non des maisons individuelles qui font l’objet de cette mise en scène. Etonnant quand on songe aux résultats des premières enquêtes d’opinion, effectuées notamment en France dès les années 19504, qui apportaient la preuve éclatante que la très grande majorité de la population aspirait à vivre dans une maison individuelle, un idéal de vie que les Suisses devraient, semble-t-il, cautionner sans hésitation.
Etonnant aussi quand on pense qu’en 1964, les grands ensembles, les cités-satellites et même les «unités de voisinage» sont déjà la cible de critiques émanant non seulement de la population mais aussi de spécialistes – notamment des sociologues et des psychiatres – qui dénoncent l’échelle démesurée de ces opérations et les conditions de vie, souvent difficiles, de leurs habitants5.
Pour les concepteurs de la section, si d’une façon générale «le rêve de la villa n’est plus réalisable pour la grande majorité»6, ceci est encore plus vrai dans les grandes villes, où la construction d’une maison familiale n’est plus possible: «Les prix du terrain et les frais de construction en sont la raison. C’est pourquoi l’appartement dans l’immeuble locatif prédomine.»7
Or «la propriété par appartement est la maison familiale à l’étage, avec un jardin-terrasse»8. Cette conviction très contemporaine correspond, dans ces années-là, à l’incitation au développement de nouvelles formes de propriété – «propriété par appartement, fonds immobiliers, coopératives»9 – et fait écho à une préoccupation lancinante des urbanistes: le frein à la périurbanisation.
En effet, on craint de plus en plus ces zones pavillonnaires monofonctionnelles qui s’étendent à proximité des villages ou qui dénaturent des paysages remarquables, comme le démontrent les fameux photomontages des pentes de Lavaux complètement colonisées par des villas – des «images choc» conçues et réalisées par Alfred Roth et Claude Wasserfallen dans le cadre de la section «L’Aménagement du territoire», faisant également partie du secteur Art de vivre

«L’équipement intérieur de l’habitation» et l’aspiration au confort


Si on analyse les plans des appartements présentés dans la section «La maison et l’homme», on constate d’emblée l’importance accordée aux aménagements intérieurs, perceptible notamment dans le haut degré des équipements domestiques, ainsi que dans l’abondance de rangements et d’armoires censés faciliter la vie domestique quotidienne. «On a envisagé d’incorporer, à l’avenir, les éléments mobiles servant à ranger les biens ménagers (habits, linge, vaisselle, livres, etc.) au logement, afin d’épargner au propriétaire des transports supplémentaires. Cette idée peut révolutionner la conception traditionnelle du mobilier.»10 
Il faut donc répondre à «l’éternel problème des armoires»11. Mais la «révolution » en question dépasse cette simple préoccupation et implique que l’organisation des espaces, l’équipement intégré et le mobilier soient pensés comme un tout dialectique, dans une approche spécifique aux nombreux architectes d’intérieur ayant participé à cet exercice sous le «contrôle» de Max Bill12. D’une façon générale, force est de reconnaître que l’importance accordée à la qualité des aménagements intérieurs est dans l’air du temps et correspond aux aspirations de confort croissant des nouvelles générations13, ainsi qu’à l’expansion de la mécanisation de la sphère privée.
Ce thème – l’inflexion de la société vers un monde de consommation et de mécanisation domestique – est au centre des intérêts du Pop Art. Dans certains collages d’Eduardo Paolozzi et de Richard Hamilton, des images de voitures, réfrigérateurs ou aspirateurs, accordent à ces objets du quotidien un autre statut, de nature artistique, tout en nous dévoilant, avec acuité et ironie, notre manière de vivre de plus en plus «dépendante» à ces machines. 
Dans le domaine de l’architecture et du design, les textes théoriques d’Alison et Peter Smithson nous donnent aussi un aperçu éloquent de cette nouvelle tendance, notamment quand ils plaident en faveur d’une augmentation considérable des espaces de rangement dans les maisons, qui devraient atteindre presque 30% de la surface habitable pour accueillir tous les objets quotidiens14.
En Suisse, le Schweizerischer Werkbund SWB (Association suisse de l’art et de l’industrie) – dont bon nombre de membres sont des créateurs de meubles, de luminaires, de textiles et d’objets utilitaires – se préoccupe d’éditer un catalogue suisse de l’équipement et de divulguer des logements modernes exemplaires, dont l’ameublement est conçu de manière à répondre aux exigences les plus diverses par des articles fonctionnels, mobiles et «qui se distinguent par leur belle forme utile»15.
Enfin, l’œuvre de Charlotte Perriand, pour qui l’étude du rangement est «facteur d’ordre et d’harmonie»16, nous donne encore un autre éclairage de cette évolution architecturale vers un nouvel art d’habiter. Collaborant avec Le Corbusier et Pierre Jeanneret, elle s’occupe, à l’atelier de la rue de Sèvres, de l’élaboration du programme mobilier et conçoit notamment, dès la fin des années 1920, des casiers standards prévus pour une production en série qui « devraient répondre à tous les besoins de rangement dans l’habitation »17: c’est une part de «l’équipement intérieur de l’habitation» qui fait l’objet d’une large couverture médiatique18 et dont fait partie intégrante la cuisine qui devient progressivement, dans le second après-guerre, l’une des pièces importantes du foyer.

La cuisine du second après-guerre : à la fois centre de travail et centre du foyer


Dans les années 1960, la vision tayloriste des cuisines, dont l’agencement devait être avant tout rationnel afin d’épargner les fatigues ménagères, va s’atténuer au profit de nouvelles pratiques induites à la fois par un grand nombre d’équipements – à l’image des modèles britanniques et américains illustrés dans les revues spécialisées19, elles sont de plus en plus équipées et standardisées –, mais aussi par l’évolution des pratiques familiales et du statut de la femme.
Durant les Trente Glorieuses en effet, le rôle des femmes au sein de la famille et de la société change lentement, mais progressivement: d’une part, elles sont de plus en plus intégrées dans le monde professionnel (plusieurs mères parmi les familles sélectionnées ont un emploi); d’autre part, elles s’adonnent à la pratique des loisirs et accordent une plus grande attention au corps et au besoin de «garder sa ligne», notamment en adoptant d’autres habitudes alimentaires ; enfin, elles tirent profit de ce qui leur est offert par la société de consommation, comme la généralisation des produits alimentaires surgelés ou des plats tout prêts, ce qui allège considérablement le temps consacré à la préparation des repas. 
En effet, «la manière de considérer le bien-être et le confort physique s’est complètement transformée en une génération»20. De ce fait, «dans les années 1950, on commence aussi à admettre que la cuisine n’est pas que le lieu d’un travail ingrat et fastidieux»21, mais qu’elle peut aussi représenter un centre pour le foyer. Ceci est particulièrement perceptible dans la cuisine ouverte dessinée par Charlotte Perriand pour l’Unité d’habitation de Marseille (1945-1952) de Le Corbusier : dorénavant «la maîtresse de la maison, occupée à son fourneau, s’entretient avec sa famille et avec ses amis; elle n’est plus isolée, mais prend part à la conversation»22.

Cuisines ouvertes et centrales


Dans les appartements témoins de l’Expo 64, la tendance dominante est aux cuisines ouvertes sur un coin repas ou sur une salle à manger (image). Les dispositifs adoptés sont pourtant très variables, de la pièce encore partiellement cloisonnée à la cuisine américaine, ouverte sur le séjour.
Le rôle clé de la cuisine est aussi confirmé par sa position centrale dans le plan des appartements. Dans les deux prototypes en accession, la cuisine, complètement équipée, est au centre des activités domestiques: dans le premier cas, elle donne directement sur une véranda et communique, de part et d’autre, avec le séjour et la salle à manger ; dans le second, elle s’oriente unilatéralement vers la salle à manger au moyen d’un passe-plat surélevé en forme de bar (image).

Le travail à la maison


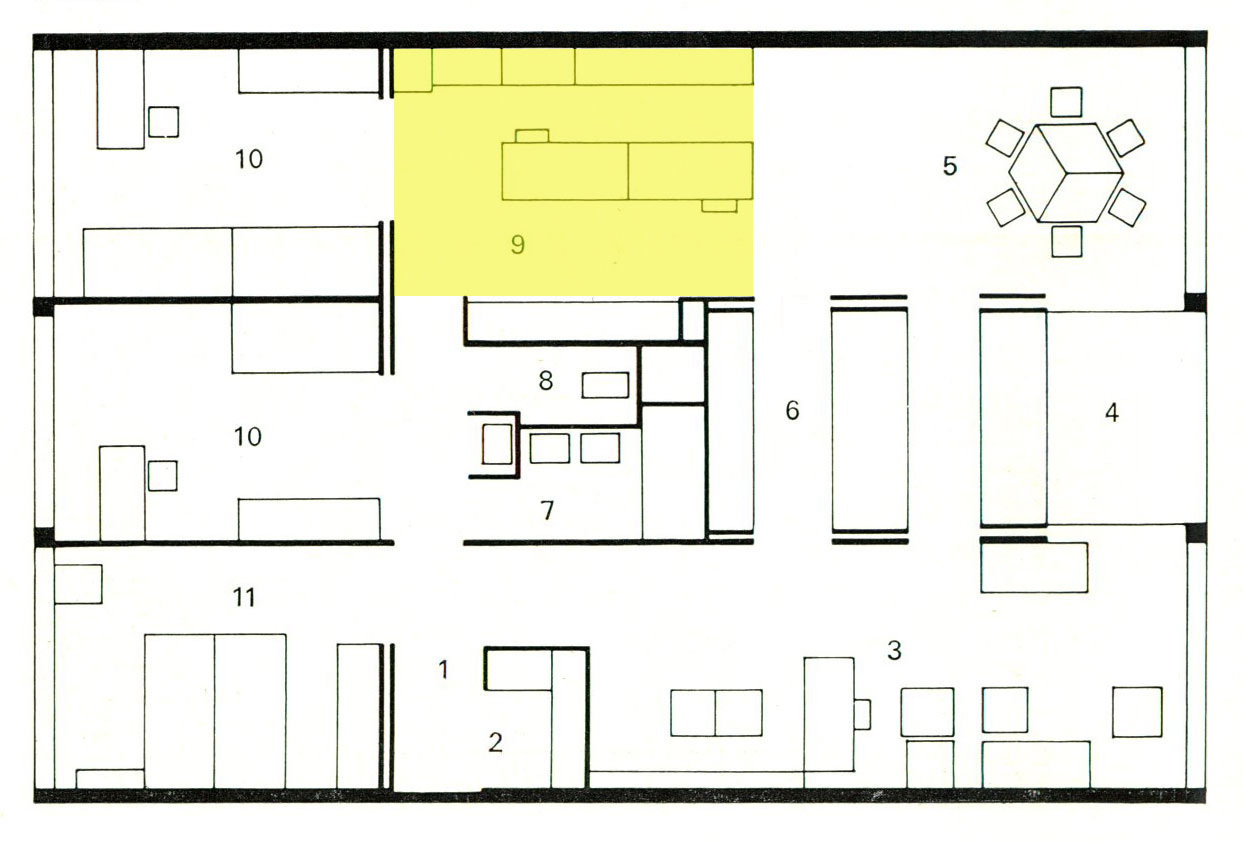
D’une taille supérieure aux autres espaces, le séjour demeure toujours la pièce principale. Il est éclairé par de larges baies vitrées et se prolonge à l’extérieur par un balcon ou une loggia généreuse. Cette pièce est considérée comme le lieu de réunion: les enfants y jouent, on y écoute la radio, on y regarde la télévision, on y reçoit la visite de la famille ou d’amis (image). 
Dans les prototypes présentés à l’Expo 64, la privacité du séjour par rapport à l’entrée est assurée par des sas ou par des dispositifs d’armoires hautes (image). De même, le séjour est séparé des chambres par les blocs sanitaires (intégrant parfois des débarras ou des dressings) (image), sauf dans le plus grand appartement où la chambre des parents s’ouvre latéralement sur la cuisine-bar et le coin repas – renouant ainsi avec une tradition bourgeoise du 18e siècle (image).
Cet espace de représentation est agrémenté par une série de pièces annexes, parfaitement inédites, qui instaurent d’autres pratiques certes plus confinées, mais également partagées par l’ensemble de la famille: des lieux pour le travail à la maison (image). Ce dispositif est mis en œuvre dans quatre appartements sur cinq, ce qui témoigne de l’importance que lui accordent les auteurs des projets.

Innovation versus réalité du marché


«On oppose aux plans types, tels que la pratique les présente, des plans aux formules nouvelles, qui suggèrent la réalisation de complexes d’habitations tenant compte des exigences sociales et d’économie privée de la construction.»23 Cette opposition est certainement éloquente, notamment si on se réfère à l’enquête sociale effectuée en 1960 par l’Office cantonal vaudois, publiée dans la revue Habitation24.
L’analyse de plus de 70 logements construits avec l’aide de l’Etat nous donne en effet un tout autre tableau des conditions de vie des logements à caractère social: appartements surpeuplés, mal éclairés, réduction de la superficie des pièces, fenêtres et portes mal placées, manque d’armoires, salles de bains proches de l’entrée, absence de prolongements extérieurs, sont autant de critiques formulées par les enquêteurs à des plans estimés d’une grande banalité25.
Il est certain que le respect d’un cadre économique et social exigeant, auquel s’ajoute l’application de règlements et de normes strictes, sont des facteurs contraignants ayant une influence directe sur la conception des espaces domestiques – à la différence des appartements exposés à l’Expo 64 qui, n’étant pas soumis à ce genre de conditions, ont un rôle expérimental à jouer tant dans le sens de l’innovation des dispositifs architecturaux que dans la prise en compte des nouveaux modes de vie.
Dans ce sens, ils font écho aux travaux sociologiques sur les conditions de l’habiter26 qui estiment que, malgré des résistances notoires de la part des architectes, l’usuelle distinction rigide du logement en espaces de jour et de nuit n’est plus suffisante pour traduire la complexité des pratiques domestiques27. L’innovation repose dès lors sur une complexification de la définition des pratiques – intégrant des termes comme «intimité» et «sociabilité» – et sur la popularité grandissante des vertus des plans libres. 
A l’Expo 64, on peut en effet noter une orientation des plans vers un aménagement libre et une fluidité spatiale, induits dans certains cas par le décloisonnement et l’utilisation de parois coulissantes qui augmentent l’espace à certains moments de la journée tout en garantissant l’intimité et l’isolement des pièces, notamment la nuit – le cas le plus flagrant de cette attitude étant la chambre des enfants séparée par une paroi coulissante revêtue d’ardoise (image), réplique d’un dispositif conçu par Charlotte Perriand et utilisé à l’Unité d’habitation de Marseille.
Dans d’autres cas, c’est la possibilité de créer un parcours circulaire et périphérique autour du bloc humide situé au centre du plan (image) qui crée de nouvelles perceptions spatiales et augmente la sensation d’espace. Enfin, les concepteurs vont jusqu’à évoquer la notion de flexibilité qui, très prisée à l’époque par les architectes, repose sur la possibilité pour les habitants de changer la disposition des pièces selon leurs nouveaux besoins ou désirs.
On le sait, la notion de flexibilité n’a pas donné les résultats escomptés. Il n’en ressort pas moins que les cellules d’habitation grandeur nature présentées dans la section «La maison et l’homme» (même si le rédacteur en chef de la revue L’Architecture d’aujourd’hui affirmait, dans un compte rendu sur l’Expo 64, qu’elles «étaient loin d’être convaincantes»28) sont en avance sur leur temps. Par leur agencement, elles anticipent des pratiques actuelles, comme le télétravail, et proposent des dispositifs spatiaux ouverts et fluides qui ne deviendront courants qu’un demi-siècle plus tard. 
Ce laps de temps très long nous apporte encore une fois la preuve de la lenteur avec laquelle évolue le lien de la famille à son habitat; on peut y voir aussi une confirmation de la résistance au changement des pratiques domestiques et de l’inertie du marché immobilier qui, par habitude, se complaît dans les mêmes dispositifs spatiaux éprouvés. Comme l’affirme avec acuité Aldo Rossi, le logement est «l’expression d’un mode de vie séculaire, de traditions anciennes et de techniques modernes»29.

 

Notes

1. Les groupes domestiques ayant collaboré à l’aménagement des appartements étaient: jeune couple, mari aux études, femme secrétaire, sans enfants; famille avec deux enfants (garçon de 5 ans et nourrisson), mari instituteur; famille avec deux enfants (garçons en âge scolaire et préscolaire), mari dessinateur de machines, suit des cours du soir et étudie à la maison, femme fait du travail de bureau à domicile; famille avec trois enfants (fille de 15 ans, deux garçons de 12 et 8 ans), mari libraire; famille avec trois enfants (deux garçons à l’école primaire, petite fille), mari ingénieur et femme orfèvre travaillant à la maison. Voir à ce sujet «La maison et l’homme. Exposé de la section», Habitation, n° 9, 1964, pp. 27-29.
2. Isabelle de Dardel, «Des appartements à la mesure de la famille suisse», Habitation, n° 9, 1964, p. 51.
3. «Problèmes généraux de la construction immobilière et du logement à l’Exposition nationale», document de l’Exposition nationale suisse adressé aux sociétés gérantes des fonds de placements immobiliers, 16.12.63, p. 2. (Doc. Archives fédérales suisses).
4. Enquête entreprise par la Fondation française pour l’étude des problèmes humains sur les désirs de la population française en matière d’habitation. Résultats publiés dans la revue Science et Vie, numéro hors-série sur l’habitation, n° 15, 1951, pp. 27-34. 
5. Voir à ce sujet «Psychiatres et sociologues dénoncent la folie des Grands Ensembles», Science et Vie, n° 504, 1959, pp. 30-37, et Marcel Josserand, «L’habitation et ses incidences psychiques , Habitation, n° 4, 1960, pp. 22-25 (extrait du Bulletin de la Chambre syndicale des propriétés immobilières de Lyon).
6. «Problèmes généraux de la construction immobilière et du logement à l’Exposition national », op. cit., p. 3.
7. «La maison et l’homme. Exposé de la section», op. cit., p. 26.
8. Ibidem, p. 26.
9. «Problèmes généraux de la construction immobilière et du logement à l’Exposition nationale», op. cit., p. 3.
10. «La maison et l’homme. Exposé de la section», op. cit., p. 27.
11. Isabelle de Dardel, «L’éternel problème des armoires», Habitation, n° 6, 1964, p. 21. 
12. L’équipe de la section «La maison et l’homme» était composée de deux architectes – H. Litz et A. Muggler – deux graphistes – H. Eggmann et H. Neuberg – et cinq architectes d’intérieur – J. Bally, W. Blaser, W. Buchser, E. Frehner et K. Schneider. L’élaboration des plans n’a pas été facile. En juillet 1963, seul l’un des plans ébauchés est accepté par Max Bill et le -bureau d’architecture de l’Expo. «Section  La maison et l’homme  – séance du 15.7 avec MM. Bill, Senn, Litz», 19.7.63. (Doc. AFS)
13. La question du confort est abordée de façon régulière par la revue Habitation. Voir notamment Claude Wasserfallen, «A la recherche du confort», Habitation, n° 1, 1961, p. 11, et «Confort moderne. Le dernier cri du logement britannique», Habitation, n° 11, 1961, p. 33.
14. Catherine Spellman, Karl Unglaub, (éd.), Peter Smithson: Conversations with Students. A Space for Our Generation, Princeton Architectural Press, 2005, p. 54.
15. Alfred Altherr, «Introduction», in idem, L’habitation moderne 3. Catalogue suisse de l’équipement 1960, Arthur Niggli, Teufen AR, 1960, p. 17.
16. Charlotte Perriand, Une vie de création, Editions Odile Jacob, Paris, 1998, p. 33.
17. Ibidem, p. 34. Il s’agit du stand de l’Equipement intérieur d’une habitation du Salon d’automne de 1929.
18. Entre autres: Techniques et Architecture, n° 9-10, 1950, et L’Architecture d’aujourd’hui, n° 36, 1951.
19. Eliane Lavarino, «Cuisines britanniques», Habitation, n° 8, 1952, pp. 14-15.
20. Hellmut Zucker, «Cuisines d’immeubles locatifs», Habitation, n° 8, 1957.
21. Lesley Jackson, «Contemporain»: Architecture et Intérieurs des années 1950 (1994), Phaidon, Paris, 2004, p. 125.
22. Ibidem, p. 19.
23. «La maison et l’homme. Exposé de la section », op. cit., p. 27.
24. «La famille et le logement. Enquête sociale de l’Office cantonal vaudois du logement. Analyse détaillée de 72 logements de 12 types différents construits avec l’aide de l’Etat», tiré à part des numéros de novembre et décembre 1960 de la revue Habitation, pp. 1-68. Cette enquête a été effectuée avec l’aide de la Commission de l’habitat de l’UIA et de la section romande de l’USAL.
25. Ibidem, p. 60.
26. Voir à ce sujet les recherches de Paul Chombart de Lauwe, notamment son ouvrage issu des travaux du Groupe d’ethnologie sociale, Famille et habitation, Centre national de la recherche scientifique, 1959.
27. Voir à ce sujet L.-G. Noviant, «L’organisation du logis, condition essentielle de son efficacité», L’Architecture française, n° 185/186, 1958, pp. 3-14.
28. Alexandre Persitz, «Exposition Nationale Suisse, Lausanne 1964», L’Architecture d’aujourd’hui, n° 117, 1964, p. 6.
29. Aldo Rossi, «L’habitation et la ville», L’Architecture d’aujourd’hui, n° 174, 1974, p. 30.

Magazine

Sur ce sujet