Bâ­tir pour une édu­ca­tion en ex­té­rieur

Le mouvement des écoles de plein air

Le mouvement des écoles de plein air dans la première moitié du 20?e siècle a connu un grand succès dans les pays occidentaux. Destinés en premier lieu aux enfants pré-tuberculeux, ces établissements scolaires particuliers ont constitué un carrefour d’innovations associant médecins, pédagogues et architectes.

Date de publication
13-01-2012
Revision
01-09-2015

Le courant hygiéniste a révolutionné l’ensemble des sociétés industrialisées, par la diversité d’applications mises en œuvre pour assainir les villes propices aux maladies infectieuses. Hygiénisme médical, architectural, urbanistique, mais aussi scolaire, ont participé à la création d’un projet de réforme sociale pour prévenir les épidémies. La lutte contre la tuberculose a été l’un des programmes phares. Avant la découverte des antibiotiques dans les années 1950, elle se soignait dans les sanatoriums par des cures naturelles de plein air et de soleil.
Anne-Marie Châtelet, professeur d’histoire et de culture architecturales à Strasbourg, présente dans un récent ouvrage (Châtelet, 2011) un sujet très méconnu, l’histoire internationale du mouvement des écoles de plein air dans la première partie du 20?e siècle qui n’a, jusqu’à présent, guère, ou très peu, suscité d’intérêt de la part des historiens de l’éducation. 
Inspirés des sanatoriums et des colonies de vacances pour combattre la tuberculose, ces établissements scolaires de plein air reposent sur ce paradoxe : bâtir pour fournir une éducation en extérieur. A la fois espaces de prévention médicale basée sur des soins de climatothérapie, espaces d’expériences pédagogiques, espaces de reformulation de l’architecture scolaire, les écoles de plein air ont constitué un berceau d’innovations. Elles étaient également le fruit d’une coopération professionnelle exceptionnelle entre les domaines de la médecine, de la pédagogie et de l’architecture. 

Des baraques précaires aux écoles ouvertes

Le mouvement des écoles de plein air a émergé en Allemagne sous l’impulsion de médecins et de pédagogues. L’école pionnière a été inaugurée en 1904. Baptisée Waldschule (école de la forêt), elle était implantée au milieu de la forêt de pin de Charlottenburg à proximité de Berlin.
Avec un dessein profondément social, les premières écoles de plein air, étaient destinées à offrir une éducation aux enfants malades ou convalescents, issus des milieux citadins défavorisés. Tous les programmes éducatifs quotidiens se déroulaient en plein air pendant les mois cléments de l’année. Des halles couvertes ou des baraques en bois permettaient toutefois la continuité des activités quel que soit le temps. En plus des soins de cure naturelle dans un cadre architectural adapté, bien que précaire, l’ambition était d’offrir des précautions sanitaires en matière d’hygiène et d’alimentation, des exercices physiques et du repos, le tout associé à un enseignement. En outre, l’immersion dans la nature offrait des expériences d’apprentissage inédites pour les élèves en favorisant leur épanouissement physique et intellectuel. 
Rencontrant un succès pédagogique et sanitaire, ces établissements à double vocation ont su séduire et se diffuser à l’échelle européenne, puis internationale. Les écoles de plein air se sont diversifiées par leur localisation et leur forme : établissements marginaux dans les forêts près de Berlin ou au bord de la mer en Catalogne, sur le toit des immeubles du centre-ville de Chicago et de Stockholm, de vastes villas à Londres. Les programmes pédagogiques en plein air ont apporté à l’architecture scolaire une perméabilité face à son environnement. 
A partir des années 1920, non seulement les architectes ont pris part au mouvement, mais un comité international a aussi vu le jour pour coordonner l’ensemble des écoles de plein air. Implication des architectes, décisions institutionnelles et contributions financières de collectivités publiques, ou de bienfaiteurs privés ont conforté le mouvement.
Destinées en premier lieu aux enfants tuberculeux, ces écoles se sont ouvertes progressivement aux enfants affaiblis, atteints de déficiences physiques ou mentales, puis dans une moindre mesure aux enfants sains. Certains pays ont adopté l’utilisation de matériaux pérennes dans la construction des écoles, tout en gardant les fenêtres des classes en permanence ouvertes.
Le mouvement d’éducation en plein air a connu un succès sans précédent dans les années 1930, dans un contexte socio-économique pourtant marqué par l’insta-bilité (crises politiques, difficultés économiques, montée des régimes totalitaires). Sa diffusion a bien sûr été contrastée selon les particularités nationales et n’a pas toujours fait l’unanimité auprès des médecins et des architectes. Certaines écoles ont pu décevoir, pratiquant une pédagogie peu innovante ou installées dans des baraques précaires et sans statut administratif, mais qui offraient une grande liberté. D’autres ont été marquées par la réussite et font encore figure d’emblème architectural comme l’école de plein air d’Amsterdam de Jan Duiker, réalisée entre 1927 et 1930 et celle de Suresnes d’Eugène Beaudouin et Marcel Lods, construite entre 1931 et 1934. Ces bâtiments font partie des rares écoles de plein air à être citées dans les ouvrages de l’histoire de l’architecture.

Un « échec fécond »

Après la Seconde Guerre mondiale, la généralisation du traitement antibiotique de la tuberculose a remis en cause l’utilité de l’éducation en plein air et a éteint progressivement le mouvement. 
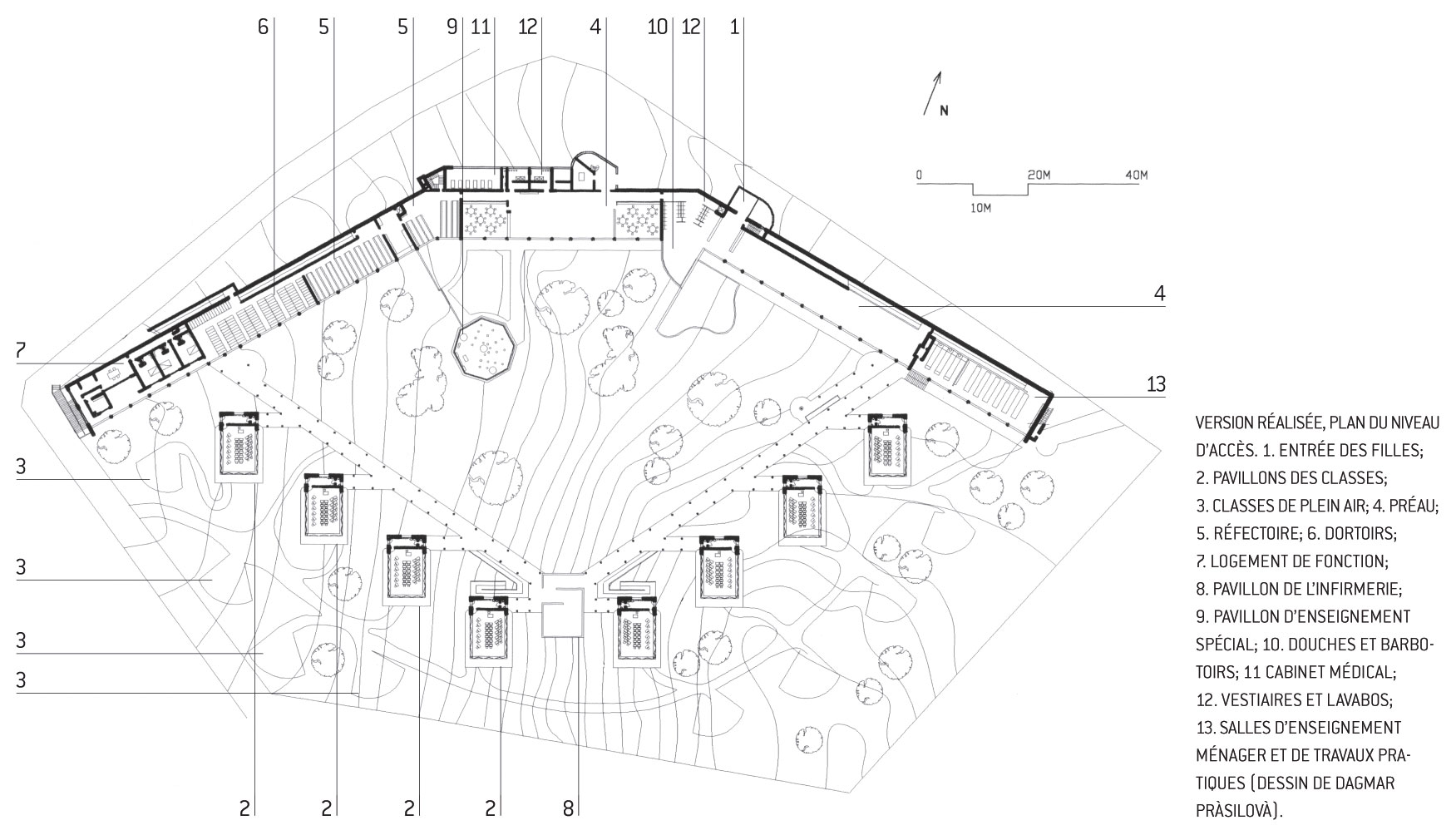
Anne-Marie Châtelet évoque, cependant, un « échec fécond » qui a permis de repenser l’architecture scolaire et les programmes pédagogiques dans leur ensemble, dont les fondations sont celles du mouvement hygiéniste et naturiste. Les écoles de plein air ont largement contribué à l’élaboration de bâtiments scolaires mieux ventilés, mieux éclairés, offrant de nouvelles techniques de chauffage et de vitrage. Le choix des orientations méridionales des classes a également remis en cause la spatialité spontanée des établissements. Les constructions qui en témoignent sont celles de l’architecture pavillonnaire, de petites écoles disséminées dans un espace vert, les plus transparentes et les plus perméables à l’extérieur constituant un nouveau rapport avec la nature (fig. 6). Enfin, elles ont contribué à l’élaboration d’une médecine scolaire inspirant les milieux politiques dans leur programme d’hygiène publique, d’éducation et de loisirs.
Si la célèbre école de plein air de Suresnes a été l’élément déclencheur du projet d’étude d’Anne-Marie Châtelet, l’ouvrage ne se limite pas qu’aux établissements scolaires devenus des icônes de l’architecture moderne. Selon elle, il est important d’écrire « une histoire de l’architecture embrassant l’exceptionnel et le banal ». L’auteur ne présente pas qu’un simple compte-rendu documentaire de ces établissements particuliers, elle propose une nouvelle interprétation de l’architecture scolaire, en faisant sortir de l’oubli les écoles de plein air, des plus insignifiantes aux plus célèbres. Enfin, l’ouvrage peut susciter un débat sur la valeur patrimoniale de ce type d’architecture, et soulever des questions sur l’expérimentation pédagogique et sur l’évolution du lien entre l’homme et la nature. 

Traces dans l’architecture scolaire contemporaine

Bien que le mouvement des écoles de plein air ait pris fin, on en retrouve des traces dans les constructions scolaires actuelles en Allemagne, aux Pays-Bas, en Grande-Bretagne et tout particulièrement en Suisse. Il existe notamment la Oberstufenschulhaus à l’Albisriederplatz à Zurich construite entre 2007 et 2009 par le bureau d’architectes Studer Simeon Bettler. La construction de cette école supérieure s’inspire des écoles de plein air de 1930 par sa situation au milieu d’un parc, ses larges baies vitrées et ses accès à des espaces extérieurs sous la forme de terrasses couvertes. Tous ces éléments constituent une solide relation entre le bâtiment et son environnement. Les plateformes, reliant les classes réparties sur trois étages au sein de trois tours, sont destinées à des classes de plein air, fréquemment utilisées par les étudiants.

Étiquettes

Sur ce sujet