Ba­roque ja­po­nais

Depuis 2019, la manufacture de chocolat Max Felchlin à Ibach (SZ) concentre la production, l’administration et un showroom sur un même site. Mêlant la tradition japonaise en matière de construction à la charpenterie locale, le bâtiment de Meili, Peter & Partner Architekten joue dans une catégorie à part en matière de fonctionnalités, d’ambiance et de construction.

Date de publication
04-05-2020

Depuis plus de 150 ans, l’empereur japonais Hesonusode visite ses sujets en Suisse centrale. «La Suisse au Japon», tel est le nom de cet événement organisé depuis 1863 par la «Japanesengesellschaft Schwyz». Aujourd’hui encore, les jeux des Japonais se tiennent chaque année sur la place centrale de Schwytz et l’on pourrait donc être tenté de penser que le nouveau bâtiment administratif de l’entreprise Felchlin, implanté dans le village voisin d’Ibach et qui semble d’inspiration japonaise à bien des égards, a quelque chose à voir avec cette tradition d’exotisme typiquement suisse. Mais il n’en est rien. Il faut plutôt voir ces japonismes comme un hommage rendu à une clientèle importante du chocolatier suisse; en effet, l’entreprise entretient depuis 1980 des liens commerciaux avec l’Asie orientale, en particulier avec le Japon. D’autre part, ces influences japonaises témoignent de l’intérêt des architectes pour les constructions en bois du Pays du Soleil Levant et les techniques d’assemblage.
Seuls quelques amateurs de chocolat suisse connaissent la marque Felchlin: en effet, il est inutile de chercher les produits de l’entreprise dans les commerces de détail et les magasins spécialisés. Felchlin travaille selon le principe du B2B (business to business), qui consiste à s’adresser directement à des professionnels de la pâtisserie et de la confiserie ainsi qu’à des chocolatiers. Les produits semi-finis de Felchlin, en particulier les couvertures, sont réputés dans la haute gastronomie. La manufacture emploie quelque 150 collaborateurs. Elle se démarque des fabricants de chocolats industriels en misant sur une chaîne d’approvisionnement durable et équitable ainsi que sur une production axée sur la qualité.
L’entreprise a vu le jour en 1908. À l’origine, c’était un commerce de miel qui fournissait les boulangeries et les pâtisseries de Suisse centrale. Elle a commencé à produire à Seewen à partir de 1920. Le profil qualitatif que nous connaissons aujourd’hui s’est construit progressivement. Dans les années 1980, le succès de l’entreprise l’a amenée à exporter de plus en plus sa production, surtout vers le Japon et les États-Unis.
Régulièrement, l’entreprise organise des formations pour ses clients. Elles durent généralement une semaine et portent sur la fabrication et la transformation du chocolat. Jusqu’à présent, le centre de formation Condirama se trouvait à Schwytz. La production avait déjà été déplacée à Ibach en 1974. Quant au service administratif, il se trouvait toujours à Seewen. Le projet de construction remporté par Meili, Peter & Partner Architekten sur la base d’une étude de site menée entre 2014 et 2015 avait pour objectif de mettre un terme à cette séparation spatiale contraignante et de regrouper tous les collaborateurs sur un seul et même site tout en aménageant des locaux plus attrayants pour les séminaires et les formations.

À l’encontre du conventionnel

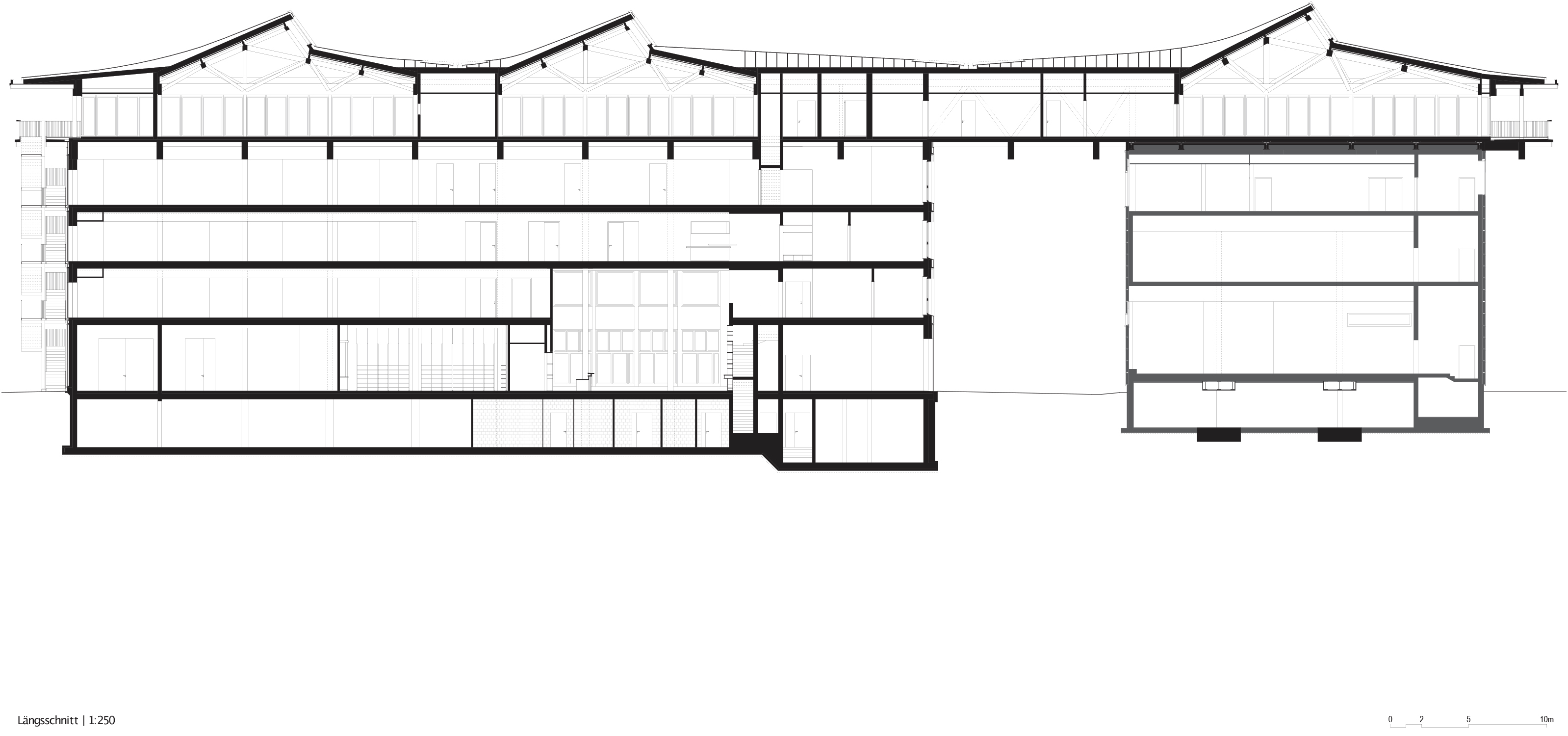
Le site de l’usine se trouve à la limite occidentale d’Ibach, dans une zone industrielle typiquement rurale où alternent les commerces de machines agricoles, les bâtiments fonctionnels sans prétention et les pâturages. Le site est délimité au sud par la route cantonale et au nord par la Muota, canalisée et bordée de digues à cet endroit. La vaste plaine, qui s’étend jusqu’à Brunnen sur le lac des Quatre-Cantons, est délimitée visuellement dans toutes les directions par les impressionnantes montagnes de la Suisse centrale: par l’Urmiberg, contreforts du Rigi au nord, par les Mythen à l’est, par Stoos et le Fronalpstock au sud, et par Brandegg avec Seelisberg et le Grütli à l’ouest. Le toit joue avec cette topographie, ce que l’on remarque d’emblée lorsque l’on se poste sur l’autre rive de la Muota pour observer le bâtiment de Felchlin, dont les «trois sommets» accompagnent la silhouette du Fronalpstock situé en arrière-plan.
Les halles de production habillées de gris argent qui bordent la route cantonale sont accolées à une aile recouverte de panneaux de tôle anthracite, qui fait aussi partie du bâti existant et qui est également utilisée pour la production. Meili, Peter & Partner Architekten y ont accolé un bâtiment administratif, qu’ils ont délibérément positionné à distance, à 90° ainsi qu’en biais par rapport à la Muota endiguée. Les bâtiments sont reliés entre eux par la structure du toit prolongée de manière expressive. Ce cinquième étage constitué d’une structure en bois en forme de pavillon est en saillie de tous les côtés et enjambe l’espace entre les deux structures. Les architectes ont intégré le volume bâti déjà en place si bien qu’à première vue, on n’a pas l’impression qu’il s’agit d’une construction existante. Sans vouloir opérer un contraste, ils n’ont pas non plus recherché l’homogénéisation.
Les stratégies d’ajout, de recoupement et de superposition ressortent clairement de toute une série de projets précédents réalisés par le bureau d’architecture, à l’instar du Centro Helvetia à Milan (2004-2009). La référence à l’œuvre de l’architecte italien Luigi Caccia Dominioni (1913-2016), que les architectes ont découvert comme source d’inspiration pour l’architecture suisse contemporaine, est également bien visible au niveau du projet Felchlin. On ne peut s’empêcher de le comparer au bâtiment de l’entreprise Loro Parisini (1951-1957) situé sur la Via Savona à Milan, où une structure vitrée évoquant un «fer à repasser les nuages» a été positionnée sur la structure existante avec un porte-à-faux à couper le souffle.

Symphonie constructive

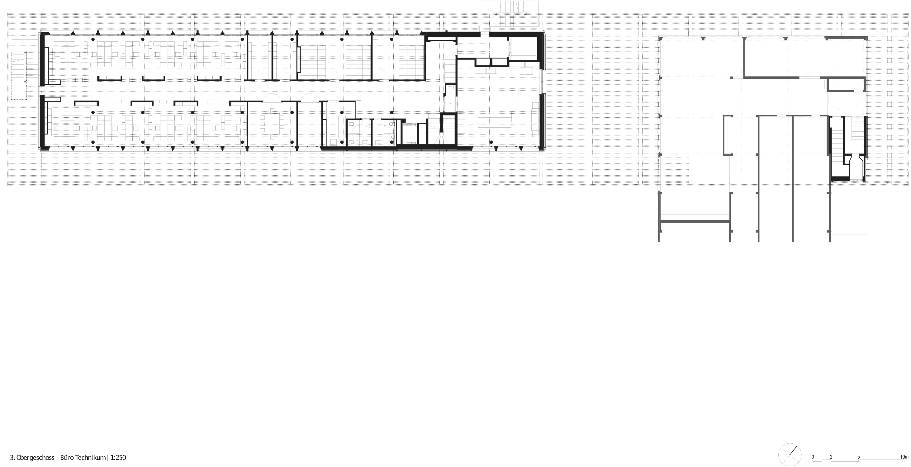
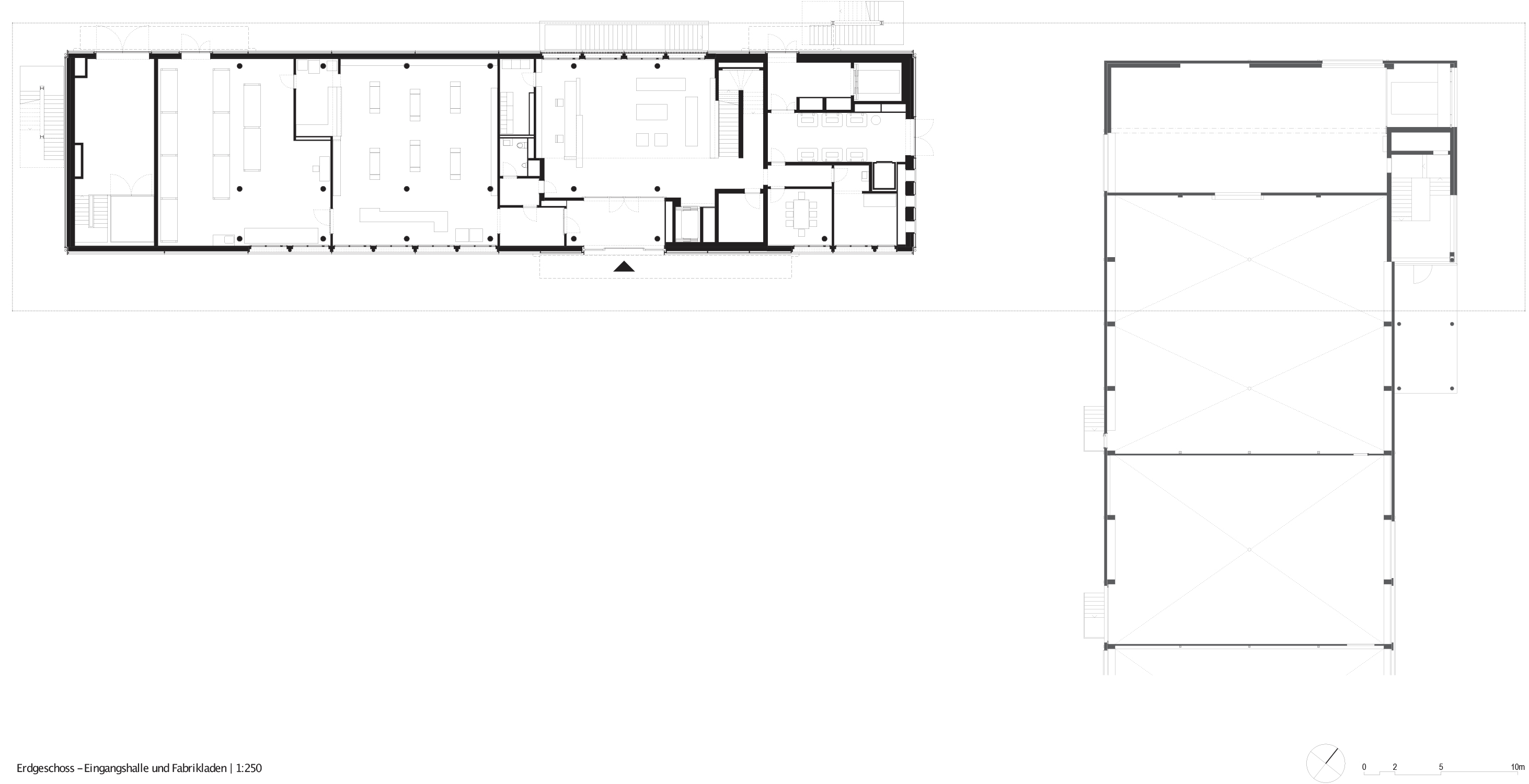
Le bâtiment administratif, dont le rez-de-chaussée accueille non seulement le hall d’entrée qui s’élève sur deux étages et la réception, mais aussi un magasin d’usine, se compose d’une ossature habillée d’une façade en bois de sapin de teinte foncée. Associée à des cloisons légères et des conduites ouvertes, l’ossature permet d’adapter l’espace intérieur réparti en différentes zones en fonction de l’évolution des besoins. Ici aussi, le principe de l’ajout saute aux yeux : la structure primaire en béton apparent sous forme de noyaux de distribution, de piliers circulaires et de poutres, est complétée par des parois blanches, des modules acoustiques gris fixés aux plafonds et scellés dans les murs, ainsi que par des meubles encastrés en bois. Au troisième étage, qui abrite le laboratoire de cuisine, le rendu diffère: les impressionnantes poutres en bois lamellé-collé qui surplombent le volume de construction reposent sur les piliers ­circulaires. La structure du dernier étage en forme de pavillon allongé s’enfonce pour ainsi dire vers le bas et il suffit d’observer le plafond pour constater immédiatement le changement de système porteur et de matériaux (fig. 6).
Le socle en construction massive forme ainsi la base de la construction en bois qui le surmonte et qui se compose d’une combinaison hybride d’éléments en bois massif, de bois lamellé-collé et de matériaux en bois. Les deux salles de formation du Condirama, auxquelles les visiteuses et les visiteurs accèdent par ascenseur depuis le rez-de-chaussée, constituent des points de convergence, tout comme la grande salle commune vitrée sur trois côtés située sur la façade est du bâtiment et qui est destinée au personnel de Felchlin. C’est d’ailleurs à cet endroit que la structure du toit repose sur le bâtiment de production. Pour combler l’espace qui sépare le bâtiment administratif du bâtiment de production, le bureau Meili, Peter & Partner Architekten a imaginé, en collaboration avec les ingénieurs bois de Pirmin Jung, un système complexe de techniques de construction en bois inspiré de la construction de ponts. L’ossature de la construction du toit est impressionnante. Pourtant, elle semble flotter, à la manière d’une tente. Les poutres aux multiples sections et orientations s’associent visuellement pour former une structure à la fois impressionnante et expressive, qui alterne entre finesse et massivité. La perfection se trouve dans les détails : aux plafonds, les chevrons sont disposés de manière radiale, à l’instar de ce que l’on peut observer dans l’architecture des temples japonais (fig. 5).

Analogies universelles

Si les étages administratifs se dévoilent avec évidence, bien qu’ils aient été eux aussi réalisés de main de maître et avec le souci du détail, les salles communes du dernier étage s’avèrent expressives. La construction à la fois épurée et complexe ne s’appréhende pas au premier coup d’œil; elle suggère des espaces auxquels il est difficile de se soustraire. Instinctivement, on pense à cette citation de Bruno Taut sur ce que pourrait aussi être l’architecture: «De pures choses festives». Cela s’exprime parfaitement lorsque l’on coupe l’éclairage artificiel et que la lumière naturelle qui pénètre par les impostes illumine vaguement l’ossature de la charpente du toit. L’ambiance rappelle alors véritablement celle des constructions japonaises traditionnelles.

Article paru dans TEC21 n°47/2019. Traduit de l’allemand par Wulf Übersetzungen.

Manufacture et showroom à Ibach (SZ)

 


Maîtrise d’ouvrage: Max Felchlin SA
Architecture: Meili, Peter & Partner Architekten, Zurich
Structure: bpp Ingenieure, Schwytz
Structure bois: Pirmin Jung Schweiz, Rain
Architecture du paysage: Müller Illien Landschafts­architekten, Zurich
Sécurité, physique, acoustique et assistance structure bois: Création Holz, Herisau
Toit et façades bois: neue Holzbau, Lungern

 

Magazine

Sur ce sujet