Ca­sa San­t'A­gne­se

Publikationsdatum
13-07-2022

Ai piedi di un magnifico pendio vignato, con vista su Lago Maggiore, Delta della Maggia e Piano di Magadino, si trova la clinica Sant'Agnese, costruita negli anni Quaranta dall'architetto Bruno Brunoni e ampliata dal figlio Decio negli anni Sessanta. Tra i personaggi illustri, la clinica ha ospitato il pittore Paul Klee e lo scrittore Erich Maria Remarque.

Appartenente al Convento di Ingenbohl, alcuni anni orsono la clinica ha cessato la sua attività e le suore di lingua madre italiana hanno avuto la necessità di trovare una nuova casa che le potesse ospitare dopo una vita di servizio nelle scuole e negli ospedali del Ticino. Sotto questo auspicio è nata a Muralto la nuova Casa Sant'Agnese della Congregazione delle Suore della Santa Croce di Ingenbohl. La nuova struttura, situata a monte del pendio vignato sopra la storica clinica, è stata concepita come un vero e proprio convento, inserito tra le strutture ottocentesche della limonaia e degli orti pensili.

Dalla strada a monte, costeggiando un nuovo viale alberato e il tetto giardino della nuova costruzione – il cui disegno a filari riconduce alle geometrie dei giardini conventuali – si giunge in una piazzetta che si apre sul paesaggio circostante. Qui la scultura di San Francesco (Remo Rossi, 1938), recuperata dalla clinica sottostante, invita a entrare tramite una scalinata che scende al livello inferiore. Ad accogliere il visitatore vi è anche la gigantografia di una stampa ottocentesca del primo convento della congregazione, che caratterizza l'ingresso a livello della piazzetta, dove un ascensore collega tutti i piani dell'edificio.

Dall'atrio si accede alla cappella, che si configura con un volume separato, caratterizzato da aperture mirate a catturare la luce sull'arco della giornata. La campana, proveniente dalla prima cappella dell'ospedale di Coira e suonata manualmente, è incorniciata da un'apertura che porta la luce del mattino all'interno dello spazio. La luce zenitale illumina il tabernacolo, proveniente dalla Chiesa di Sant'Eugenio, mentre sull'altare vibra il Crocifisso dello scultore Selim Abdullah, appositamente creato per questo luogo.

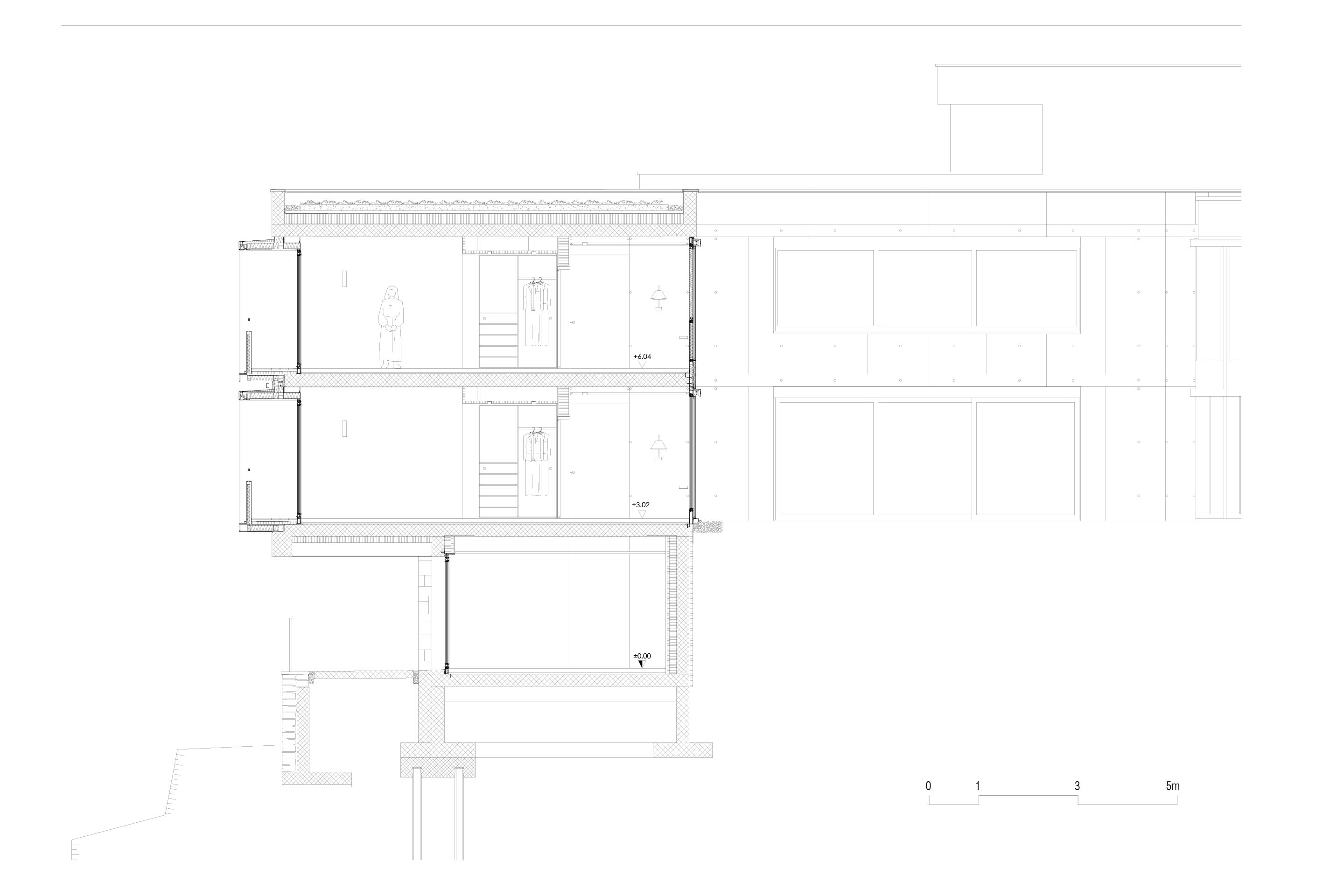
Si prosegue attraversando una luminosa biblioteca, affacciata su una corte aperta verso il paesaggio lacustre, che funge da filtro verso gli spazi più intimi delle venti celle conventuali. Le zone comuni e di circolazione delle celle si affacciano su un chiostro, dove vengono coltivate piante medicinali tipiche dei conventi. Le celle, disposte su due livelli, sono caratterizzate da un elemento aggettante – una sorta di bow window contenente un piccolo balcone e uno scrittoio –proiettato sul paesaggio circostante a sud verso il lago e a est verso un giardino di ulivi, al quale hanno accesso diretto alcune celle.

Il refettorio, situato sotto la biblioteca, si trova a diretto contatto con il giardino a corte, aperto sul lago e direttamente collegato alla cucina. Un sistema di percorsi fa confluire tutti gli spazi esterni nella vecchia via del vignaiolo, un attraversamento pedonale parallelo alle curve di livello, che congiunge ancora oggi la limonaia all'orto pensile. Questo percorso ha definito la quota di partenza della nuova costruzione, che poggia in aggetto sui suoi muri in pietra, formando in parte un portico protetto.

La struttura statica con lame portanti di cemento armato è stata l'occasione per ritmare i corridoi delle celle, creando piccoli atri antistanti, che diventano luoghi di incontro, in analogia alla tipologia dei corridoi dei conventi. Oltre al cemento armato gettato in opera con casseforme metalliche prefabbricate, sono stati impiegati granito della Valle Maggia per le zone sanitarie, legno di rovere per pavimenti e arredi e alluminio trattato con polveri elettrostatiche per i serramenti.

Luogo
Muralto

 

Committenza
Institut Ingenbohl Mutterprovinz Schweiz, Brunnen

 

Architettura e Direzione lavori
Studio di architettura Cristiana Guerra, Bellinzona

 

Collaboratori
M. Bagutti, L. Bianchi, S. Rigo Ingegneria civile: Messi & Associati SA, Bellinzona

 

Impresa
Matteo Muttoni Costruzioni SA, Bellinzona

 

Progetto impianti RVCS
renner engineering Sagl, Sementina

 

Ingegneria elettrotecnica
L. Vignola, I. Manzella, IFEC Ingegneria SA, Rivera

 

Fisica della costruzione
M. Bogatto, V. Crespi, IFEC Ingegneria SA, Rivera

 

Acustica
M. Bogatto, IFEC Ingegneria, Rivera

 

Illuminotecnica
M. Montagner, Tulux SA, Tuggen

 

Geologia
TBag-e Sagl, Caslano

 

Foto
Luca Ferrario, Maroggia; Marcelo Villada Ortiz, Bellinzona

 

Date progetto
realizzazione: 2018-2020

 

Pianificazione energetica
IFEC Ingegneria SA, Rivera

 

Certificazione o Standard energetico
edificio conforme al RUEn del settembre 2009

 

Intervento e tipo edificio
costruzione nuova

 

Categoria edificio, (Ae)
categoria II (edificio plurifamiliare), Ae = 1703 m2

 

Fattore di forma (Ath/Ae)
Ath/Ae = 1,82

 

Riscaldamento
produzione del calore 100% mediante pompa di calore con sonde geotermiche

 

Acqua calda
produzione dell'acs mediante pompa di calore con sonde geotermiche (copertura 69%) e impianto solare termico (copertura 31%)

References

Ai piedi di un magnifico pendio vignato, con vista su Lago Maggiore, Delta della Maggia e Piano di Magadino, si trova la clinica Sant'Agnese, costruita negli anni Quaranta dall'architetto Bruno Brunoni e ampliata dal figlio Decio negli anni Sessanta. Tra i personaggi illustri, la clinica ha ospitato il pittore Paul Klee e lo scrittore Erich Maria Remarque.

Verwandte Beiträge