Le scuo­le No­se­do a Mas­sa­gno

Restaurare il cemento armato

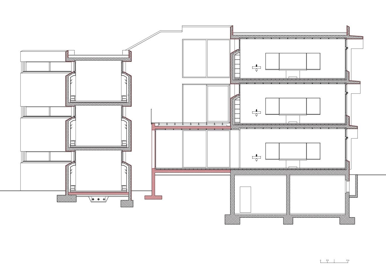
The restoration, carried out by Durisch Nolli Giraudi Radczuweit, does not alter the substance of Alberto Finzi's building but reinterprets it to give new life to the school structure.
 

Testo integrale in italiano: Le scuo­le No­se­do a Mas­sa­gno. Restaurare il cemento armato

Creating a place and putting down roots

The new primary school in Massagno blends into the neighbourhood. Following the topography of the hillside, it offers spaces that can be used outside of school hours. Terraces, roofs, stairways and gardens create a network of walkways connecting the building to its surroundings. Rather than being isolated, the building becomes part of the landscape and the community, which has spontaneously recognised its value. The project combines public spaces with new educational and recreational functions, restoring the school's central role. The result is a harmonious architectural layout that meets the neighbourhood's needs.

 

Interpreting architecture

More than just a restoration, the work on the Nosedo school reinterprets its architecture, extending its life. Without altering Alberto Finzi's original 1960s design, the teaching area has been increased by 30%, while the footprint and volume have remained unchanged. The courtyards have been incorporated into the interior spaces to ensure natural light and create new, more articulated classrooms that are suitable for contemporary teaching methods, all the while maintaining the original typological distribution.

 

A school palimpsest

The project preserves the typology and quality of the original building, updating it with a more contemporary aesthetic. The spaces have been enlarged and improved in terms of light and acoustics, while preserving the identity of the existing architecture. The distinctive exposed concrete has been restored with new layers only where necessary to maintain its original appearance. At the same time, the renovation has improved energy efficiency in line with Minergie® standards, combining conservation and sustainability.


Renovating concrete

A key element of the project was the complete renovation of the exposed concrete structures, to preserve the building's architectural appearance and atmosphere. Following a thorough analysis, it was decided that the degraded material should be selectively removed, the reinforcing bars protected, and new fibre-reinforced mortar applied to recreate the effect of the original formwork. Finally, transparent water-repellent and anti-carbonation treatments were applied to the surfaces. The durability of the intervention is estimated at twenty years.

The original article, ‘Le scuo­le No­se­do a Mas­sa­gno. Restaurare il cemento armato’ (The Fifth Facade), was written by Durisch Nolli Giraudi Radczuweit. This summary was compiled by ChatGPT, translated by DeepL, and verified by the editorial staff of espazium - Der Verlag für Baukultur.

Verwandte Beiträge