SIA-Mas­ter­preis Ar­chi­tek­tur 2016: «Aus­stel­lungs­haus für Ar­chi­tek­tur und Städ­te­bau am See»

Projekt von Sandro Elmer

 Masterarbeit ETH Zürich | Professur Tom Emerson

Publikationsdatum
21-04-2017
Revision
21-04-2017

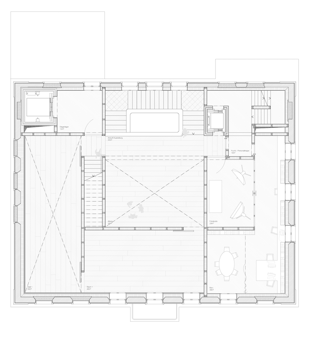
Eine Nutzungsänderung, an die die eigene Gilde seit Jahrzehnten denkt, war Ausgangspunkt für die Aufgabenstellung. Unter Würdigung der bestehenden Gebäudestruktur unterzieht der Verfasser das Haus einer Metamorphose – einerseits mit subtilen Eingriffen und kleinen Anpassungen in den beiden unteren Geschossen, andererseits wird das Gebäude um zwei Vollgeschosse aufgestockt. Neben einer Betonkonstruktion für die Aussenwände, kommt dabei für die innere Struktur eine Holzkonstruktion zum Tragen. Spannende und schön proportionierte Raumabfolgen, interessante Schnittsituationen, bewusst eingesetztes Tageslicht und eine stimmungsvolle Materialisierung versprechen ein adäquates Ausstellungs- und Raumerlebnis. Neben den konzeptuellen Qualitäten des Entwurfs würdigte die Jury die sorgfältige Art der Darstellung und Präsentation.


SIA-Masterpreis Architektur

Der SIA-Masterpreis Architektur, den der SIA seit den 1960er-Jahren jährlich verleiht, zeichnet Abschlussarbeiten der drei universitären Hochschulen Eidgenössische Technische Hochschule Zürich (ETHZ), Ecole polytechnique fédérale de Lausanne (EPFL) und der Accademia di architettura di Mendrisio (AAM)  aus. 80 bis 130 Masterprojekte werden pro Prüfungssession eingereicht. An der ETH finden jedes Jahr zwei Sessionen statt, an EPFL und AAM eine. Für jede Schule gibt es eine Jury aus sechs Architektinnen und Architekten: dem Präsidenten des Fachvereins Architektur und Kultur (A & K) sowie je einem Vertreter/einer Vertreterin des A & K aus den drei Sprachregionen, der Berufsgruppe Architektur (BGA) und der SIA-Sektion des Kantons der Hochschule, also Waadt, Zürich oder Tessin.

Einen Überblick über die Gewinnerprojekte finden Sie im E-Dossier «SIA-Masterpreis Architektur 2016».

Verwandte Beiträge