Ord­nung, Glie­de­rung, Pro­por­ti­on: Wie­ters­heim Ar­chi­tek­ten

Studium an der ETH, Büro in Deutschland

In einer Online-Serie präsentieren wir junge deutsche Architekturbüros mit Verbindung zur ETH Zürich. Wietersheim Architekten beziehen sich in ihren Projekten auf die Geschichte des Orts und schaffen eine Verbindung alter und neuer Räume.

Publikationsdatum
24-08-2020

Das Büro Wietersheim Architekten wurde im Jahre 2013 in Berlin gegründet. Annabel von Wietersheim hat in Edinburgh, Aachen und Zürich studiert und ihren Abschluss an der ETH Zürich bei Annette Spiro erworben. Franz von Wietersheim hat an der TU Berlin und der ETH Zürich studiert und sein Studium an der TU abgeschlossen. Im Anschluss haben beide in unterschiedlichen Ländern Büroerfahrungen gesammelt. Ihre ersten Projekte zeigen eine klare Haltung in Bezug zu Ort und Geschichte sowie Gestaltungsansätze in unterschiedlichen Massstäben.

Erhalten und Erneuern in Istrien

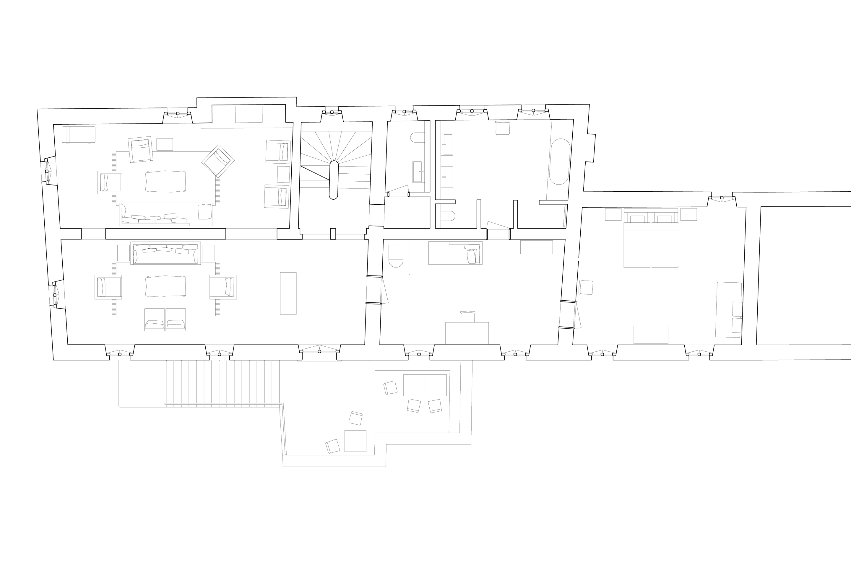
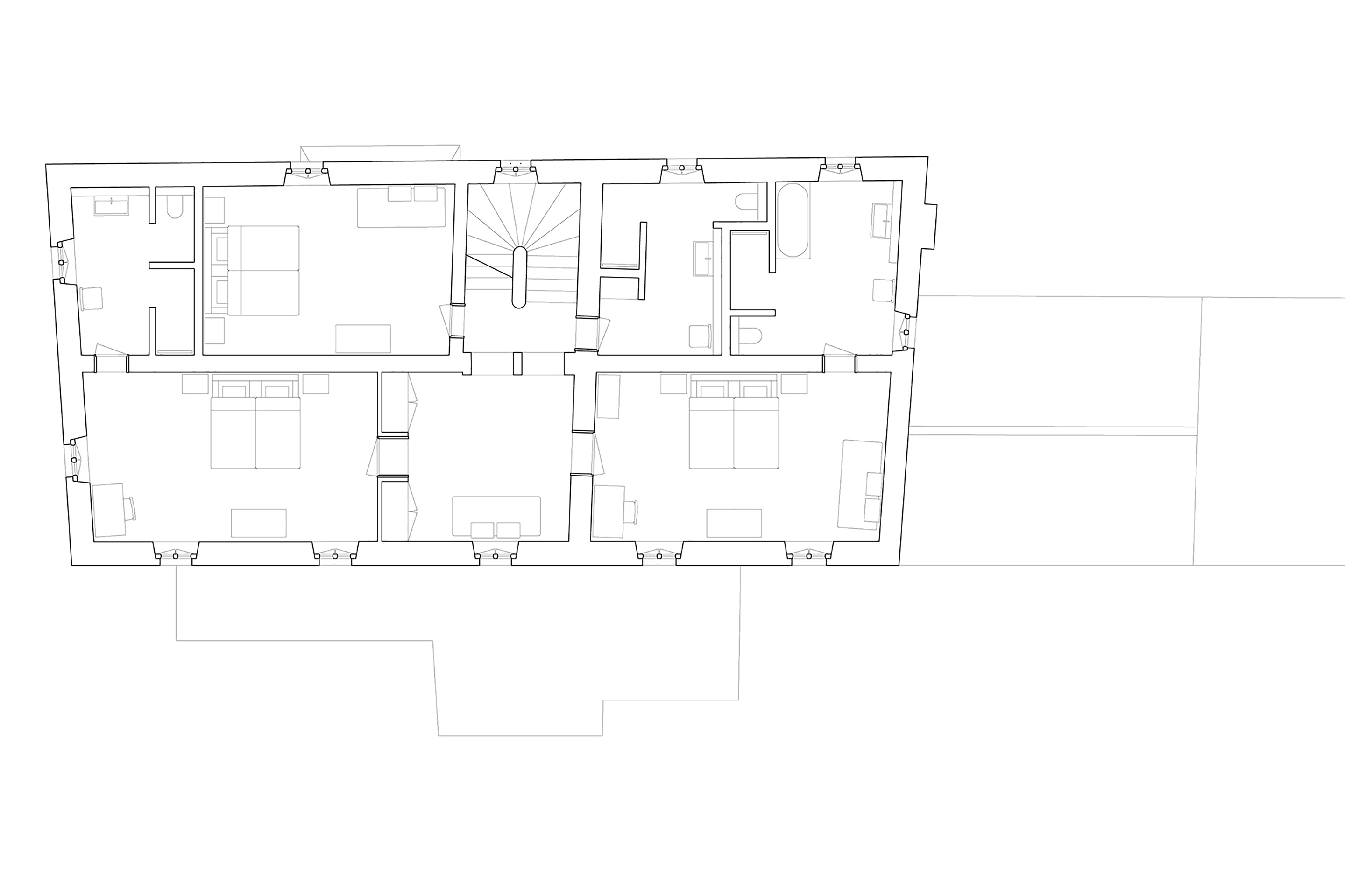
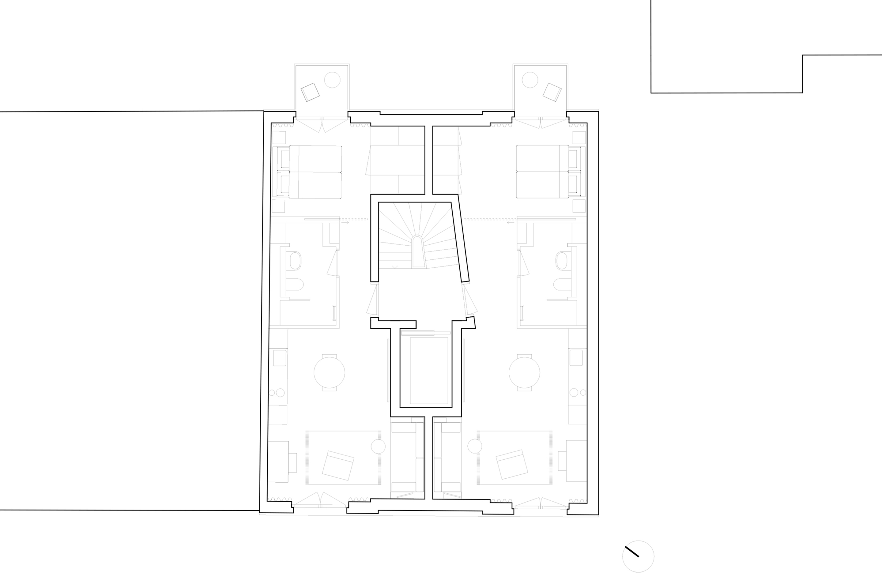
Die Casa Ceppi, Haupthaus eines ehemaligen gewachsenen landwirtschaftlichen Gutshofs, umschliesst mit weiteren Gebäudeteilen einen offenen Platz. Die natürliche Einbettung in der hügeligen Landschaft ermöglicht weite Ausblicke. Die Gebäudesubstanz war in ruinösem Zustand, sie wurde entkernt und von innen heraus als Feriendomizil erneuert, wobei die charakteristischen Merkmale und Elemente erhalten blieben.

Die Casa Ceppi nimmt nun sieben Zimmer in den drei Obergeschossen sowie Gemeinschaftsräume im Erdgeschoss auf. Die Gliederung der Anlage und der Fassaden wurde in ihrem Aufbau erhalten und ergänzt. In den Innenräumen entsteht durch die Kombination von Materialien wie Holz, Terrazzo, Sichtbeton, Epoxidharz und Wandfarben eine edle Atmosphäre. Die authentischen Bauformen des Bestands wie das sichtbare Dachgebälk und die Rundbögen werden durch die neuen, präzisen Materialfügungen ergänzt – so bleibt erkennbar, was erneuert wurde.

Neues Wohnen in Berlin

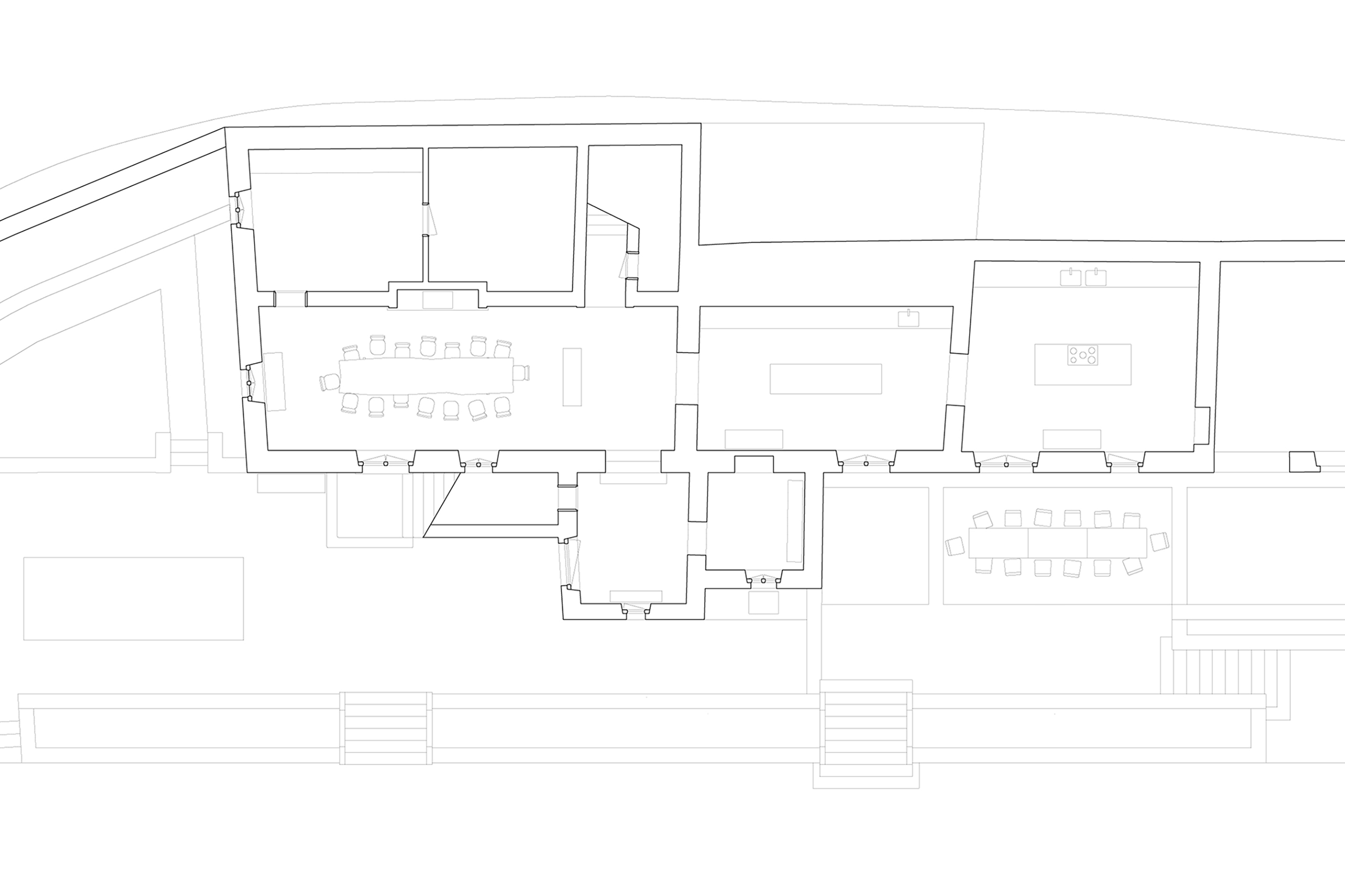
Das Wohn- und Geschäftshaus an der Chausseestrasse – am Übergang zwischen Mitte und Wedding – hat ein gewaltiges Gegenüber: den Neubau des Bundesnachrichtendiensts mit seinen vierzehntausend Fenstern. Im Gegensatz zu dessen massigen Auftritt besetzt es ein schmales Grundstück zwischen gründerzeitlicher Blockrandbebauung und Zeilenbauten aus der Nachkriegszeit.

Über dem Erdgeschoss samt Ladenlokal und Durchgang zu den dahinter liegenden Häusern stapeln sich elf kleine Wohnungen über fünf Geschosse plus Attika. Die Situation als Kopfbau ermöglichte eine plastische, dreiseitig umlaufende Gliederung von Vorderseite, Brandwand und Rückwand.

Der monolithisch-rohe Massivbau wird durch wenige Bauteile bestimmt. Auf den Betondecken lagern die kerngedämmten Ziegel. Auf weitere Elemente wurde, bis auf Brüstungsgeländer vor den französischen Fenstern und kleine Balkone, verzichtet. Das zentrale Treppenhaus samt Lift und die innen liegenden Bäder zonieren die Wohnungen in Schlafzimmer zur Hofseite sowie Wohn- und Essraum zur Strassenseite.

Der Sockel, so heisst eine Studienarbeit der Architektin Annabel von Wietersheim aus dem Jahre 2011, die ein Stipendium der Erich-Degen-Stiftung ermöglichte: Die fotografische Studie, entstanden in Chicago und New York, mag das Interesse für kraftvolle Gliederungen und klare Proportionen entfacht haben. Die Architektursprache von Wietersheim Architekten lässt wohlproportionierte Räume entstehen, die an vorhandene Qualitäten anknüpfen oder abhanden gekommene Qualitäten in ein neues Licht rücken.

«Das Einfache wird schwerer umzusetzen»

TEC21: Was sehen Sie als grösste Chance in Ihrer Stadt, Ihrer Region?

Wietersheim Architekten: Das Berliner Stadtbild ist geprägt durch die geschichtlichen Brüche, vor allem des 20. Jahrhunderts. Deswegen hat sie sich ja den Ruf erworben, «unfertig» zu sein. In den letzten drei Jahrzehnten nach der Wende hat die Stadt nun einen entscheidenden Entwicklungsschub gemacht. An den zahlreichen Baulücken konnten Architekten die Stadt massgeblich mitgestalten und ihr ein neues Gesicht verleihen. Die Stadt zieht nach wie vor viele Menschen an, die offen sind für das Unkonventionelle.

Mit dem Haus in der Chausseestrasse hatten wir die Gelegenheit, der Stadt einen kleinen Baustein hinzuzufügen. Das Grundstück liegt nur einen Kilometer von der Friedrichstrasse entfernt. Die Umgebung war zu Beginn der Planung von grosser Leere und Desolatheit gezeichnet. Mittlerweile ist die Gegend mit der Innenstadt zusammengewachsen. Eine solche Situation vorzufinden ist sicherlich anders als in anderen Städten, wo das Zentrum in weiten Teilen intakt ist und ein abgeschlossenes Gefüge bildet.

Die grosse Hoffnung für Berlin ist, dass die Stadt nicht nur als Investmentbühne für gesichtslose Architektur herhalten muss, sondern eine gesellschaftliche Konsolidierung stattfindet, die ein langfristiges Interesse an der Stadt und eine bessere Baukultur verfolgt. In einem solchen Umfeld wirken verantwortungsvolle Bauherrschaften, wie es in der Schweiz der Fall ist.

Wir merken aber auch, dass Bauherren aus anderen Regionen auf uns zukommen, zum Beispiel aus Sachsen oder Kärnten, wo wir Entwürfe für Wohnhäuser machen durften. Berlin als Ort hat also sicherlich eine metropolitische Strahlkraft und bietet ein weites Feld für vielfältige Bauaufgaben, aber die Projekte müssen sich nicht hier befinden. Wir finden es sehr spannend, auch in anderen Regionen Europas Architektur zu machen.
 

TEC21: Wo ist der Bezug zur ETH Zürich oder zur Schweiz in Ihrer Arbeit spürbar?

Wietersheim Architekten: Das fängt bei den ganz grundlegenden Dingen an. Ordnung, Gliederung, Proportion das sind Grundbegriffe, die alle Studenten an der ETH vermittelt bekommen. Diese Prinzipien umzusetzen ist schon eine Herausforderung. Der Umgang mit dem Material ist Teil davon. Material muss nicht teuer sein. Die Wertigkeit einer Architektur entsteht über den Umgang mit dem Material, das ja proportioniert und gefügt werden muss. Dieses Handwerkszeug haben wir sicherlich zu grossen Teilen in der Schweiz gelernt und auch an der hohen Qualität der Projekte dort erlebt.


TEC21: Was sind aktuelle Inspirationen Ihrer Arbeit?

Wietersheim Architekten: In Hinblick auf die wachsenden technischen Anforderungen wird das einst Einfache zunehmend schwerer umzusetzen. Wir arbeiten an prägnanten Entwürfen, die beherrschbare Lösungen im Detail erlauben. Momentan interessieren wir uns auch stark für die Möglichkeiten des Holzbaus die Vorteile der Vorfertigung und die zügige Abwicklung beim Bau.

In unserer Online-Serie «Debüt» präsentieren wir die Werke junger Architekturbüros. Dieser Beitrag  ist Teil einer Reihe, die den Schwerpunkt auf Architektinnen und Architekten mit Bezug zur Schweiz setzt, die ihr Büro in Deutschland gründeten.

Verwandte Beiträge