«Wir ha­ben rein sub­trak­tiv agiert»

Balissat Kaçani haben ein Reihenhaus aus den 1950er-Jahren fit gemacht für heutige Ansprüche. Dabei nutzten sie die Qualitäten des Bestands und überraschen mit ungewohnten Ideen.

Publikationsdatum
23-05-2022
Tina Cieslik
Head of Multimedia | espazium digital lab; Korrespondentin Architektur/Innenarchitektur TEC21

Hoch über Baden liegt die Allmend, ein begrüntes Wohnquartier mit Einfamilien- und kleineren Mehrfamilienhäusern. Hier plante Hans Bernoulli ab 1947 eine Gartenstadt, die allerdings nur in Teilen realisiert wurde. Einen Bereich bebaute der Badener Architekt Hans Loepfe (1887–1977) Ende der 1950er-Jahre selbst als Investor mit Reihenhäusern. Heute steht die Siedlung unter Ensembleschutz. Loepfe, durchaus im Neuen Bauen ver­wurzelt, vermischte dabei Stile und Konstruktionsweisen zu einer Art pragmatischem Eklektizismus: Eine dem industriellen Bauen entlehnte Stützen-Platten-Konstruktion kombinierte er mit einem für das bürgerliche Wohnen in den 1950er-Jahren typischen Blumenfenster. Eines der Loepfe-Häuser von 1958 wurde nun vom jungen Badener Büro Balissat Kaçani umgebaut und instand gesetzt.


TEC21: Welche Inspirationen liegen diesem Projekt zugrunde?

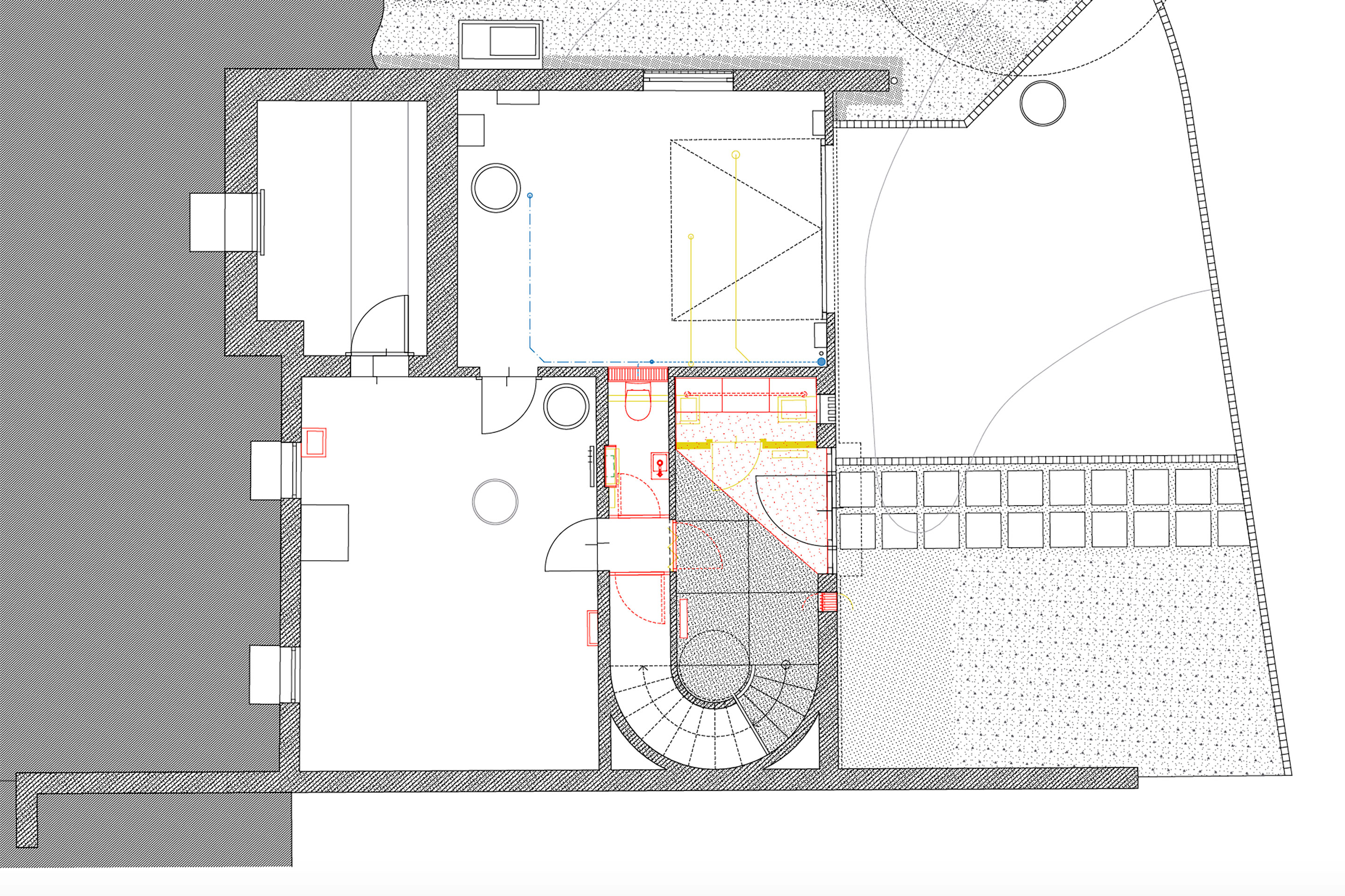
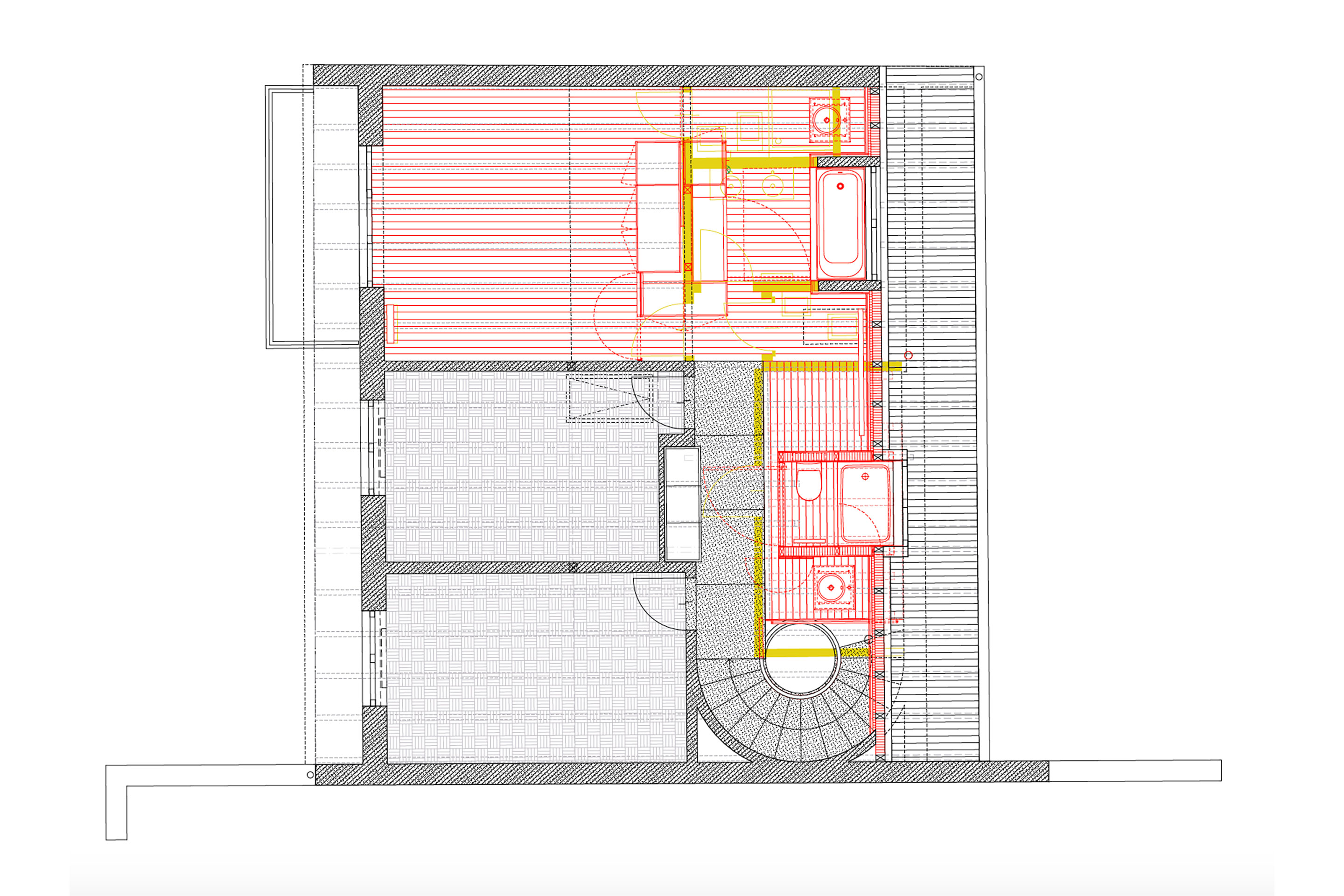
Balissat Kaçani: Dieses Projekt entstand aus der Auseinandersetzung mit dem physischen Bestand des Gebäudes. Die Recherche im Archiv des Architekten Hans Loepfe hat uns gezeigt, dass das Reihenhaus, anders als erwartet, nicht auf den Wänden steht, die Wohn-, Schlaf-, Bade- oder Esszimmer begrenzen. Die Armierungspläne des Ingenieurs von 1956 bezeugen die serielle Produktion der gesamten Reihenhaussiedlung. Ähnlich einer Fabrik wurde die Siedlung als Stahlbetonskelett mit Unterzügen gebaut, in das Zimmerwände, aber auch Brandmauern zwischen den Häusern eingesetzt wurden.
Die kleinteilig fragmentierte und sorgfältig in einzelne Funktionen unterteilte Kammerung, die wir im Bestand vorfanden, steht im Gegensatz zur grossmassstäblichen Tragstruktur, die auch die einzelne Wohneinheit durchdringt. Uns faszinierte dieser räumliche Widerspruch. In grossflächigen Sondagen haben wir das Planmaterial verifiziert und dabei auch noch die hochwertige Qualität, in der der Stahlbeton in den 1950er-Jahren hergestellt wurde und die hinter unzähligen Farb- und Putzschichten gut intakt war, entdeckt.


TEC21: Was war das Leitmotiv für den Entwurf?

Balissat Kaçani: Wir haben die bestehende und über die Zeit sogar gewachsene räumliche Fragmentierung aufgelöst, indem wir alle nichttragenden Wände und Oberflächen rückgebaut haben. Wir haben rein subtraktiv agiert. So konnte die Serialität dieses Reihenhauses, also die Tatsache, dass es sich um ein Fragment in einer grösseren Struktur handelt, durch die Präsenz der einen Stütze und der beiden Unterzüge räumlich erfahrbar gemacht werden. Ausserdem hat der Rückbau auch die einzelnen für Zimmer ausgewiesenen Flächen von ihrer funktionalen Determination befreit. Es ist ein einziger fliessender Raum über drei Geschosse hinweg entstanden, der dunklere und hellere, zurückgezogenere und exponiertere Zonen aufweist. So gibt es zum Beispiel kein Badezimmer mehr, sondern der Raum formt eine Nische, in die eine Badewanne gestellt wird. Diese belichtet dann gleichzeitig auch den gesamten Raum. Das Auflösen der räumlichen Grenzen sollte die Möglichkeiten der Aneignung durch die Benutzer:innen vervielfachen und dabei durch die maximale Ausdehnung auf knappem Platz räumliche Grosszügigkeit entfalten.


TEC21: Inwiefern verkörpert der Bau die architektonische Haltung Ihres Büros?

Balissat Kaçani: Wir versuchen in unseren Projekten jene materiellen, geometrischen und/oder sozialen Bedingungen zu identifizieren, die sich physisch-konstruktiv manifestieren lassen. Denn wir verstehen Architektur als bodenständige Disziplin, als physische Materie, die durch menschliche Arbeit Räume produziert. Diese Arbeit wollen wir erfahrbar machen, und zwar nicht als Textur oder als Oberfläche, sondern als architektonischen Raum. Der architektonische Raum ist für uns aber keine rein phänomenologische Angelegenheit, sondern erfordert es, von den Benutzer:innen angeeignet zu werden. Im Gegensatz zum Zimmer – das ist indifferent demgegenüber, wie es angeeignet wird – ist er spröde und verhindert gewisse Formen der Aneignung und fördert wiederrum andere (vgl. Lucius Burckhardt: Design ist unsichtbar, 1980).
Ein Raum kann nur architektonisch sein, wenn er zugleich als Materie und Geometrie erfahrbar ist, aber auch als soziale Infrastruktur das Verhältnis von Vorder- und Hinterbühne für das Zusammenleben seiner Benutzer:innen definiert, um diesen Funktionen Platz zu bieten. Im vorliegenden Umbau haben wir hinter den Wänden der (klein)bürgerlichen Zimmer die Stütze freigelegt, die das gesamte Haus trägt. Der Rückbau der weiteren nichttragenden Zimmerwände fügt das gesamte Haus in ein mehr oder weniger schwellenloses und sich über drei Geschosse erstreckendes Raumkontinuum. Dieses bietet lediglich Nischen und Zonen, die auf verschiedene Arten angeeignet werden können. Es bildet aber bewusst keine Hinterbühne für Schlafen oder Baden. Der fliessende Raum wird nicht mehr fragmentiert, um diesen Funktionen Platz zu bieten. Vielmehr nisten sie sich in jene Ecken des Raums, die den Nutzern die Regulierung der Intimität überlassen. Der architektonische Raum lässt dabei unterschiedlichste Formen der Aneignung durch verschiedenste soziale Praktiken zu, ohne diese durch zeitgenössische (Wohn-)Bilder zu determinieren.


TEC21: Worin liegt das Besondere dieser Bauaufgabe?

Balissat Kaçani: Bei dieser Bauaufgabe handelt es sich vielmehr um einen Rückbau als um einen Umbau. Das Reihenhaus wurde von seinen funktional determinierenden Elementen befreit und auf seine physisch notwendigen Elemente reduziert. Dies hat einen engen Austausch mit allen beteiligten Unternehmern gefordert. Dabei standen jene Gewerke im Vordergrund, denen normalerweise keine grosse gestalterische Beachtung geschenkt wird. So war der Baumeister, der mit den Abbrucharbeiten beauftragt wurde, ein wichtiger Partner, mit dem jeder Schritt abgestimmt werden musste. Das Produkt seiner (Abbruch-)Arbeit ist nicht bloss Grundlage für die weiteren Arbeiten, sondern formt bereits selbst den architektonischen Raum. Ein weiteres Beispiel ist der intensive Austausch mit dem Schreiner. Die integrierten Schiebe- und Klapptüren in dessen Möbel domestizieren den Raum erst und ermöglichen die räumliche Absonderung gewisser Nischen durch die Nutzerinnen und Nutzer. So spielt das Produkt seiner Arbeit in diesem Projektauch eine räumliche und keine rein oberflächliche oder funktionale Rolle.

Diese beiden keineswegs abschliessenden Beispielen zeigen, wie wichtig in diesem Projekt der Austausch mit den einzelnen Handwerker:innen war. Denn einerseits ist die Arbeit jedes Einzelnen räumlich prägend, wird also nie durch die Arbeit eines anderen überdeckt. Andererseits hat es nur dieser Austausch auch ermöglicht, den architektonischen Raum, der hinter den historischen Ablagerungen am Bestand bereits vorhanden war, so freizulegen, dass er erfahrbar wird und angeeignet werden kann.

Dieser Artikel ist Teil unserer Online-Serie «Debüt», in der wir Erstlingswerke Schweizer Architekturbüros vorstellen. Weitere Beiträge finden sie hier.

Bauherrschaft
privat


Architektur
Balissat Kaçani, Baden


Tragkonstruktion
MWV Bauingenieure, Baden


Abbrucharbeiten, Baumeisterarbeiten
Mäder, Baden


Montagebau in Holz
Schreinerarbeiten Hächler, Wettingen


Holzboden
Talamona, Fislisbach


Sanierung Terrazzobelag
K.Studer, Frick


Metallbauarbeiten
Metallbau, Neuenhof

 

Gipserarbeiten
Hans Merkli & Söhne, Wettingen

Verwandte Beiträge