Ra­dio & Te­le­vi­sion Buil­ding (RTS), Ecu­blens

Soumission PRIXFORIX 2024

Data di pubblicazione
17-04-2024

Le nouveau campus RTS regroupe quatre volumes distincts soigneusement conçus pour répondre aux exigences spécifiques des médias contemporains. Chacun de ces volumes abrite des plateaux et des studios Radio-TV, un restaurant, une émergences logistique dédié à l'entretien des cars TV, ainsi que des espaces administratifs et d’apprentissage des métiers de l’information.

L'interconnexion de ces émergences forme une composition architecturale harmonieuse, reliée au rez-de-chaussée par un foyer accueillant le public, et au premier étage par une plate-forme significative appelée le "champ", abritant les rédactions et des espaces de production multimédia innovants.

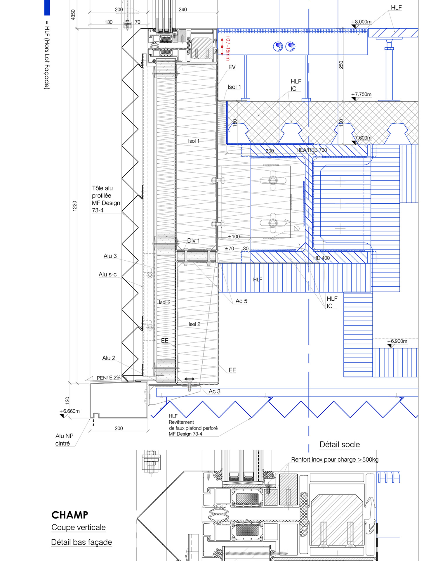
Les façades du projet sont conçues dans un souci de fonctionnalité, de simplicité et d’efficacité, avec une attention au détail qui fait de ses attributs une forme d’expression architecturale. Celle-ci est marquée par les quatre émergences monolithiques en béton et vitrages en aluminium, fusionnant transparence contemporaine et robustesse. Le Champ composé de façades par «éléments» de grande hauteur est une conception en facette à multi rayons qui habille la structure en charpente et ses poutres Warren qui s’entrecroise dans le volume bâti. Il assume ainsi un caractère éminemment technologique avec la dominance du verre et du métal dans son expression. La façade offre une abondance de lumière été de vue à l’intérieur tout en assurant l’efficacité des apports énergétiques et le confort visuel, avec l’utilisation de stores à lamelles.

L’actionnement de la protection solaire sera en partie automatisé pour suivre l’incidence du rayonnement, mais il pourra également être pris en main par les utilisateurs pour adapter les conditions intérieures.

Les émergences sont matérialisées en enduit extra-fin et lisse, de couleur blanc-gris, résistant aux chocs et aux salissures. Leurs façades simples et ordonnées sont caractérisées par des grandes fenêtres qui son subdivisées verticalement pour empêcher les chutes et horizontalement pour produire des ouvrants à l’échelle humaine et rendre possible le cloisonnement. 

Au cœur du projet, un Foyer central en profilé acier, revêtu d'inox poli miroir, accueille avec élégance les deux sas d'entrée, organisant le plan de l'accueil et guidant les visiteurs vers les différentes émergences, le restaurant, et l'escalier monumental central.

Planification de façades
BCS, Neuchâtel
 

Construction de façades
Sottas, Bulle
 

Architecture
OFFICE Kersten Geers David Van Severen
Fehlmann Architectes SA
 

Maître d'ouvrage
RTS Radio Télévision Suisse

Vous trouverez d'autres projets soumis pour le PRIXFORIX 2024 dans notre dossier numérique et sur prixforix.ch

Etichette