«Der hi­sto­ri­schen Pa­ti­na ge­re­cht wer­den»

Der Architekt Roman Miszkowicz hat in Oberurdorf einen prominenten Riegelbau mit einem Neubau ergänzt. Auf einer kniffligen Parzelle schuf er ein Wohnhaus für die Nachkommen der Eigentümerfamilie. In seiner Einfachheit und mit seinen stalltorartigen Sonnenschutzelementen zeigt es Analogien zu einem Ökonomiegebäude.

Data di pubblicazione
26-03-2024

Am Dorfausgang von Urdorf steht ein gut erhaltener Riegelbau aus der Zeit um 1600. Er ist mit dem dazugehörigen Buchsbaumgarten und zwei angrenzenden Schopfbauten als überregionales Schutzobjekt inventarisiert. Dieses bemerkenswerte Gebäudeensemble wurde 2023 um ein neues Wohngebäude erweitert, das sich kunstvoll in die gebaute Struktur einfügt. Durch seine Grösse und die Ausführung in Holz ordnet sich der Neubau dem Haupthaus klar unter und zollt dem Bestand Respekt. Analog zum historischen Nachbarn wählte der Architekt Roman Miszkowicz eine Mischform aus Massiv- und Leichtbauweise. 

Dieser Artikel ist Teil unserer Online-Serie «Debüt», in der wir Erstlingswerke Schweizer Architekturbüros vorstellen. 


Welche Inspirationen liegen diesem Projekt zugrunde? Was war das Leitmotiv für den Entwurf?

Die grösste Inspirationsquelle war der Ort selbst. Bei meinem ersten Besuch war ich beeindruckt von der Vielschichtigkeit des Gartens, der einerseits sehr gepflegte Bereiche aufweist, wie zum Beispiel den geometrischen Buchsbaumgarten, andererseits aber auch über viele Zonen verfügt, in denen sich die Natur frei entfalten kann. Ähnliches gilt für die bestehenden Gebäude, die aus unterschiedlichen Epochen stammen, im Laufe der Jahrhunderte umgebaut oder erweitert wurden und somit nicht nur physisch, sondern auch metaphorisch verschiedene Zeitschichten aufweisen. Dieser historischen Patina gerecht zu werden, im Sinne eines Weiterbauens mit dem Ziel, eine Ergänzung zu schaffen, die sich in die Umgebung einfügt und dennoch einen eigenen Charakter aufweist, war das Leitmotiv des Entwurfs.


Wie haben Sie auf die historischen Bauten im unmittelbaren Kontext reagiert?

Vonseiten der Denkmalpflege wurde bereits in einer frühen Projektphase der Wunsch geäussert, dass sich der Neubau gut in das Gesamtensemble einfügt und als Nebengebäude gelesen wird, während das Haupthaus aus dem 16. Jahrhundert weiterhin als solches gelten soll. Vor allem von der Birmensdorferstrasse her bietet die Komposition des Haupthauses mit dem vorgelagerten kleinen Schopf einen interessanten Blickwinkel, den es zu erhalten galt. Der Neubau ergänzt nun diese Komposition im Hintergrund. 

Darüber hinaus dienten die historischen Bauten in mehreren Bereichen als Inspirationsquelle. Die Bauweise des Neubaus folgt der Logik der bestehenden Gebäude mit modernen Mitteln: Analog zum Gewölbekeller aus Bruchstein wurde das Untergeschoss betoniert. Darauf steht ein Kranz aus einschaligem, wärmegedämmtem und verputztem Backstein. Für die Konstruktion ab der Decke über dem Erdgeschoss sowie für die Fassade wurde Holz verwendet. 

Historische Holzbauten weisen oft eine einfache Holzornamentik auf. Die für den Holzbau typische additive Aneinanderreihung vieler gleichartiger Elemente ermöglicht es, durch einfache geometrische Wiederholungen eine ornamentale Wirkung zu erzielen. Diese Idee wurde beim Neubau umgesetzt. 


Welche Herausforderungen gab es und wie lösten Sie diese?

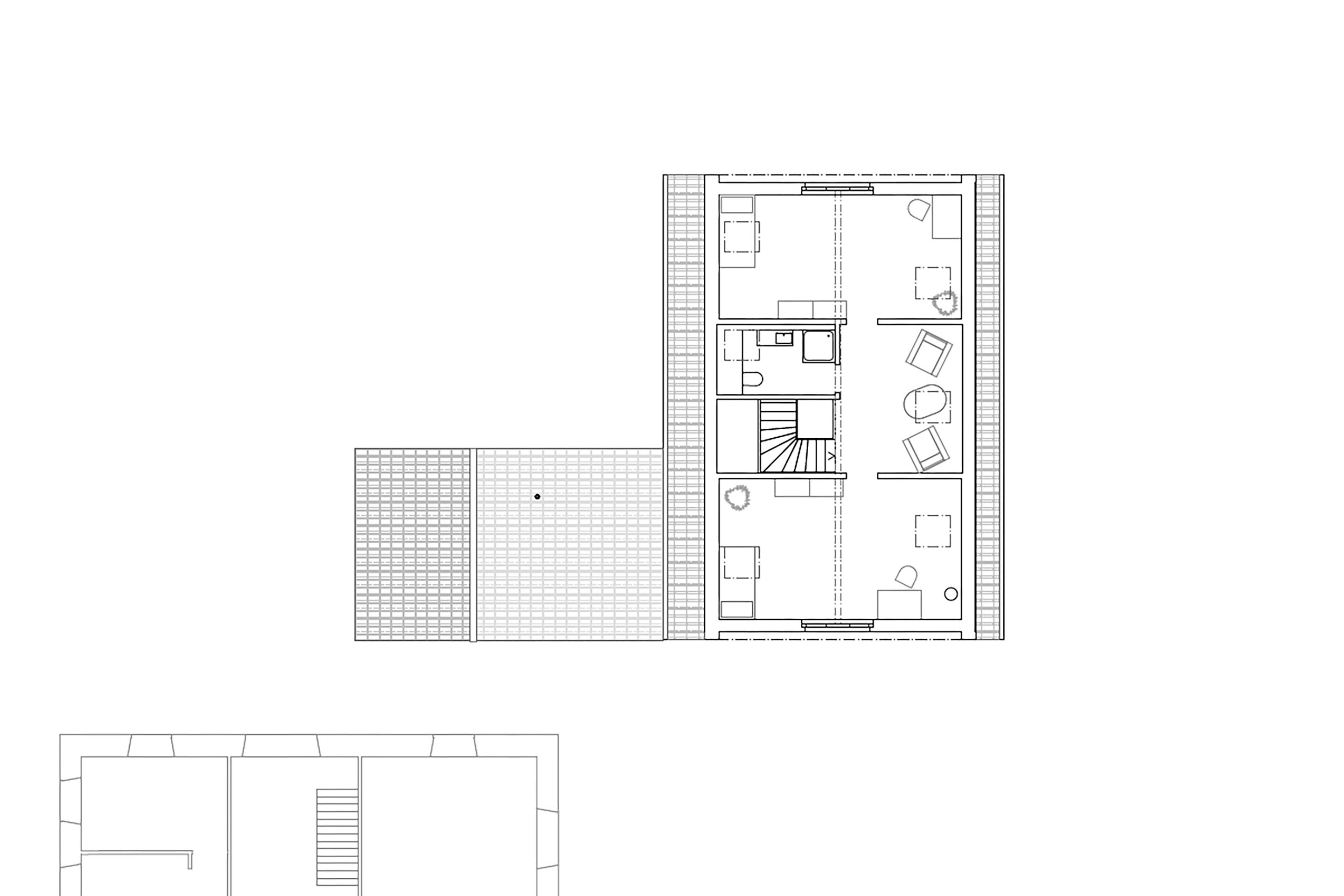
Eine zentrale Herausforderung in der frühen Planungsphase war die Positionierung des Neubaus. Die Geometrie der Parzelle, die bestehenden Bauten und die mitten durch das Grundstück verlaufende Grenze zur Landwirtschaftszone boten wenig Platz für einen Neubau in angemessener Grösse unter Einhaltung der erforderlichen Abstände. Um Platz zu schaffen, wurde der später angebaute, baufällige Teil des Schopfs abgebrochen und der Neubau parallel zur Zonengrenze positioniert. Trotzdem blieb die Parzelle sehr eng, was noch dadurch verschärft wurde, dass das Amt für Raumentwicklung bereits nach der Baueingabe einen zusätzlichen Abstand zur Landwirtschaftszone verlangte. Die Organisation des Grundrisses – insbesondere im Erdgeschoss – mit einer sinnvollen Positionierung der vertikalen Erschliessung und die Schaffung sinnvoller Raumproportionen waren anspruchsvoll. 

Um den Anforderungen der Denkmalpflege gerecht zu werden, wurde dem Neubau der Charakter eines Ökonomiegebäudes verliehen. Diese Typologie zeichnet sich durch ihre Einfachheit sowie durch grosse Öffnungen aus, durch die grosse Mengen an Material, Tiere oder Maschinen umgelagert werden können. So prägen geschosshohe Öffnungen mit stalltorartigen Sonnenschutzelementen die Fassade des Neubaus. 

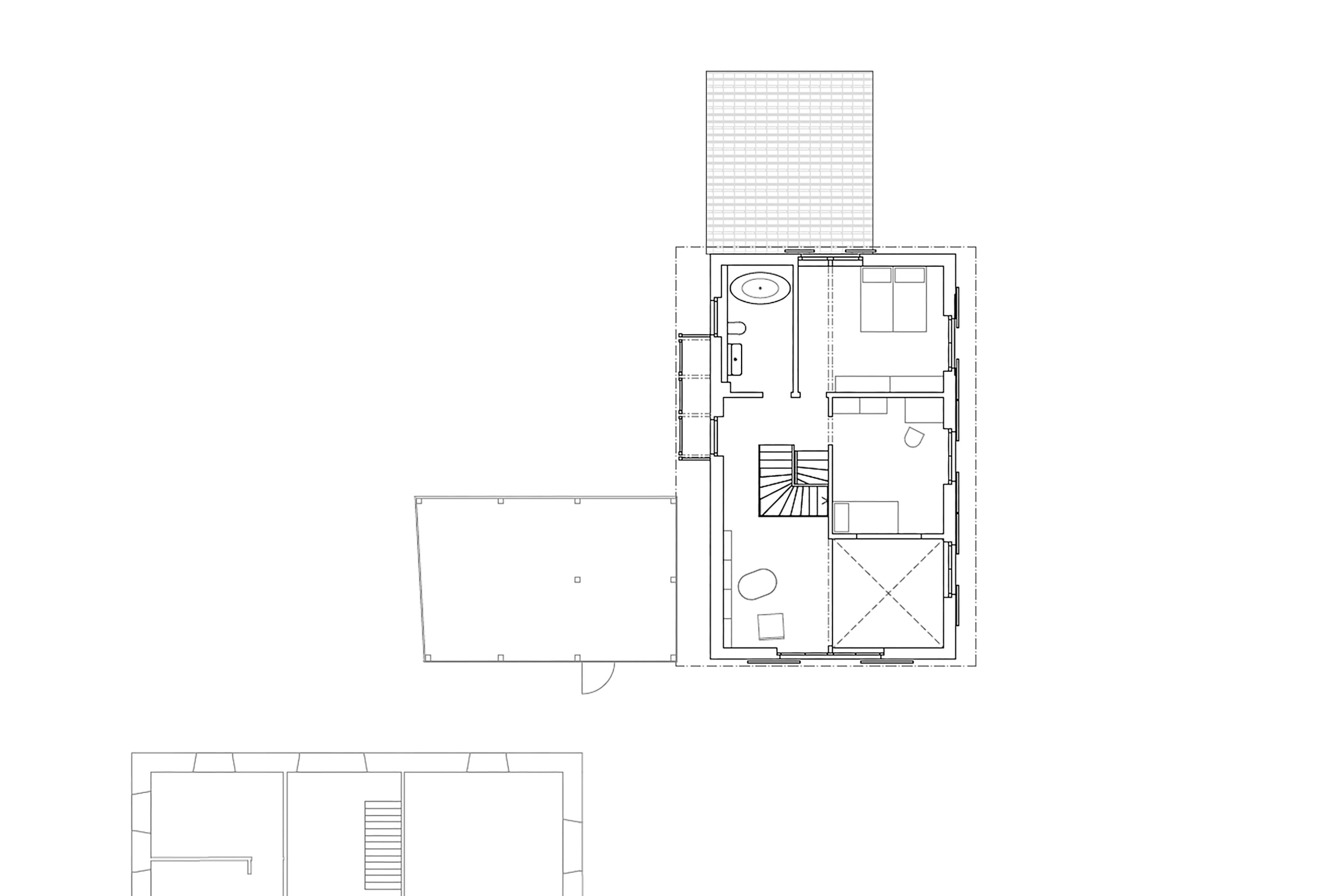
Ein wichtiges Anliegen der Bauherrschaft war es, dass der Neubau trotz der familiären Nähe eine gewisse Intimität wahrt, eigene Aufenthaltszonen im Aussenraum erhält und so auch im Hinblick auf eine mögliche spätere Abparzellierung als eigenständige Einheit funktionieren kann. Das Wohngeschoss orientiert sich im Wesentlichen nach Osten zur unüberbaubaren Landwirtschaftszone. Nach Süden, wo der Neubau an den Garten der Eltern grenzt, wurde das Erdgeschoss weitgehend geschlossen gestaltet, um direkte Einblicke zu minimieren. Der dadurch fehlende Lichteinfall wird durch ein grosses Fenster im Obergeschoss kompensiert. Durch eine optimierte Anordnung der Öffnungen in der Fassade und im Dach gelangt zu jeder Tageszeit Licht in den Wohnraum. Grosszügige Erschliessungsflächen, die zusätzliche Nutzungen ermöglichen, unterstützen als Reflexionsflächen dieses Konzept. 


Inwiefern spiegelt dieses Projekt die architektonische Haltung Ihres Büros wider?

Die Devise in der Baubranche lautet heute meistens: abreissen und neu bauen. Die Gründe dafür sind meist finanzieller Natur, um die Rendite zu steigern. Aber auch sonst ist unsere Gesellschaft von einer Wegwerf- und Einwegmentalität durchdrungen, die sich auch im Bauen widerspiegelt. Die Qualitäten eines Orts, die durch verschiedene historische Schichten geprägt sind, werden selten gesehen und schnell geopfert. Nachhaltigkeit ist ein zentrales Thema beim Bauen, das sich aber meist auf komplizierte technische Lösungen und Energieeffizienz beschränkt. 

Ich bin überzeugt, dass einfache Bauweisen und ein sinnvoller Umgang mit dem Bestand zielführender sind, wenn man Nachhaltigkeitsziele verfolgt, auch im Sinne einer sozialen Nachhaltigkeit, die von gewachsenen (sozialen und physischen) Strukturen lebt. In diesem Sinne spiegelt der Bau meine eigene architektonische Haltung wider. Ich habe versucht, die Qualitäten des Orts aufzugreifen und einen minimalinvasiven Eingriff vorzunehmen. 


Welche Erkenntnisse nehmen Sie aus dieser Bauaufgabe mit?

Ich nehme mit, dass eine Vereinfachung des Projekts durch finanzielle Realitäten oder baurechtliche Zwänge zu einer Schärfung des Konzepts führen und das Endergebnis positiv beeinflussen kann. Auf der Ebene der Kostenplanung müssen genügend Reserven eingeplant werden, da viele unvorhergesehene Arbeiten auf der Baustelle entstehen. Und auch auf der Ebene der Terminplanung sollten genügend Reserven vorhanden sein, da die Abhängigkeiten zwischen den einzelnen Gewerken vor allem in der Endphase sehr gross sind. Wenn das Terminprogramm zu enge Übergänge zwischen einzelnen Arbeiten vorsieht, führt dies bei Verspätung auch nur eines Gewerks zu einer Kaskade von Terminverschiebungen.

Weitere Infos: miszkowicz.ch

Neubau Birmensdorferstrasse, Urdorf

 

Architektur
Roman Miszkowicz, Zürich


Tragkonstruktion
Zehnder & Partner, Baden

 

Bauphysik
Herrmann Partner, Andelfingen

 

Planung: 2021–2022
 

Ausführung: 2022–2023