Riat­ti­va­re un vil­lag­gio al­pi­no: al­ber­go dif­fu­so a Co­rip­po

Data di pubblicazione
09-01-2024

Situato alla congiunzione tra il versante ovest della Val Verzasca e quello nord della Valle di Corippo, l’antico villaggio, circondato dai monti, occupa una posizione privilegiata nel paesaggio, aprendosi su un vasto orizzonte. Da oltre un secolo qui non vengono costruiti nuovi edifici, ragion per cui il paese si presenta oggi come un luogo cristallizzato all’inizio del Novecento.

La spazialità del borgo, cresciuto compatto su di un pendio scosceso, dipende strettamente dalla topografia: il suo tessuto si articola lungo un’asse pedonale pianeggiante, a sua volta collegato con tracciati perpendicolari a gradoni e con la piazza. L’agglomerato è contraddistinto dall’omogeneità costruttiva e materiale dei suoi fabbricati vernacolari, caratterizzati da muratura di granito a secco, coperture in piode a due spioventi, e dall’uso del legno di castagno e larice per le strutture portanti dei tetti e per i serramenti.

Nel 1975, con il lento ma inesorabile spopolamento del villaggio, il Cantone e la Confederazione si assunsero l’impegno di conservarlo: nacque così la Fondazione Corippo 1975. L’idea di albergo diffuso è l’interessante tentativo di rispondere a questa condizione, riportando vita, anche se transitoria, in un villaggio praticamente disabitato. Dunque, la sfida architettonica principale ha consistito nell’intervenire con cautela cercando di preservare la sostanza storica dei manufatti e di integrarvi le nuove esigenze funzionali senza mascherarle dietro linguaggi che replicassero i tratti della tradizione costruttiva locale. Al medesimo tempo, i progettisti hanno mantenuto una visione strategica di rigenerazione ad ampio spettro, volta alla valorizzazione complessiva, evitando una pericolosa musealizzazione.

È da questi presupposti che nasce il concetto di albergo diffuso,1 il quale, messo in atto attraverso micro-interventi che garantiscono uno sviluppo flessibile, può crescere ed essere adattato nel tempo. Con un approccio pragmatico, committenza e architetti si sono quindi orientati su una dimensione progettuale che sottende un piano economico, turistico e culturale che ne permetta la conservazione.

Il programma funzionale organizza da una parte il ristorante, dall’altra le numerose camere disposte nel tessuto del borgo. L’ampliamento, in cui è inserita la nuova sala del ristorante, è stato realizzato rialzando un muro di pietra ed eseguendo una copertura verde che richiama il sistema di terrazzamenti. L’espressione e la materialità (calcestruzzo, granito tagliato, acciaio zincato) dei pochi interventi esterni non nascondono la loro contemporaneità, mentre l’edificio si adatta alle nuove esigenze. La zona d’ingresso è stata valorizzata creando una ampia terrazza lastricata aperta sulla valle.

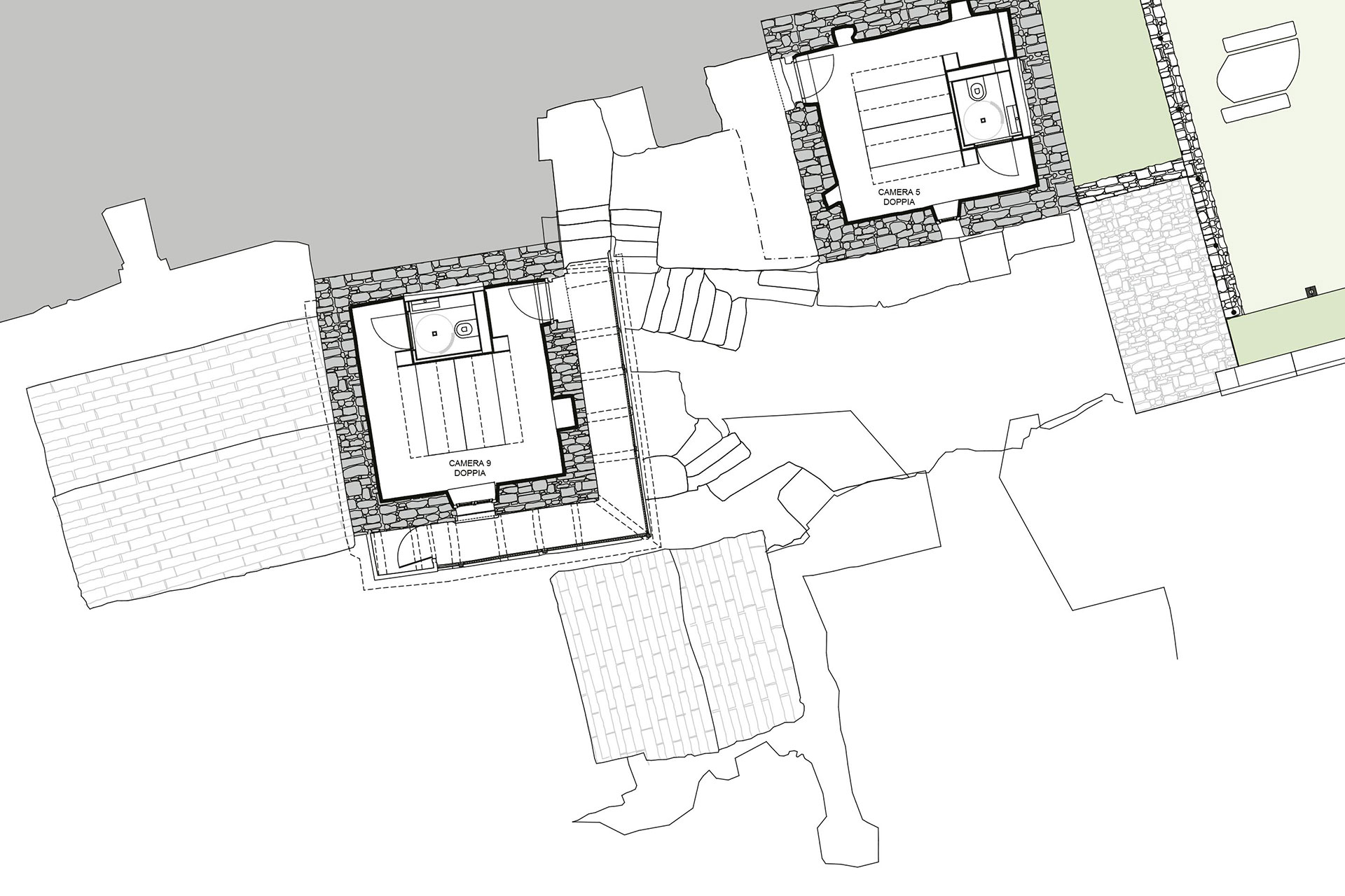
Disperse nel nucleo, le camere sono ricavate all’interno dei piccoli fabbricati esistenti costruiti in pietra che, date le loro dimensioni, ospitano una sola camera per piano. All’interno di ciascuna stanza, un volume in pannelli OSB contiene il bagno con doccia. La struttura portante di ciascuna soletta è stata mantenuta e, dove necessario, rinforzata, mentre sull’assito esistente è stato posato un nuovo pavimento in castagno.

Persa la sua esclusiva vocazione agricola, il villaggio riacquista vitalità accettando nuove funzioni che promuovono la socialità.

Luogo
Corippo

 

Committenza
Fondazione Corippo 1975

 

Architettura
Studio arch. Edy Quaglia, Lugano / Patà e Perret-Gentil Architetti, Locarno

 

Collaboratori
arch. A. D’Apice

 

Ingegneria civile
Studio ing. Sciarini SA, Vira Gambarogno

 

Impresa
F. Pedrazzi & Figli SA, Golino

 

Progetto RCVS
Marco De Carli studio d’ing. SA, Locarno

 

Progetto impianti elettrici
Scherler SA, Lugano

 

Illuminazione
Dimensione Luce SAGL, Bellinzona

 

Fotografia
Pino Brioschi, Bellinzona; Studio Job, Giubiasco; Studio NoCube, Vevey

 

Date
progetto 2017-2022, realizzazione 2020-2022

 

Intervento e tipo edificio
ristrutturazione e restauro edifici - costruzione nuova cucina e nuova sala osteria

 

Riscaldamento e acqua calda sanitaria
pompe di calore aria-acqua

 

Imprese e prodotti
EXFABRICA p. 61

Note

 

1 Il concetto di «albergo diffuso» viene elaborato nel 1982 in Carnia, all’interno di un gruppo di lavoro che aveva l’obiettivo di recuperare a fini turistici case e borghi ristrutturati a seguito del terremoto del 1976. Tra i membri del gruppo Flora Ruchat-Roncati e Leonardo Zanier, che teorizzò il modello messo poi a punto da Giancarlo Dall’Ara nel libro Manuale dell’albergo diffuso. L’idea, la gestione, il marketing dell’ospitalità diffusa, edito da Franco Angeli.