Mit Grund und Bo­den bauen

Auch in St. Gallen will die Lehmbaukunst hoch hinaus: Das Hotel Leo von Boltshauser Architekten wirbt mit der tags wie nachts erlebbaren Ästhetik von Lehmblöcken für das nachhaltige Baumaterial.

Date de publication
02-04-2024

Die Treppe im Hotel Leo direkt hinter dem Bahnhof St. Gallen wäre ein wunderbarer Ort für Donella Meadows Demonstration der komplexen Bewegungen einer Slinky-Schraubenfeder: Sie könnte hier hinunterspringen und würde dabei grösser und kleiner – genauso wie die Treppenstufen selbst. Auf den grossen Stufen auf der rechten Seite kann man sitzen; die kleineren links des Geländers führen zur Rezeption. 

Der Slinky, ein 1943 in den USA entwickeltes Kinderspielzeug, könnte in seiner Form kaum einfacher sein. Trotzdem verformt sich die Feder immer wieder in unerwarteter Weise, wenn sie, eine Treppe hinuntergeworfen, erratische Schwingungen und Schlenker produziert, sobald sich die Energie in einen anderen Teil der Laufspirale verschiebt. 

Weitere Beiträge zum Thema Lehm finden sich in TEC21 6/2024 «Lehmhybride».

Donella Meadows, die berühmte Umweltwissenschaftlerin, Systemtheoretikerin und Co-Autorin der vor gut 50 Jahren veröffentlichten «Limits to Growth»-Studie, bediente sich dieses Kinderspielzeugs, um in ihren Büchern1 und Vorträgen die Komplexität von Systemen zu illustrieren: Eine Bewegung eines einzelnen Systemteils erzeugt nicht in linearer Abfolge eine einzige Wirkung auf einen bestimmten anderen Teil. Vielmehr löst sie eine Vielzahl von Reaktionen im Gesamtsystem aus. 

Kaskaden eines Entwurfs

Die Systeme der Bauindustrie funktionieren ebenfalls nicht in linearen Wirkungsketten. Deshalb ist es so schwierig, sie nachhaltiger zu gestalten. Architektur und Ingenieurwesen können allerdings einen gewichtigen Teil dazu beitragen, den Klimawandel zu entschleunigen: Diese Forderung ist seit Jahrzehnten durch Berechnungen gestützt. Aber die Veränderungen in Planungs- und Bauprozessen folgen nicht der Logik der Dringlichkeit von Umweltfragen, sondern der von grossen Systemen. 

Diese lassen sich auch deshalb nur sehr schwer ändern, weil «das System mehr ist als die Summe seiner Teile»,2 wie Meadows schrieb. Denn aus Wechselwirkungen ergeben sich auch neue Eigenschaften und Verhaltensweisen. Wo also beginnen? Beispielsweise mit der Erde, die auf so vielen Baustellen weggeschaufelt wird. 

Spannende Beiträge zum Thema «Nachhaltiges Bauen» finden sich in unserem digitalen Dossier.

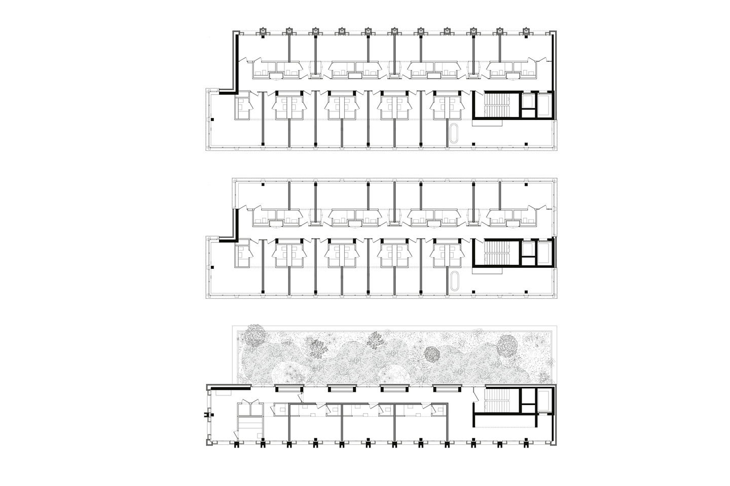
Das im Juli 2023 eröffnete Hotel Leo führt vor, wie Lehm auch bei einem grossen, hohen Haus die Atmosphäre prägen kann. Das Hotel ist ein Hybridbau, getragen von Beton und verkleidet mit Klinker – die Innenwelt aber schöpft direkt aus dem Boden. Zwischen wandhoch vermörtelten Lehmblöcken führt die grosse Eingangstreppe von der unteren Tür (gegenüber der Lokremise) hinauf zur Rezeption und zum oberen ­Eingang (neben der Villa Wiesenthal). 

Der Raum zwischen den erdigen, vielfarbigen Mauern ist auffällig schmal und lang. Hier lässt sich auch ohne Slinky viel zu den Systemen der Architektur sagen, insbesondere zum Grund und Boden, auf und mit dem gebaut wird. Wer hier isst, trinkt oder übernachtet, ist auf allen ­Geschossen des Hauses von aus dem Boden geschaufeltem, gepresstem und in die Höhe gestapeltem Erd­material umgeben.

Dem Baumaterial auf den Grund gehen

Als Bauland spielt der Boden hier, wie fast überall an zentralen Lagen, eine wichtige Rolle. Das achtgeschossige Hotel ist so schmal und hoch, damit die auf dem Grundstück seit 1878 beheimatete und kürzlich von Pfister Schiess Tropeano sanierte Villa Wiesenthal stehen bleiben konnte. So wurde mit einem guten Grund, um nämlich die historische Villa zu behalten, auf möglichst wenig Boden gebaut. Und zwar zu einem beachtlichen Anteil aus Lehm – also mit Aushubmaterial, das bis vor wenigen Jahren mehrheitlich auf Deponien landete. 

Das Bauen mit Stampflehm beschäftigt Roger Boltshauser seit vielen Jahren. Er studierte Kuppel- und Turmbauten von Burkina Faso bis Jemen, und bewies zusammen mit dem Lehmbauspezialisten Martin Rauch in Vorarlberg, dass das Bauen mit Lehm für den Innen- und Aussenraum, für Tragstrukturen und Verkleidungen, sogar für Möbel und Öfen taugt. Letzteres zeigt Boltshausers Ofenturm für das Ziegelei-­Museum in Cham. 

Wie er mit seinen Forschungsteams an der EPFL und ETH Zürich feststellte, wanderte die Technik des Stampflehmbaus entlang der Routen des Textilhandels im 18. Jahrhundert von Frankreich in die Schweiz – und so auch in die Ostschweiz3. Nun steht mitten in St. Gallen dieses kleine Hochhaus, das die Technik des Stampflehms in zeitgenössischer Adaption in verschiedenen Kompositionen inszeniert. 

102 Hotel­zimmer, ein Restaurant, ein Co-Working-Space, eine Parkgarage und ein Wellnessbereich sind in der Hochhausscheibe entlang der südlichen Grundstücksgrenze konzentriert. Das japanische Res­taurant, das sich im Sockel stadtseitig über die gesamte Länge des Gebäudes erstreckt, passt als kulinarische Ergänzung gut zur auf Reduktion bedachten Ästhetik des Hauses, das ganz auf die Wirkung der Lehmoberflächen setzt.

Komfort und Wellness mitdenken

Volllehmbauten werden oft skeptisch betrachtet, weil die gepressten und gestampften Lehmwände im Aussenbereich Pflege benötigen. Regen und Feuchtigkeit waschen die mineralischen Mauern auch bei schützenden Dachüberständen und Leistenkonstruktionen aus. Dies ist sogar dann der Fall, wenn den Lehm­blöcken Zement oder Kalk beigemischt wird, um sie zu stabilisieren. 

Im Innenbereich aber sind Lehmbausteine und Lehmverputze wegen ihrer sinnlich-haptischen Oberfläche zunehmend beliebt. Ein grosser Vorteil des hohen Mineralgehalts in Lehmwerkstoffen liegt in ihrer Porosität, genauer: Mikroporosität. Dank dieser wird ­s­owohl die Luftfeuchtigkeit als auch die Akustik natürlich reguliert. Zudem sorgt die thermische Trägheit für ausgeglichene Raumtemperaturen.

Das gewichtige Argument für die schweren Lehmblöcke in der Architektur ist also neben der Umweltbilanz auch der Komfort. Studien der Technischen Universität Dänemarks (2005) und der Abteilung Architektur- und Ingenieurwissenschaften der Univer­sity of Bath (2014) haben gezeigt, dass der Anteil von 3–5 % Zement, der gepressten Lehmziegeln je nach Verwendung zur Stabilisierung hinzugefügt wird, die Durchlässigkeit der Blöcke nur wenig beeinflusst. Die mit etwas Zement stabilisierten Lehmblöcke sind im Verhältnis zu ihrer Tragfähigkeit sehr schwer, worin aber auch – nicht nur bauphysikalische – Vorteile liegen. Der Lehm hat auch ästhetische Qualitäten und bleibt im Hotel Leo, ausser im Untergeschoss und im Sauna­bereich, nackt und sichtbar.

Die Wände entlang der Treppe in der Eingangshalle und im Restaurant sind mit kleineren Lehmbausteinen von 25 cm Länge (Terrabloc S) ausgemauert und verfügen über einen oberen Abschluss aus zwei Lagen vertikal gestellter Ziegel. Nach dieser ersten Begegnung der Hotelgäste mit dem Lehm reihen sich in den oberen Geschossen grössere Blöcke: die bereits in anderen Wohnprojekten und sogar in einem Wasserpumpwerk erprobten 80 cm langen Terrapad M. Im Wechsel mit den Pfeilern des Betonskeletts und der aussteifenden Kerne in Ortbeton ergeben sich auf den jeweiligen Ort und Raum abgestimmte rhythmische Kompositionen, wie sie für Boltshausers Bauten charakteristisch sind.

Die Lehmblöcke lieferte das 2011 gegründete Genfer Start-up Terrabloc, das seine Produktion in den letzten Jahren mit regionalen Partnern in der Deutschschweiz und der Romandie erfolgreich ausbaute. Die Möglichkeit, direkt den Aushub der eigenen Baustelle zu verwenden, wurde in St. Gallen geprüft und ver­worfen. Das Material stammt also nicht aus dem Baugrund, wie etwa beim viel kleineren Haus Rauch, aber aus der Nähe. So lassen sich Ressourcenverbrauch und Herstellungsenergie ­lückenlos nachverfolgen. 

In den Berechnungen zeigt der Lehmbau grosse Einsparungen gegenüber herkömmlichen Bauweisen mit Importen aus entlegenen Regionen. Dabei sind die Wege dieser Lehmbausteine im Vergleich zu den Transportwegen der Stahl- und Betonindustrie vernachlässigbar. Terrabloc-Firmenmitgründer Laurent de Wurstemberger betont, dass jeweils der nächstmögliche Aushub verwendet wird, damit die Produktionswege kurz bleiben. 

Erde, gebrannt und gepresst

Roger Boltshausers Entwurf übersetzt die Besonderheiten des Orts in ausdrucksstarke Schichtungen. Klinkerverkleidete Lisenen und Brüstungsbänder aussen, vermauerte Lehmblöcke und Glasbausteine innen; ­lange Linien überall, auch in den Grundrissen, die die Länge des Baus im Innern erlebbar machen.

Innen ist die Erde roh, aussen gebrannt: Die Fassadenverkleidung der Hochhausscheibe besteht aus grünlichem und weissgrauem Klinker, der von den ­hellen Putzflächen und dem grünlichen Sandstein der Villa Wiesenthal inspiriert ist und mit den vorfabri­zierten, mit Jurakalk aufgehellten Betonelementen zusammenspielt. 

Hinter die Lüftungsflügel, die den Rhythmus der Fassade mitorchestrieren, sind jeweils farblich ­kontrastierende, rostbraun gebrannte Terracotta-Elemente gesetzt. Als einziges Material ist die Terracotta von innen und aussen erlebbar. Sie vermittelt zwischen dem gebrannten Klinker aussen und den gepressten Lehmblöcken innen. 

Viel Licht dringt durch grosse Fenster und die Lochmuster. Bei all der Schwere des ver­wendeten Erdmaterials stellt sich ein stimmiges Raumklima und zugleich ein Gefühl von Leichtigkeit ein. Hier braucht es keine gerahmten Bilder über den Hotelbetten – die gepressten Lehmschichten bilden vielerlei Muster, Meditationen, Landschaftsbilder.

 

Anmerkungen


1 Donella Meadows, Thinking in Systems. A Primer, London: Chelsea Green Publishing 2008.
2 Ebd., S. 188.
3 Roger Boltshauser, Pisé – Stampflehm. Tradition und Potenzial, Zürich: Triest Verlag 2019.
 

Magazine