Voi­si­nages ur­bains

Le nouveau bâtiment genevois de Sergison Bates et Jean-Paul Jaccaud architectes

Les logements et la crèche de Sergison Bates et Jean-Paul Jaccaud architectes se positionnent avec précision dans le tissu urbain hétéroclite entre la gare de Genève et les quais du Rhône. Le bâtiment se distingue par la qualité des relations qu’il établit avec son voisinage urbain.

Date de publication
13-06-2012
Revision
19-08-2015

Issu d’un concours organisé par la Ville de Genève en 2006, le nouveau bâtiment de Sergison Bates et Jean-Paul Jaccaud architectes, sis à l’angle de la rue Rousseau et de la rue du Cendrier, dans le quartier de Saint-Gervais, occupe une parcelle qui fut longtemps l’une des dents creuses les plus célèbres de Genève. Sur ce terrain en friche depuis la fin des années 50, une cabane à vin chaud et un carrousel dispensaient des moments de distraction aux passants, depuis que la deuxième phase d’un aménagement urbain de grande envergure – avec notamment une voie rapide le long du Rhône – était restée au stade de projet.
L’emplacement est marqué par un voisinage d’une extrême diversité. Côté Cendrier (sud), il s’inscrit dans la continuité des immeubles du Mont-Blanc Centre (1951-1954) édifiés par Marc-Joseph Saugey. Côté Rousseau (ouest), il jouxte une ancienne école ménagère du 19e siècle, qui abrite aujourd’hui l’annexe du Collège et Ecole de commerce Nicolas-Bouvier. Au-delà de la rue Rousseau, le quartier reste marqué par un tissu urbain étroit datant du 18e, avec ses portes cochères, ses arrière-cours et ses cages d’escaliers ouvertes. Dans ce contexte urbain hétéroclite et complexe, il s’agissait pour les architectes de faire preuve de rigidité et de souplesse à la fois.

Une attitude dialectique

Là où d’autres auraient été tentés de se démarquer de l’existant à travers des formes spectaculaires, Sergison Bates et Jean-Paul Jaccaud ont choisi d’adopter une attitude dialectique: le nouvel immeuble, qui abrite 17 logements, une crèche et un bureau d’accueil familial, cherche à entrer en dialogue avec les morphologies environnantes distinctes, à leur répondre tout en absorbant plusieurs de leurs éléments spatiaux et volumétriques. Le rapport du jury explique que le projet «se positionne de manière précise dans le tissu urbain. Il réalise la couture entre deux architectures puissantes et originales (…). Il dégage une image forte, autonome et intègre les éléments du lieu : le socle, l’arcade et les formes à facettes des bâtiments voisins de Saugey, ainsi que la composition tripartite de la façade sur rue de l’école ménagère. (…) La composition de la façade fait preuve d’une grande force, mais également d’une grande subtilité, intégrant et interprétant de façon précise les éléments stylistiques des bâtiments voisins.»
Le périmètre de la parcelle aurait permis de laisser déborder le volume côté Rousseau et de mordre ainsi sur l’espace public, mais les architectes ont préféré respecter l’angle formé par la prolongation des deux fronts de maisons existants. En partant d’un point situé légèrement en retrait, les deux façades sur rue du nouveau bâtiment font de l’œil à leurs voisins : deux plis font onduler celle qui donne sur la rue du Cendrier, en direction des immeubles de Saugey, et une insertion légèrement convexe de la façade ouest, où la construction est collée contre l’ancienne école ménagère, gomme la perception du socle depuis la rue Rousseau. 
En plus, l’implantation subtile de ces deux faces extérieures du bâtiment préserve, voire accentue les perspectives en enfilade du quartier, comme celle qui se prolonge au-delà de la rue Rousseau, en direction d’un interstice qui ouvre sur une ancienne cour intérieure. Vu de plus loin, la nouvelle construction se fond littéralement dans son voisinage.
A travers ce jeu taquin qui tient presque du trompe-l’œil, le bâtiment de Sergison Bates et Jean-Paul Jaccaud s’intègre dans son contexte sans pour autant céder au pastiche. A première vue, il semble avoir toujours été là. Au deuxième coup d’œil et vu de plus près, on commence par remarquer sa force tranquille, quitte à s’effrayer presque de son côté massif. Mais ce n’est qu’au regard lent et répétitif qui intervient dans un troisième temps que le bâtiment dévoile ses finesses.
Obligés de rester en deçà de la hauteur du Mont-Blanc Centre de Marc-Joseph Saugey, les architectes ont néanmoins réussi à conférer à leur bâtiment une certaine emphase verticale. En rapprochant la façade de la structure au fil des étages, ils créent une impression d’élancement qui se trouve renforcée par les cadres accentués des fenêtres des étages 5 à 7, qui paraissent ainsi plus étroites. Les éléments opaques cassent le côté mécanique de la façade et permettent l’insertion de cloisons à l’intérieur des logements sans qu’il faille renoncer à la trame serrée des fenêtres de l’ensemble du bâtiment. Les deux types – l’un en T, l’autre en M – et les trois tons de couleur différents des éléments préfabriqués en béton – un gris de base, une teinte légèrement blanche et une autre jaune (2% de pigmentation dans la masse) – renforcent la vibration presque plastique crée par les plis verticaux. Ainsi, le bâtiment semble se mettre très légèrement hors de ses gonds, et il apparaît comme traversé par des vagues.
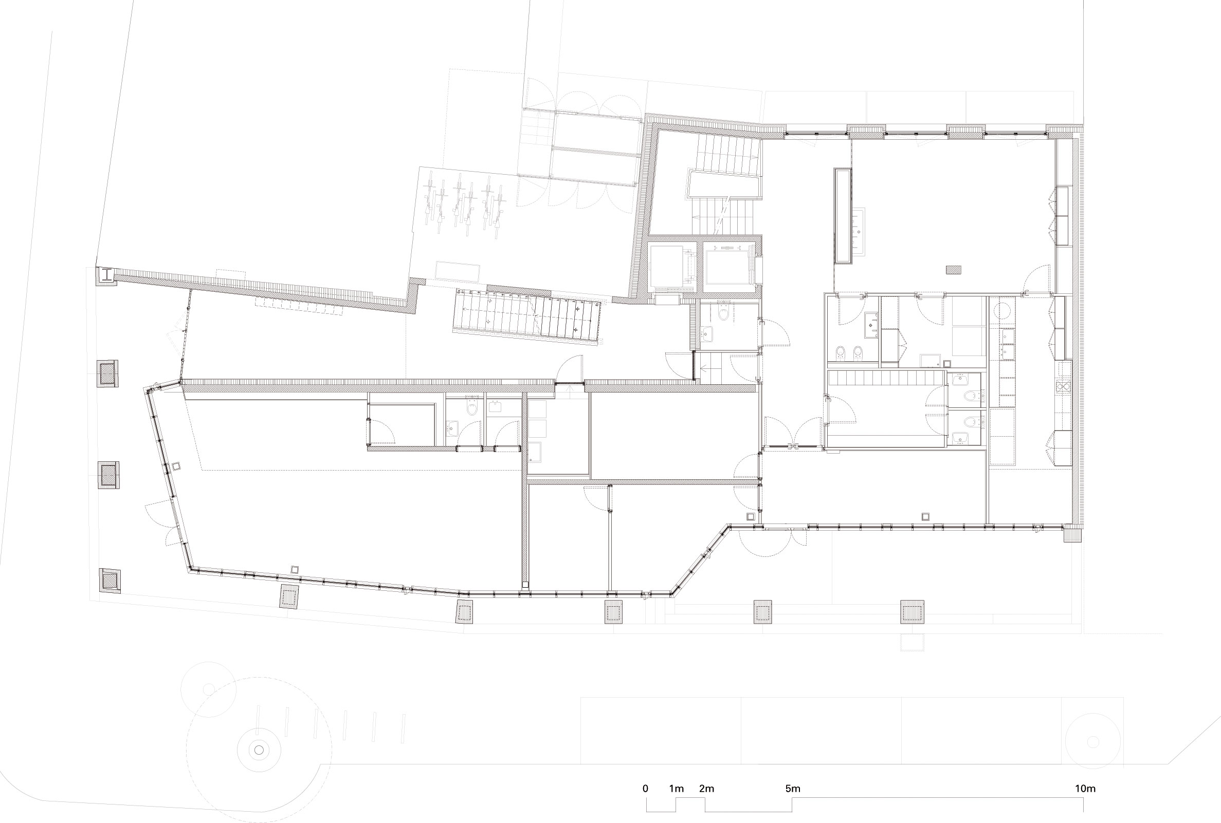
L’immeuble comporte une partie basse (rez-de-chaussée, 1er et 2e étages) qui forme son socle et accueille une crèche de 60 places et un bureau pour l’accueil familial. L’entrée est située sur la rue du Cendrier, dans le prolongement du passage couvert de l’immeuble voisin, légèrement en retrait et en contrebas. La cour arrière est réservée aux jeux des enfants, qui y apprennent les premiers gestes au volant sur des petites voitures en plastique. Toute végétation y est bannie, sur décision de la Délégation à la petite enfance. Les étages 3 à 7 sont dédiés aux logements, dont 14 sont subventionnés et destinés aux personnes à revenus modestes. Les trois appartements du 7e étage sont des logements à loyer libre. 
L’accès aux logements se fait par une grande entrée qui ouvre sur la rue Rousseau et dialogue avec la vieille porte cochère d’en face. Une porte à barreaux laisse passer l’air jusque dans la cage d’escalier, qui est également ouverte côté cour. Elle distribue des coursives extérieures qui offrent de l’espace appropriable aux appartements. Au dernier étage se dégage une vue sur les toits des bâtiments d’alentour, par-dessus la cour de la crèche, et il suffit d’équiper le palier d’une table, de deux chaises et d’un pot de basilic pour qu’il se transforme en véritable loggia semi-privative. Les habitants de tous les étages s’y retrouvent parfois pour boire un verre. L’intérieur des appartements – des 3, 4, 5 et 6 pièces – est équipé de manière volontairement sobre et laisse une grande liberté d’aménagement aux locataires.

Une culture d’échange

Jonathan Sergison et Stephen Bates ont fondé leur bureau à Londres en 1996. Depuis plusieurs années, ils travaillent régulièrement avec Jean-Paul Jaccaud, qui a fondé son propre bureau à Genève en 2004. Perçus respectivement comme «les Suisses de Londres» et «les Anglais de Suisse», ils collaborent sur certains projets de manière plutôt informelle et continuent de travailler chacun de son côté. La force de leur association vient sans doute en partie de cette manière de partager des expériences, d’une culture d’échange où il est possible de s’inspirer de l’autre tout en asseyant sa propre personnalité. 
Cette attitude se retrouve en quelque sorte incarnée dans l’immeuble des rues Rousseau et Cendrier, et le caractère dialectique évoqué plus haut traverse l’ensemble du projet. L’art du dialogue et de la discussion, celui d’absorber, d’écouter, de réfuter et de convaincre en un mouvement perpétuel est ici celui de s’appuyer sur le contexte urbain, de l’intégrer et de le restituer non pas pareil, mais augmenté, passé par le tamis d’une réflexion, d’un programme, de contraintes matérielles et financières. Les qualités qui en résultent – avant tout celles de la relation du bâtiment à son voisinage urbain – sont difficiles à fixer sur une photographie, et des images comme les figures 3, 4 ou 13, qui ne montrent que des portions infimes du nouveau bâtiment, paraissent anecdotiques à première vue. Néanmoins, à défaut d’un travail photographique minutieux, porté sur les détails, ce sont peut-être elles qui dévoilent le mieux l’insertion précise et subtile dans son contexte. Plus qu’un geste pour ou contre la ville, il s’agit ici d’un geste avec la ville. Sergison Bates et Jean-Paul Jaccaud ne pouvaient pas faire autrement.

Sur ce sujet