Une ar­chi­tec­ture qui fa­çonne paille et terre crue

Entretien avec Julien Cochard et Antoine Hahne

Aux Cullayes, le chantier de la villa familiale de Nathalie et Romano Hasenauer – une maison de paille avec enduits de terre crue – se termine peu à peu au gré des aléas de la météo. Car qui dit paille, dit matériau «vivant», soumis aux conditions d’humidité environnantes. Les architectes lausannois de Pont12 signent ici une réalisation tout en nuances, où la matière façonnée de main d’homme rencontre la rationalité d’une architecture rigoureuse et économe. Responsables du projet, Antoine Hahne et Julien Cochard évoquent les moments forts d’un chantier hors-normes.

Date de publication
25-06-2012
Revision
19-08-2015

On connaît plutôt votre travail au travers de réalisations comme les nouvelles halles de Beaulieu où le béton brut est à l’honneur. Mais une part de votre production s’attache aussi à exploiter des ressources locales, moins transformées, comme par exemple le bâtiment en rondins réalisé pour la commune de St-Prex en 2011. Cette fois, vous vous attaquez à une matière encore peu usitée dans la pratique contemporaine : la paille. Qu’est-ce qui a motivé ce choix ?
Antoine Hahne : Dans ce cas précis, c’est le souhait du maître de l’ouvrage qui a entraîné le choix du système constructif. Les propriétaires nous ont approchés avec, en tête, l’idée d’une maison « écologique ». A priori, il nous semblait y avoir contradiction dans les termes : la faible densité de ce genre d’implantation, couplée à la mobilité automobile qu’elle sous-tend, reste problématique dans une perspective large de la durabilité. Cette préoccupation a été au centre des discussions initiales. Puis, petit à petit, nous avons accepté de réfléchir à une dynamique de construction qui soit néanmoins appropriée à ce type de programme. 
Des réalisations en terre crue comme celle de Martin Rauch en Autriche étaient évoquées. Mais du point de vue des performances climatiques, les maisons en terre restent difficilement gérables. Leur mise en œuvre est par ailleurs extrêmement onéreuse. La paille s’est donc imposée comme matière première de base. En termes de développement durable, c’est en effet un matériau de premier choix : Elle pousse dans les champs voisins et elle y est directement façonnée en bottes, à seulement quelques enjambées du chantier (dans le cas présent, les bottes proviennent d’un rayon de 10 km autour du chantier). L’empreinte en énergie grise est ainsi pratiquement nulle. C’est aussi un matériau naturel, sain et économique. Nous avons donc conçu un projet sur mesure pour nos clients, non seulement du point de vue du choix des matériaux mis en œuvre, mais aussi en ce qui concerne le programme et l’élaboration des détails architecturaux.

Dans ce genre de construction, le matériau dicte souvent les choix esthétiques. On pense à des murs extrêmement épais, percés de petites ouvertures, à l’irrégularité des surfaces… Mais cette maison de paille semble déroger à la règle. 
Julien Cochard : En effet, nous avons voulu trouver un juste équilibre entre l’expression brute des matériaux constructifs et les choix architecturaux : la spatialité, l’apport de lumière, etc. En ce sens, nous avons dû inventer une série de détails pour lesquelles il n’existe aucune norme de tolérance. La rencontre des matériaux, le travail des joints s’est alors rapproché de l’artisanat. 
Du point de vue structurel d’abord, nous avons opté pour un système mixte, voir triple. Une partie de la maison est faite de bottes porteuses, les « grandes bottes », simplement empilées. Mais afin de pouvoir ménager des ouvertures plus généreuses pour certains des espaces de vie familiale, nous avons eu recours à une structure de bois dans laquelle des « petites bottes » sont enchâssées. Une fois mise en place, l’ensemble de la surface des bottes de paille a été aplanie à la tronçonneuse, puis recouverte de plusieurs couches de terre crue.
Par ailleurs, afin d’assurer une rigidité suffisante autour des grandes baies, un systèmes d’encadrements rigides en bois a été proposé par l’ingénieur Peter Braun. Les façades sont ainsi beaucoup plus ouvertes, percées de longs bandeaux ou de vastes baies donnant sur le jardin au niveau du rez. A l’étage notamment, les percements ainsi encadrés s’ouvrent sur toute la hauteur, posés directement sur la dalle.
Antoine Hahne : La paille, pensée à la fois comme structure porteuse et comme surface, a ainsi été poussée à sa limite. Nous ne voulions pas être asservis aux conditions de base du matériau mais cherchions plutôt à tester de nouvelles possibilités architecturales pour ce dernier. L’épaisseur importante des murs a été exploitée, par exemple, afin d’y insérer un long plan de travail dans la cuisine ou un sous espace habitable dans le séjour.

Des particularités au niveau du programme ont guidé la disposition intérieures des espaces ?
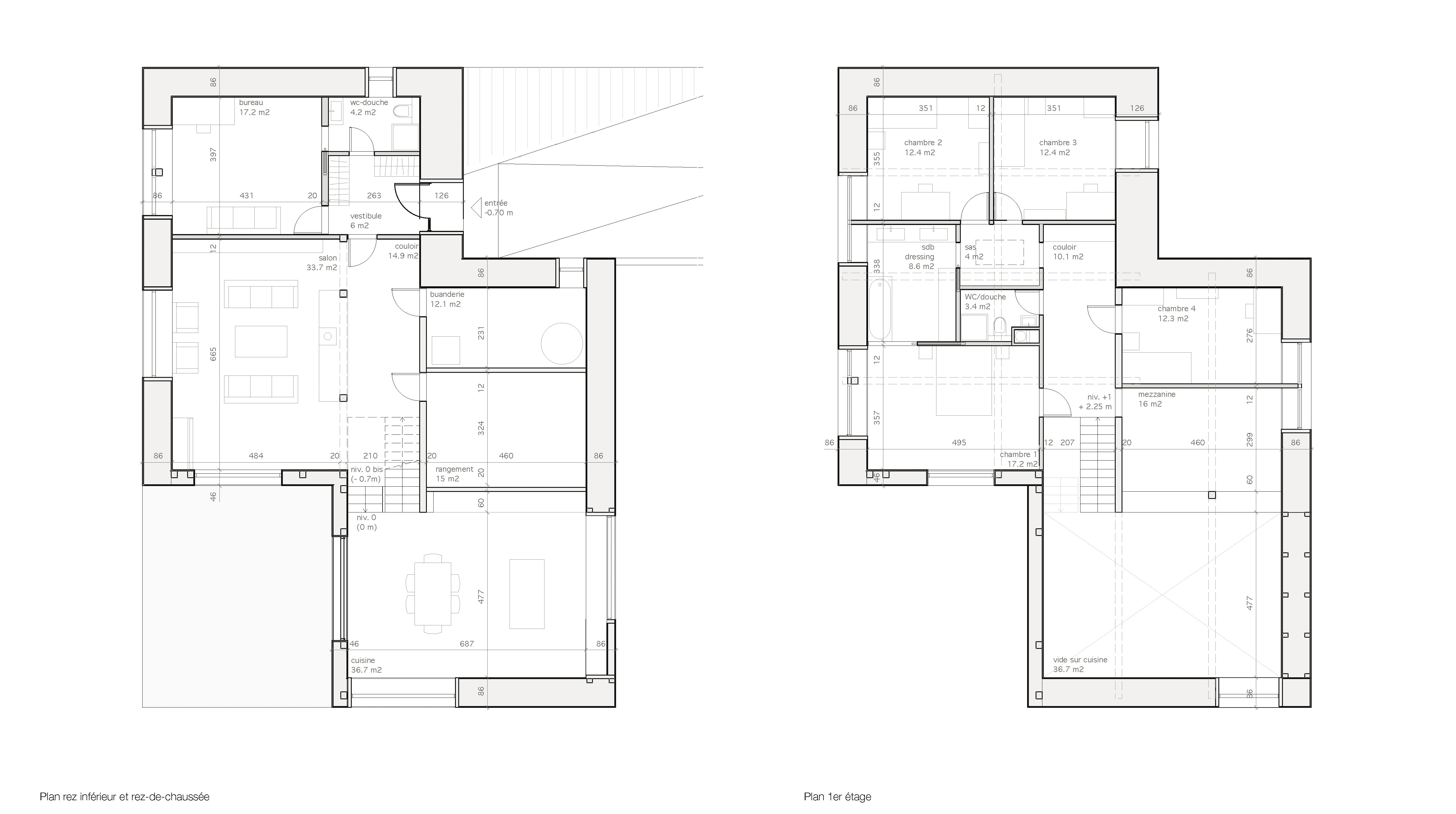
Antoine Hahne : La villa se pose sur le terrain naturel et s’ouvre sur la campagne avoisinante. Le règlement communal imposait une corniche à 5 m. Nous souhaitions tout de même travailler un volume compact, sur deux niveaux. C’est pourquoi, depuis le niveau du rez, légèrement encaissé et qui abrite le séjour, on accède via un demi-niveau à une vaste cuisine, espace central de la vie de famille et qui profite de toute la hauteur. A l’étage, un demi niveau plus haut, une mezzanine se développe dans le prolongement de la cuisine, assurant une continuité spatiale et visuelle. Les chambres complètent ce demi-niveau supérieur. 
Autre donnée du programme au rez, une pièce avec entrée indépendante qui a été pensée dans une perspective d’évolution des usages : elle sert aujourd’hui de bureau et pourra, dans quelques années, accueillir un adolescent en quête d’indépendance. Le sous-sol n’ayant pas été excavé, les locaux et installations techniques se trouvent aussi de plein pied, accolés à la façade sur rue comme un écran opaque.
La villa va tenter d’obtenir le label Minergie P, ce qui serait une première pour une construction en paille. Elle est entièrement chauffée par le biais de capteurs solaires situés au niveau de la toiture et par un poêle à pellets. L’air chaud est pulsé via un système à double flux, et distribué par une série de fentes discrètes, intégrées sous ou sur les encadrements des ouvertures.

Depuis quelques années, on parle beaucoup de la paille et de ses vertus pour la construction. Mais ce matériau reste peu usité et s’inscrit souvent dans un processus pour le moins expérimental – l’auto-construction – qui suppose une implication directe des futurs habitants. Comment avez-vous abordé sa mise en œuvre ?
Julien Cochard : Construire en paille reste en Suisse une pratique marginale, bien que suscitant un intérêt grandissant de la part du public. Mais il s’agit d’un processus très empirique, et pour lequel il n’y a pas de filiale professionnelle en place. Du coup, tout est à inventer, chaque fois. Les chantiers de maisons de paille sont par ailleurs très dépendants de la météo, la maîtrise du temps et l’organisation deviennent ainsi difficiles. L’économie faite au niveau du matériau est donc fragilisée par les coûts générés en main d’œuvre et en temps de travail. C’est pourquoi, très souvent, une large partie du chantier est réalisée par des non-professionnels. Dans le cas de cette villa par contre, nous avons cherché à sortir de l’auto-construction pour faire appel à des entreprises. Le but était d’intéresser des professionnels à ce mode constructif. Nous avons donc mandaté une entreprise pour la mise en place des bottes de paille, confiant cette tâche au charpentier qui avait monté la charpente sur un précédent chantier de maison de paille et qui cherchait à approfondir cette expérience. Mais nous voulions aussi pouvoir ouvrir le chantier au public, permettre aux futurs habitants d’y participer, de partager des savoirs et des savoir-faire autour de ce genre de bâtiments. Cela a été rendu possible lors de la pose des enduits en terre crue. C’est ainsi cette dernière étape qui représente peut-être le moment à la fois le plus expérimental et le plus traditionnel du chantier. Le collectif CArPE (voir encadré) s’est chargé d’organiser l’opération. Il s’agissait donc d’ouvrir le chantier à un processus social et participatif, mais aussi de communiquer autour d’une démarche constructive innovante et durable. Ce genre de pratique rappelle en effet certains modes de constructions anciens impliquant toute une collectivité, ou encore des travaux saisonniers comme les vendanges, où tous les habitants d’une commune se retrouvent. 
Des annonces passées via Internet, diverses plateformes écologiques, au sein des HES et de l’EPFL, ont permis de réunir quelques 40 intervenants bénévoles qui se sont succédés sur une période d’un mois, maniant candidement truelles et taloches. Il s’agissait non seulement d’étudiants en architecture intéressés à apprendre – sur le terrain –, mais aussi de particuliers de tous horizons, des membres de la famille, d’amis et, bien sûr, des propriétaires eux-mêmes. Ce type de projets suscite un réel engouement : la paille est porteuse d’un imaginaire, d’une poésie. 
La terre crue provient elle aussi directement du site, et sa riche couleur beige orne désormais les murs intérieurs de la villa. La terre exempte de particules organiques est concassée et séchée au soleil afin d’être tamisée. Elle est ensuite amendée de fibres et de sable pour la stabiliser. CArPE a aussi procédé à l’analyse de cette terre et à l’élaboration des recettes de mélanges pour les diverses couches d’enduit. Chaque couche (corps, accroche, finition) a une composition différente : teneur en argile, grains (1 mm, 4 mm, 10 mm) et fibres (paille, lin).
Appliqué en plusieurs couches, l’enduit de finition est ensuite lissé et taloché, puis épongé pour faire ressortir le grain, enlever la poussière et fixer la surface. La façade de paille, ouverte à la diffusion de la vapeur d’eau, respire et se stabilise peu à peu. Pour les enduits intérieurs, une fibre de lin est intégrée au mélange. Nous avons ici eu recours à une fibre produite dans la région, mais pas spécifiquement destinée à cet usage. Les petites graines présentes entre les fibres ont ainsi germé, produisant une sorte de «vérole» temporaire à la surface des murs. Mais ce problème a vite pu être résolu, grâce à la réversibilité de l’enduit en terre – il s’agit simplement de boue séchée – sur lequel les habitants peuvent eux-mêmes intervenir. Au fur et à mesure, ils peuvent ainsi réparer un trou, une tache, et vivre avec la maison, ses surfaces. Comme le souligne Nathalie Hasenauer : «Nous avons appris à préparer les mélanges, à manier la taloche. La maison se transforme au fil du temps : cela fait partie du charme de ce type de construction.» 

Julien Cochard est architecte EPFL et chargé de projet chez Pont12 architectes
Antoine Hahne est architecte EPFL, co-fondateur et associé chez Pont12 architectes.

 

Le collectif CArPE

Basé à Lausanne, le Collectif d’Architecture Participative + Ecologique CArPE est composé de quatre architectes engagés dans plusieurs projets écologiques de conception, réalisation et formation (voir TRACÉS n° 17/2009). Leur engagement ne se cantonne pas uniquement à la revalorisation de l’emploi des matériaux locaux et peu énergivores. En mettant la main à la pâte sur les chantiers, le collectif remet en question le processus de mise en œuvre du bâti tel que le rôle des décideurs, des exécutants et des utilisateurs dans un projet. En été 2009, le collectif a réalisé avec les habitants une maison en paille non-porteuse à Morrens (conception ATBA). Depuis janvier 2010, CArPE a conçu et réalisé une maison en bottes de paille porteuse sur la commune de Lausanne, à Vers-chez-les-Blanc. Entre 2011 et 2012, CArPE a également conçu le bâtiment administratif eco46 de la Ville de Lausanne, avec des matériaux locaux (terre, paille, bois), sous forme de chantier formation pour professionnels du bâtiment (env. 50 participants) et en collaboration avec la municipalité (www.lausanne.ch/eco46).

Sur ce sujet