Un en­semble ho­mo­gène dans une zone mor­ce­lée

La quartier d’habitation et d’activité Gordon-Bennett a été inauguré il y a quelques mois à Vernier, non loin de la Cité du Lignon. Les trois bureaux d’architecture genevois, LRS, 3BM3 et group8, ont choisi de travailler ensemble pour donner une identité commune aux cinq édifices à bâtir, et donc à la parcelle dans sa globalité.

Date de publication
17-09-2013
Revision
01-09-2015

Une parcelle de trois hectares et demi, où des bribes d’histoire ont laissé des traces. A Vernier, dans le canton de Genève, le nouveau quartier hybride de la Coupe Gordon-Bennett a éclos au printemps dernier, à mi-chemin entre Les Libellules et la Cité du Lignon. Pendant plus d’un demi-siècle, le terrain sert de site d’exploitation industrielle à Implenia ; dépôts et machines de chantier. En 2008, il est déclassé en zone 3 de développement et se destine dès lors à accueillir des surfaces administratives, commerciales et des logements. 
En 1906, le magnat de la presse américain et féru de sport James Gordon Bennett inaugure une compétition aéronautique, qui prend son nom. La manifestation itinérante a lieu pour la première fois dans le Jardin des Tuileries, à Paris. Les ballons à gaz qui participent à l’édition de 1922 prennent leur envol à Vernier, depuis le terrain dont nous parlons. Echo à l’anecdote, les cinq bâtiments qui forment le quartier portent chacun un nom de vent (mistral, bora, joran, scirocco – à l’italienne – et zéphyr). Et le restaurant de l’îlot s’appelle... la Cité des Vents. La course aéronautique a aussi donné son nom à la rue qui traverse la zone, et au quartier tout entier. 
Implenia, propriétaire de la parcelle, lance un concours pour le plan localisé de quartier (PLQ) et les cinq bâtiments à réaliser. Une dizaine de bureau d’architectes genevois sont invités à y participer. LRS Architectes remporte le sésame, suivi de 3BM3 et group8. Comme convenu, le lauréat du concours est chargé de réaliser le PLQ et 50% des surfaces brutes de plancher (soit deux édifices, l’un administratif, l’autre de logements en location), le bureau arrivé en seconde place conçoit deux autres bâtiments, et le troisième imagine la cinquième construction. 
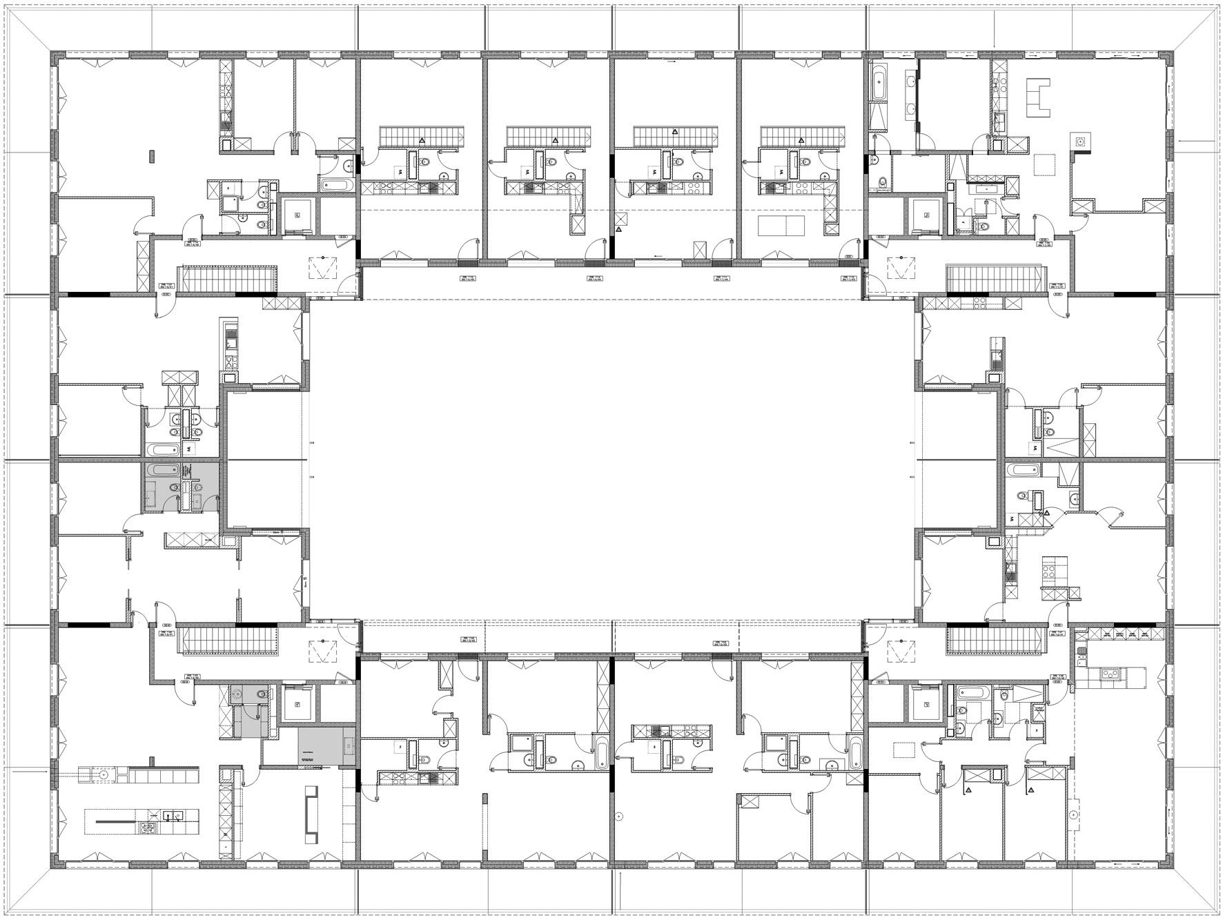
Dans ce périmètre morcelé, où s’émiettent friches industrielles, grands ensembles, jardins familiaux et zone villas, LRS a choisi de penser le PLQ comme un liant. Le quartier Gordon-Bennett n’est pas fermé sur soi, il instaure un dialogue avec les éléments existants. Les bâtiments, dont le front est parallèle au siège central des SIG, au nord, s’articulent autour d’un mail central de 300 m de long – devenu une véritable rue (image). Leur gabarit décroît graduellement, de manière à faire le lien avec le tissu villa, à l’est (plan). Une zone qui va sans doute disparaître à moyen terme – la variation des hauteurs des édifices en gardera la trace. Quatre des cinq immeubles abritent des logements – 270 au total, dont 100 en PPE et le reste à prix libre ou modéré – et des commerces dans une partie des espaces du rez-de chaussée. Le cinquième, construit par LRS Architectes, est purement administratif et commercial. L’ensemble se dresse sur un parking souterrain de deux étages, de quelque 500 places. 

Cohérence 


Les trois bureaux d’architectes ont opté pour la collaboration, histoire de donner au quartier une identité commune. Les constructions forment ainsi un ensemble cohérent, même si chacune affiche ses particularités. Les quatre bâtiments d’habitation sont enveloppés de balcons filants de 2.5 m de large, avec des garde-corps métalliques aux motifs végétaux – group8 a conçu avec les Zurichois de Kaisersrot les objectifs (forme et fonction) pour définir la paramétrisation du design des balustrades. Les coursives, qui totalisent 4 km, homogénéisent l’ensemble et permettent aussi de reléguer au second plan la façade de crépi et les fenêtres en PVC, et de contrôler les vis-à-vis. 
Les trois bureaux genevois ont imaginé un jeu chromatique autour d’une palette de cinq couleurs – une déclinaison de verts. Pour répondre à la stratégie d’unification, les couleurs ne sont pas appliquées par bâtiment, mais organisées par poches (schéma). 
L’archétype de cette volonté d’identité différenciée ? Les cours. Les cinq bâtiments se déploient autour d’un patio, dont chacun révèle des détails spécifiques (image 1 et image 2). La cour du bâtiment administratif a été surélevée, pour se transformer en grand atrium. Et puis, si l’ensemble du quartier révèle une identité commune, la palette de types de logements est variée : duplex, tubes, appartements traversants ou non, avec ou sans loggia.

Espace public


Dans cet objectif d’homogénéisation du quartier, les trois bureaux d’architectes ont proposé à Implenia de lancer un concours pour les espaces publics et les aménagements extérieurs. L’entreprise a joué le jeu. Le projet des architectes-paysagistes d’Atelier Descombes Rampini SA, parmi cinq autres, a séduit. 
L’espace public du quartier s’échelonne par paliers successifs. Le mail central constitue l’espace le plus important ; on y circule, mais on peut aussi prendre un temps de repos ou engager une conversation avec un voisin, assis ou allongé sur les bancs de béton préfabriqué. L’axe central est une rue piétonne, à l’intérieur de l’îlot. Elle n’a que peu de caractéristiques communes avec une rue commerçante de centre-ville. Son revêtement en béton noir sablé lui permet aussi d’être emprunté par des véhicules motorisés, camions de livraison ou de pompiers. De grandes dalles – analogues à celles des trottoirs genevois, mais avec des joints plus espacés –, puis un revêtement en gravier, font la liaison entre la rue et le pourtour des bâtiments. 
Plusieurs interstices conduisent ensuite à la place de jeux (image), développée en collaboration avec le bureau zurichois motorsänger gmbh (Atelier Descombes Rampini SA avait déjà conçu avec lui celle de l’Ecole des Eaux-Vives). Antithèse des places de jeux froides où les équipements semblent avoir été largués au hasard sur un terrain, celle-ci se compose de divers éléments en bois clairs qui dialoguent, dressés au milieu de quelques arbres. Jouxtant la place, une vaste pergola s’étend tout en longueur, abritant deux tables et des bancs en bois. Parallèlement à la place de jeux et à la pergola, un bassin en béton permet de se rafraîchir.
Au nord de la parcelle, vers les bâtiments des SIG, Atelier Descombes Rampini SA a réalisé une butte de 1.20 m, pour atténuer le bruit de la route. La commune de Vernier envisage de limiter cette route à 30 km/h. 
Si à 30 km/h l’élévation ne sert plus à protéger du bruit, elle  répond tout de même à une fonction essentielle : séparer visuellement cette portion du quartier Gordon-Bennett de la route, permettant aux habitants d’occuper l’espace. Pour lier le quartier de Gordon-Bennett au bâtiment des SIG, Atelier Descombes Rampini SA a réalisé une zone végétalisée. Un grand espace vert lie ainsi les deux ensembles. 
Par souci environnemental, le bureau genevois a préféré un gazon fleuri à un gazon standard, car il se compose d’un mélange plus riche d’essences. Ces espaces plantés sont pensés comme des petites prairies qu’on laisserait pousser presque spontanément. Atelier Descombes Rampini SA évite ainsi l’effet terrain de golf. Dix arbres se dressent sur le parking à ciel ouvert. Il a fallu convaincre le maître d’ouvrage, chaque arbre prenant la place d’une voiture. 
Les bancs et les bacs de gazon fleuri sont en béton. Sa teinte vert tendre entre en résonance avec la gamme chromatique choisie par les architectes pour parer leurs bâtiments, sans pour autant faire concurrence avec elle. 

Aperçu de deux bâtiments 


Le bâtiment Scirocco, conçu par LRS Architectes, abrite 89 appartements en location. Des commerces prennent place dans les parties du rez-de-chaussée qui donnent sur le mail central ou la cour. Les activités collectives peuvent donc être pratiquées dans la cour, sans déranger. Plusieurs bancs invitent à la rencontre et des bouleaux ponctuent l’espace. Pour limiter la hauteur du front bâti donnant sur la cour, les architectes ont choisi de mettre l’étage d’attique légèrement en retrait. 
L’immeuble Joran, imaginé par group8, est dévolu à des habitations en PPE et la cour révèle un tout autre univers. Elle ne dispose ici d’aucun banc ; elle est davantage conçue comme un lieu de déambulation, de croisements. En ce sens, group8 a dessiné un petit réseau de chemins, ondulant entre les pins, qui fait écho au motif végétal des garde-corps. L’entrée principale conduit aux six entrées secondaires, chacune d’elle étant reliée à une autre. Les façades sur cour, blanches, contrastent avec les façades extérieures ; les embrasures reprennent les cinq couleurs utilisées à l’extérieur de l’ensemble. Le patio est surélevé de 60 cm par rapport au mail central, pour préserver l’intimité des logements situés au rez-de-chaussée. A l’intérieur, les cages d’escalier sont placées dans les angles, pour répondre à la problématique des vues droites. Dans chaque appartement, une bande linéaire contient les espaces servants. Les chambres donnent sur cour et les espaces communs sur la coursive. 
Le nouveau quartier verniolan affiche une certaine cohérence, une homogénéité. Ce qui fait aussi sa valeur, c’est sa porosité. Les bâtiments ne sont pas simplement posés sur un terrain, mais constituent une véritable portion de ville. L’îlot lie ce qui existait déjà – un territoire morcelé –, avec la création d’une nouvelle voie publique qui traverse la parcelle. Perméabilité (avec tout de même des espaces semi-privés, les cours), mixité programmatique (commerces, bureaux, logements en PPE et en location). Le nouveau quartier Gordon-Bennett, imaginé par un groupe de travail constitué de plusieurs bureaux d’architectes (dont un qui chapeaute le tout) et d’ingénieurs, fait ainsi écho à la notion, en France, de macrolot (voir article lié). 

 

Informations générales

Programme : 2 immeubles de logements en location, 2 immeubles de logements en PPE et 1 immeuble administratif
Parcelle : 34 907 m2
Surfaces : Administratif 13 423 m2, logements locatifs 11 047 m2, logements locatifs 9 791 m2, logements en PPE 7 966 m2, logements en PPE 7 180 m2. Total : 49 407 m2. Stationnement 630 voitures (dont 512 en sous-sol) et 370 vélos
Label obtenu : Minergie

 

Intervenants

Maître d’ouvrage: Suva + Acquéreurs privés (PPE)
Promotion: Implenia Development SA
Entreprise générale: Implenia Entreprise Générale SA
Mandataires: LRS Architectes Sàrl (PLQ et 50% des SBP), Atelier d’Architecture 3BM3 SA (2 bâtiments) et group8 Sàrl (1 bâtiment) (architectes) ; Atelier Descombes Rampini (architectes-paysagistes) ; Schaeffer G. & Bartolini S. SAIngeni SAZS Ingénieurs Civils SAPillet SASansonnens SAPerreten & Milleret SA (ingénieurs civils) ; motorsänger gmbh (place de jeux)

Magazine

Sur ce sujet