Sé­beil­lon, Lau­sanne (Vaud)

DRA IIII: mention

Date de publication
03-10-2018
Revision
16-10-2018

Ce qu’en pense le jury

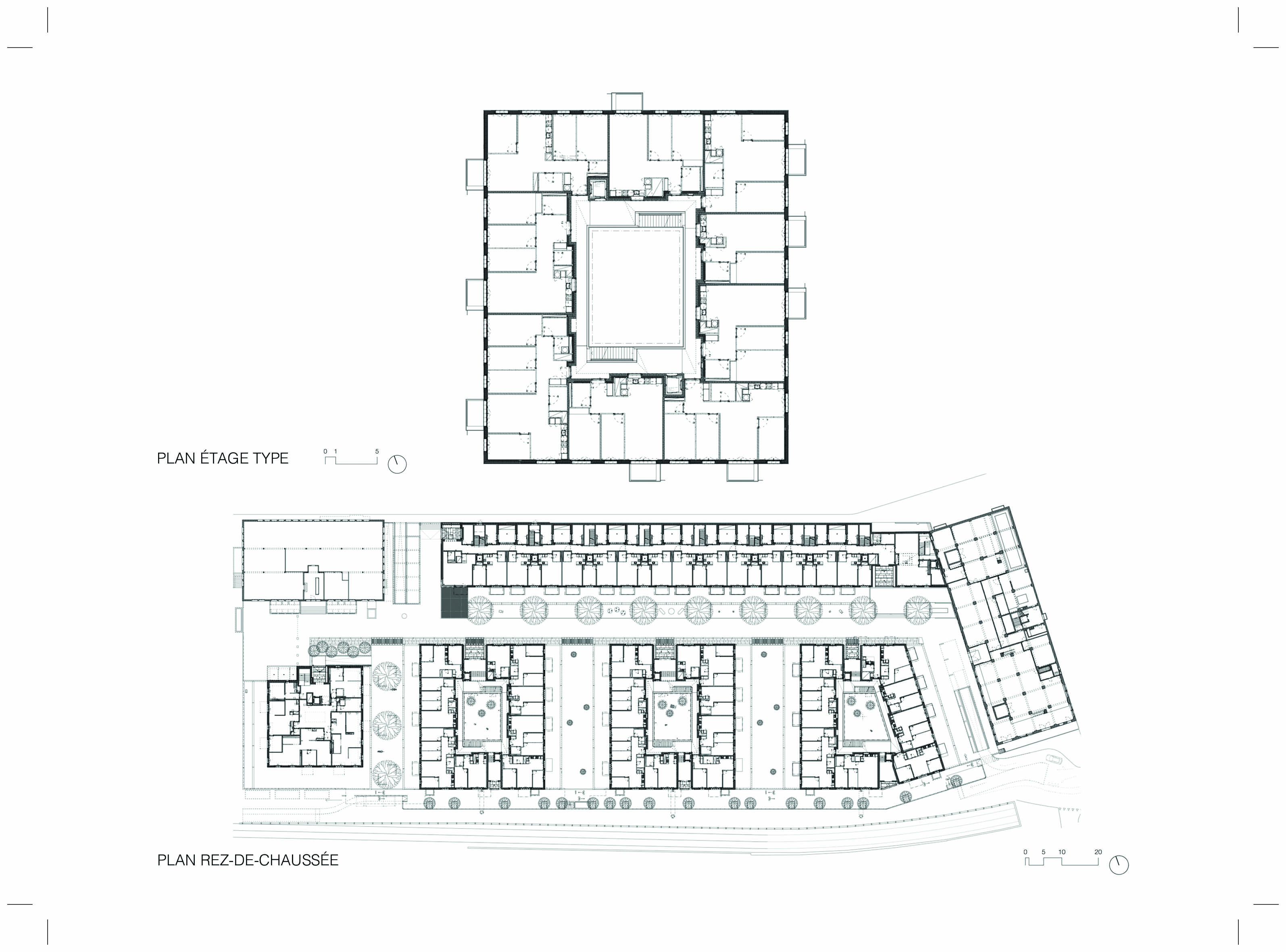
Cinq corps de bâtiments composent le prélude d’un nouveau quartier aux alentours de l’ancienne gare de marchandises du quartier industriel de Sébeillon à Lausanne. Quatre immeubles en plots sont disposés devant une barre d‘immeuble qui détermine un front urbain le long de l’Avenue de Sébeillon. La force de la composition prête à l’ensemble une vivacité et une aura que renforce l’aspect massif de la matérialisation, en béton et pierres de parement. Une touche de clacissicisme mêlée à une rationnalité contemporaine font osciller ces constructions nouvelles entre deux époques, et donnent du caractère à ce nouveau quartier résidentiel. Les cours intérieures sont bien proportionnées et permettent de favoriser les relations sociales entre les résidents. A chaque étage, on retrouve neuf appartements dont les typologies diversifiées sont développées de manière très efficace.

086 | SÉBEILLON, Lausanne (Vaud) / 2013–2016

Architecte : BABL, Bakker & Blanc architectes associés, Lausanne.

 

Maître d’ouvrage : Realstone SA, Lausanne

 

Ingénieurs: Fluides-Concept, sanitaire, Romanel sur Lausanne / Ignis Salutem, sécurité, St-Légier / Perret-Gentil+Rey Associés, Civil, Lausanne / Perrin+Spaeth Ing. conseil, électricité, Renens / Weinmann Energies, Chauffage ventilation, Echallens / Architectes paysagistes: In Situ SA, Montreux

Sur ce sujet