Parmi nous

Bordures de villes, entrées d’autoroutes bruyantes, friches industrielles et campagnes isolées: voilà les lieux de prédilection pour les centres d’hébergement pour requérants d’asile. Situé en plein milieu d’un quartier d’habitation, le foyer au chemin du Chasseron imaginé par le bureau zurichois Isler Gysel Architekten à Lausanne constitue une exception.

Date de publication
04-01-2022

Pour les pays d’accueil, la question de l'asile – le nombre et la provenance des requérants d’asile a accepter – est malheureusement brûlante d'actualité. Et malheureusement, la situation géopolitique et environnementale du monde nous laissent penser qu'elle sera encore plus présente ces prochaines décennies. 

Un centre d’hébergement est aussi une question d’architecture. Localisation, architecture adéquate, taille des chambres – la tâche est indubitablement difficile. Toutefois, d'autres liens entre architecture et requérants d’asile, tout aussi complexes mais moins ostensibles, entrent en ligne de compte: le commerce de métaux ou de matières premières fossiles et les produits qui en sont dérivés destinés à l’industrie du bâtiment, ou encore la délocalisation de la pollution engendrée par le déplacement des sites de production à l’étranger. Il s’agit là d’un réseau mondial, étroitement lié à la question des réfugiés. Et paradoxalement, les produits qui en résultent constituent l'une des bases de la croissance des pays européens et l'une des causes des flux migratoires.

Cet état des choses souvent caché par le domaine de la construction change considérablement la manière d’appréhender la thématique., . Au-delà de l’action humanitaire, l’accueil est alors aussi une manière d’assumer nos responsabilités face à nos actes et leurs conséquences. Les requérants d'asile passent du statut de marginaux dans une situation précaire à celui de personnes ayant droit à une vie normale et à se construire une nouvelle existence. Et pour cela, il faut leur accorder une place au centre de la société. 

Les alternatives existent

L’établissement vaudois d’accueil des migrants (EVAM) poursuit justement une stratégie d’intégration des requérants d’asile allant dans ce sens. En 2013, l'EVAM a acquis un terrain en plein centre ville afin d'y construire un bâtiment neuf. «Une telle opportunité est très rare», affirme Erich Dürst, directeur de l’établissement de droit public du canton de Vaud. «Pour nous, l’environnement urbain constitue une chance. Nous mettons tout en œuvre pour qu’il puisse contribuer à l’intégration de ces personnes». Et, cette intégration sociale et économique, passe également par une intégration géographique. Pour Erich Dürst,qui a accompagné le concours en procédure ouverte en 2014, il fallait concevoir le nouveau bâtiment de manière à permettre à ses habitants temporaires de s’établir en ville, de s'acclimater, d’accéder facilement à l’infrastructure et d’effectuer des recherches d’emploi et d’appartement sans devoir parcourir de longues distances, par exemple. Le cahier des charges soulignait également la grande variété de statut des futures usagers – réquérants d'asile, réfugiés admis à titre provisoires, réfugiés reconnus et admis définitivement – et des besoins.

Repères

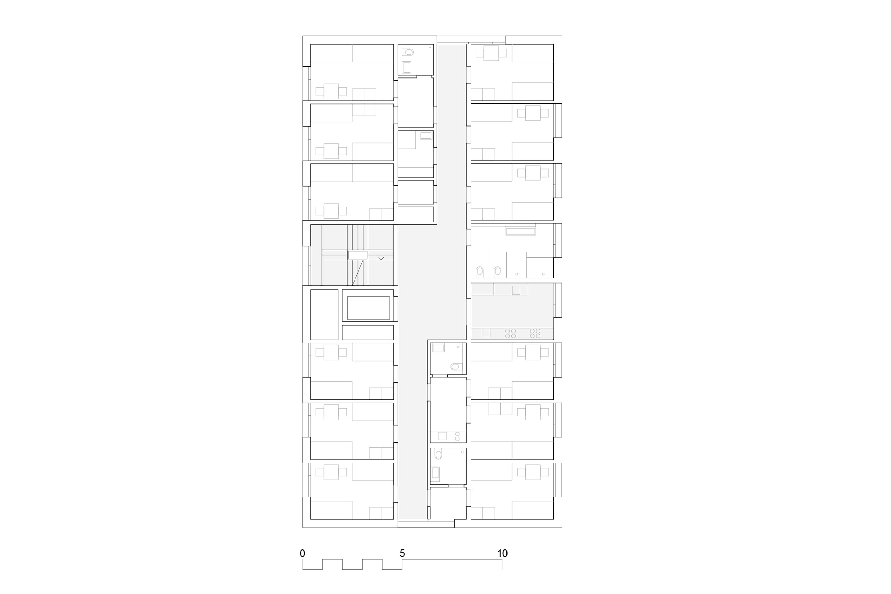
Le nouveau bâtiment, investi depuis peu de temps seulement, n’est actuellement que partiellement occupé, raison pour laquelle il semble encore un peu austère. Le projet lauréat du bureau zurichois Isler Gysel Architekten n’a pas eu recours au système de container, qui est généralement la réponse donnée à ce type de programme et qui donne la plupart du temps une impression de lieu provisoire.

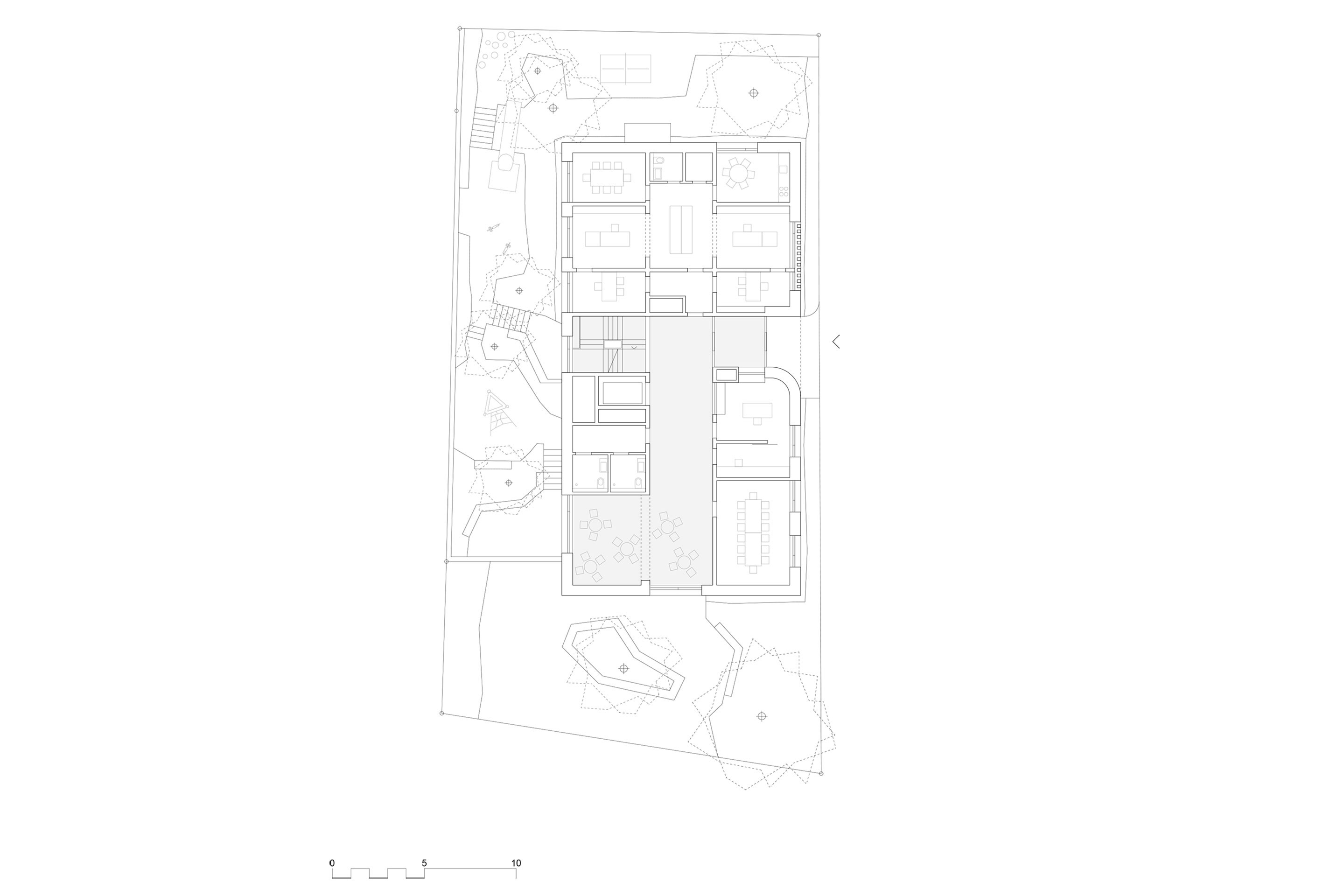
Quant au cahier des charges, il fixait des exigences bien précises: densification maximale de la parcelle et construction d’un bâtiment solide et bon marché. En à peu près deux mois seulement, les modules en bois préfabriqués ont été installés au-dessus du socle et autour de la cage d’escalier en béton, formant les étages. Au niveau de sa forme, le volume et sa toiture pliée s’intègrent à l’environnement bâti de façon discrète. En revanche, la façade en Eternit teintée en vert se veut autonome et contemporaine.

À l’intérieur, le maître d’ouvrage a demandé pour la plus grande partie des 103 places prévues des chambres doubles unisexes. Loin d’être généreuses, les chambres pour deux personnes de 12 m2, soit 30 m3, répondent au minimum légal. L’appartement dans les combles est destiné à un groupe ou une famille.

Les quelques chambres pourvues d’une cuisine et d’une salle de bains sont destinées à des familles et les chambres possédant uniquement une salle de bains sont réservées aux personnes souffrant d’une maladie. Chaque étage dispose d’une cuisine commune de couleur différente; le repas s’effectue dans les chambres qui sont toutes équipées d’un réfrigérateur individuel.

Les étages proposent uniquement des WC unisexes, mais le plan organisé en différentes zones répond au critère de flexibilité permettant un hébergement adapté aussi bien à des groupes qu'à des personnes seules – l'un des atouts importants de la proposition du bureau Isler Gysel Architekten.  

Ouvertures intérieures

Confort, échange social et sphère intime, éclairage et matériaux appropriés – pour les architectes zurichois, les besoins des résidents ne se distinguent pas réellement de ce ceux des autres habitants du quartier. Par conséquent, la fonction du bâtiment – un centre d’hébergement – n’a ni été mise en avant ni cachée.

Un travail spécial a été mené sur la transparence. Rideaux et motifs permettent d'atténuer une transparence inhabituelle qui pourrait être perçue comme invasive par certains résidents.

Ouverture vers l’extérieur

L'architecture est également pensée pour favoriser l'échange entre le quartier, les bénévoles et les résident·e·s du centre. Une salle commune destinée à toute sortes d’événements est située au rez-de-chaussée, proche du parvis côté rue et une aire de jeux ouverte pour les enfants vient agrémenter le jardin du bâtiment.

Contrairement à ce qui se pratique dans les centres fédéraux pour requérant d'asile, l'entrée au centre n'est pas affublée d'un sas de contrôle. Les habitant·e·s disposent d’un badge leur permettant d’accéder à leur chambre et – autre liberté accordée – les visites sont autorisées et bienvenues.

Cette version lausannoise du centre pour requérants d’asile – dont le nom, «foyer d’hébergement» sonne plus accueillant et moins pragmatique – rend l'intégration possible et imaginable, puisqu’on accorde à ses habitants une certaine normalité dans leur quotidien. Ils sont amenés à profiter de ce qu’offre la ville, un « droit à la ville » qui rend leur situation difficile plus vivable.

Et si un jour, dans un monde plus juste, la notion de réfugié venait à disparaître, le foyer pourrait être reconverti sans grands travaux en un foyer pour étudiants ou pour personnes âgées –, signe d'une architecture qui ne veut pas s'inscrire dans une politique de l'asile des «vols spéciaux».

 

Acteurs impliqués

 

 

Maître d’ouvrage

EVAM, établissement vaudois d’accueil des migrants

 

 

Architecture

Isler Gysel Architekten, Zurich

 

 

Direction des travaux

a.planir, Echallens

 

 

Ingénieur bois

PIRMIN JUNG Schweiz AG, Thoune

 

 

Ingénieur civil

Perret-Gentil + Rey & Associés, Yverdon-les-Bains

 

 

Physique du bâtiment

PPLUS, Neuchâtel

 

 

Paysagisme

Bischoff Landschaftsarchitektur, Baden

Sur ce sujet