Coo­pé­rer en zone vil­las

Issu d’un concours organisé en 2011 par la Coopérative de l’habitat associatif (CODHA), l’ensemble de logements Rigaud 55 répond à une tâche délicate: créer un habitat dense qui s’inscrit dans le paysage d’une zone villas. Sans chercher la confrontation, sans opposer l’urbain à la périphérie, ces grosses maisons partagées réalisent en douceur la transition du «chez-soi» au «chez-nous». 

Date de publication
07-03-2019
Revision
07-03-2019
Nicolas Bassand
architecte EPFL, docteur ès sciences et chargé de cours hepia / HES- SO

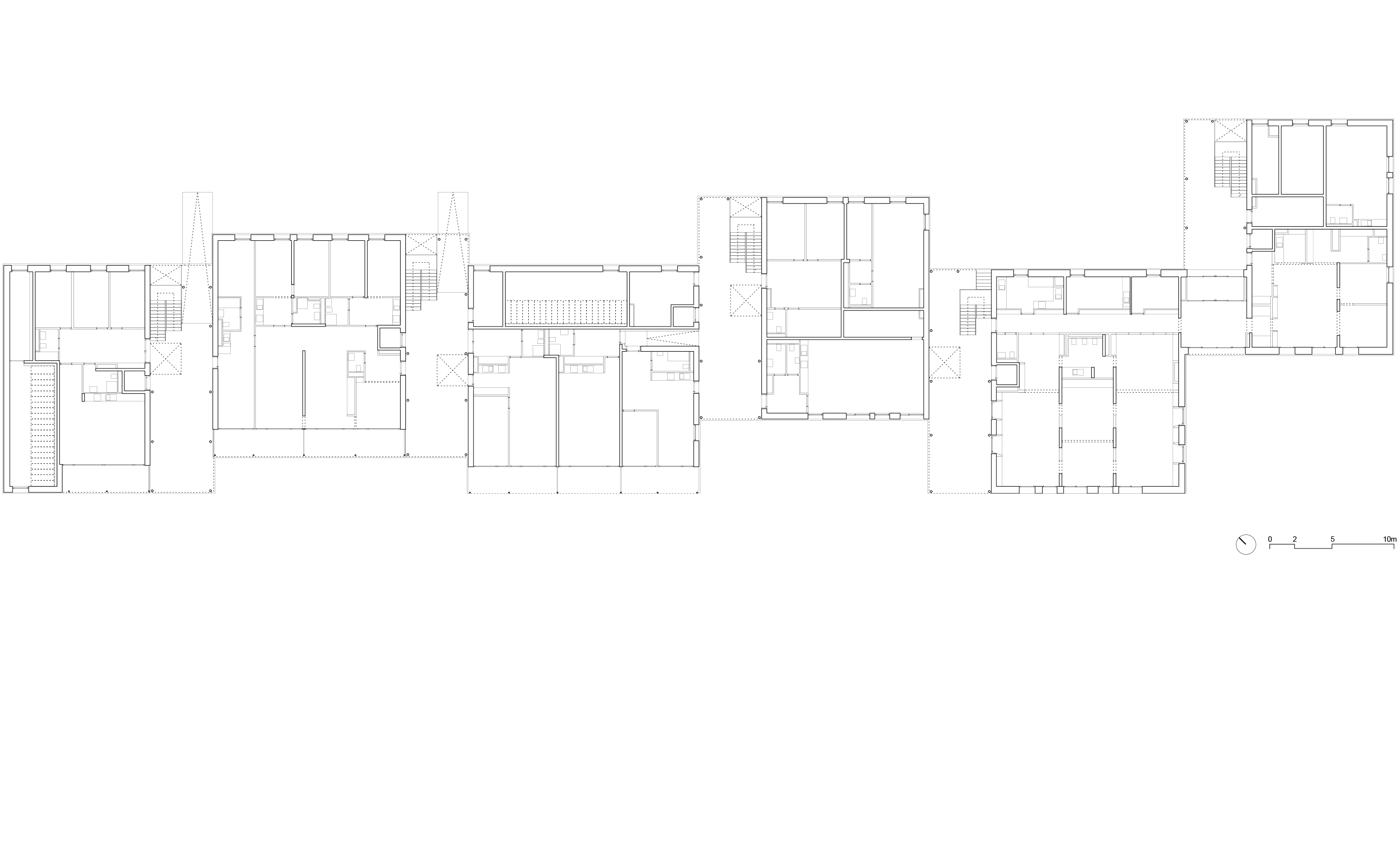
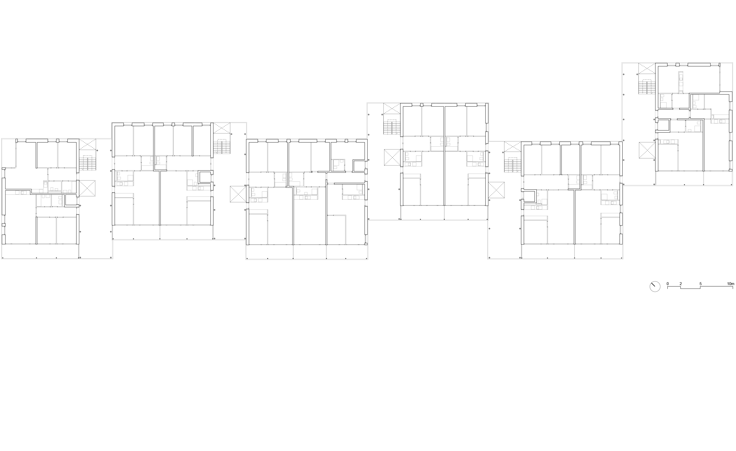
L’ensemble de logements Rigaud s’insert dans le tissu bâti de Chêne-Bougeries (GE), un paysage hétérogène et ouvert, entre ville et champs. Il est constitué d’une succession de six grandes maisons qui présentent toutes un format similaire proche du carré. Comportant trois étages sur rez, elles sont entièrement liées entre elles. À la différence des maisons mitoyennes, elles garantissent une forte cohésion d’ensemble grâce à une sorte d’ossature en bois qui enrobe et structure le pourtour de leurs volumes.
Or, ce dispositif formel génère une certaine complexité dans la perception de cette réalisation. D’une part, il semble poursuivre le tissu de petits immeubles articulés du voisinage et, d’autre part, il donne à voir six grandes maisons dont les toitures à deux pans affirment l’indépendance de chaque unité. De plus, ces unités sont marquées, sur la grande longueur, par une alternance de décalages latéraux. Ainsi, ces différentes parties, distinctes dans l’ensemble bâti, amorcent également un dialogue morphologique avec les unités du tissu pavillonnaire s’étendant sur son arrière. Sans chercher un réel mimétisme avec ces villas, les six volumes sont plus imposants de par leurs gabarits et convoquent à cet égard la figure de grands corps de fermes.

Promenade dans le paysage pavillonnaire

En favorisant une transition mesurée entre maisons individuelles et petites barres de logements, l’ensemble prend une position stratégique dans ce quartier. Il réussit aussi le pari d’une intégration paysagère tout en douceur, avec une densité du bâti sensiblement plus élevée que celle de la zone villas. À ce sujet, il faut souligner la qualification précise des vides cernés par ce bâtiment articulé et le cordon boisé qui enrichit ce quartier d’une limite physique structurante. En effet, dans cet entre-deux, une placette d’accès, au nord-est, offre une articulation claire entre le public et le privé, en particulier pour la crèche du rez-de-chaussée, qui ne sert pas exclusivement à cet ensemble. S’inscrivant dans le plus grand décalage opéré entre les six maisons, cet espace de transition extérieur, protégé de la route, permet d’identifier clairement l’entrée de la crèche. La placette est bordée d’arbres d’un côté, et animée de l’autre par les grandes et diverses ouvertures de la façade. Les habitants de la coopérative, comme les familles qui se rendent à la crèche, bénéficient ainsi d’un espace collectif lumineux et propice aux échanges.
Le cordon boisé introduit un nouveau morceau de promenade publique dans cette commune majoritairement dédiée à la propriété privée. Il fait l’objet d’un dessin paysager méticuleux qui inclut un bassin de rétention. De fait, les décalages entre les six volumes évitent non seulement une trop grande masse bâtie qui serait en rupture avec l’existant mais, de plus, ils expriment l’esprit d’ouverture de cette coopérative au sein de ce quartier. Une ouverture incarnée visuellement qui met en évidence, aux angles du bâti, l’accès aux cinq distributions verticales comme à l’autre longue façade, au sud- ouest. Ces accès sont intégrés derrière la solide ossature mais sont délimités par un bardage plus épars qui signale la porosité du volume.

Un chez­-soi extraverti

Dans chaque couple de maisons, escaliers et ascenseurs sont inscrits dans de grands paliers d’étage rectangulaires qui traversent toute la largeur du bâti, couverts mais à l’air libre. Les grandes dimensions des paliers invitent à des appropriations collectives – ce qui a été rapidement repéré par les coopérateurs. Ils ont tout de suite été investis avec des plantes en pots, des salons ou salles à manger extérieures, grills, baby-foot et autres activités partagées. Sans être entièrement exposées, ces activités se discernent du dehors, en seconde lecture, grâce aux transparences de la façade. Sur les murs des paliers, de grandes et longues plaques de carrelage blanc réfléchissent la lumière dans la profondeur. Cette matérialisation, qui évoque des intérieurs de restaurants populaires, participe à l’ambiance particulière de cet espace commun. De façon plus générale, l’innovation réside ici dans une juste balance de l’architecture et des expressions perceptibles du collectif depuis l’extérieur, qui marque assurément une autre culture du logement aux abords de cette zone villas. Sans chercher à démontrer avec ostentation une façon différente de vivre et d’échanger, elle pose un jalon significatif dans une tradition du chez-soi généralement beaucoup plus introvertie dans ce type d’habitat. 

Déjeuner sur le palier

La disposition des appartements par rapport à ces paliers équilibre habilement les possibilités d’échanges entre voisins comme le repli dans la sphère privée. Dans une grande partie de cet ensemble de logements, les paliers distribuent deux appartements se faisant face, sans que leurs portes d’entrée se trouvent en vis-à-vis (les glissements entre volumes participent entre autres à ces décalages ménageant la privacité). Dans cette pondération entre le collectif et le privé, chacun de ces appartements possède non pas une mais deux portes qui s’ouvrent sur ce palier: l’une pour l’entrée principale, l’autre étant la porte-fenêtre de la cuisine. Cette dernière favorise, par exemple, l’organisation de repas partagés entre voisins sur le grand palier d’entrée. Sinon, elle peut se limiter à une simple ouverture visuelle sur le palier mais surtout à une prise de lumière naturelle pour la cuisine et le fond du salon. De fait, la plupart de ces appartements ont un plan traversant parallèle à la grande longueur du palier. Ils entretiennent par conséquent une relation latérale qui scinde clairement le privé du collectif. Les coopérateurs disposent également d’un espace extérieur privé: de généreuses loggias, orientée au sud-ouest, qui occupent toute l’extrémité de chaque appartement. Elles sont protégées des regards extérieurs par un bardage ajouré en sapin blanc pré-vieilli, qui peut évoquer l’atmosphère des cabanes de jardins, très présentes dans le quartier.

Ni urbain, ni villageois

Le dessin précis de la façade, la mise en parallèle de différents matériaux dans la profondeur, les relations de proportions orchestrées par la grande ossature en bois font aussi émerger de subtiles formes d’innovations. Si, comme indiqué, certaines analogies peuvent être établies avec des bâtiments du monde rural, d’autres couches de cette façade comportent des matériaux n’appartenant pas directement à cet univers, tels les garde-corps en verre ou les caissons de fenêtre métalliques. Dans un premier temps, ces matériaux semblent dialoguer discrètement, notamment parce que la toile jaune sablée des stores se conjugue avec le bois et la couleur laiton des caissons métalliques. Mais en seconde lecture, la confrontation audacieuse de ces matériaux (toile, bois, métal, verre) introduit aussi un sentiment d’étrangeté, de décalage qui est au fond bienvenu dans ce qui semblait a priori ordinaire, et qui rappelle alors le caractère particulier de cette opération. Réalisée pour une coopérative d’habitants, en voisinage d’une zone villas, elle propose des logements alternatifs invitant à la diversité d’usages, entre le public, le collectif et le privé. Tout en affirmant une silhouette articulée et contextuelle, cet ensemble agit en effet comme un puissant révélateur des qualités de ce paysage et de ses modes d’habiter.

Dr Nicolas Bassand est architecte. Il est chargé de cours à la Haute école du paysage, d’ingénierie et d’architecture de Genève – HEPIA / HES-SO. 

 

Données du projet

RIGAUD 55, ensemble de logements 55, rue Jean-Jacques Rigaud, Chêne-Bougeries
2011 (concours) – 2018 (réalisation)
Maître d’ouvrage: Codha, Coopérative de l’Habitat Associatif Architecte et dir. des travaux: Bonhôte Zapata architectes sa
Ing. civil: BG Ingénieurs Conseils SA, Vernier
Ing. bois: BG Ingénieurs Conseils SA, Vernier
Ing. chauffage + ventilation: Conti & Associés Ingénieurs SA, Versoix Ing. sanitaire: Ryser Eco Sàrl, Lancy
Ing. électricité: PSA Bureau d’Ingénieurs Conseils SA, Genève Paysage: La Touche Verte Sàrl, Genève
Acousticien: Architecture et Acoustique SA
Incendie: MDEngineering SA
Dépollution: Ecoservices SA
Géotechnicien: De Cérenville Géotechnique SA
Géomètre: MBC Ingéo Sa
Entreprises bois: Dasta Charpente
Coûts CFC 1-9: 25 800 000 francs
Volume bâti SIA 416: 37 600 m3 

Magazine

Sur ce sujet