Le charme fra­gi­le de la trans­for­ma­ti­on: ég­li­se Don Bo­sco à Bâ­le (BS)

La désaffection des fidèles contraint l’Église romaine de Bâle à renoncer à plusieurs sites. Divers bâtiments sacrés sont ainsi remplacés par de nouveaux édifices ou transformés, comme l’église Don Bosco de Hermann Baur, réalisée entre 1934 et 1937: classée, elle a aujourd’hui été reconvertie en centre musical et culturel par le bureau Martin Pfister Architekten.

Publikationsdatum
24-01-2022

L’église Don Bosco est située dans le Breitequartier à Grand-Bâle, sur l’étang de Saint-Alban, près du Rhin. L’église a été construite entre 1934 et 1937 et a été la première église que Hermann Baur a pu réaliser.

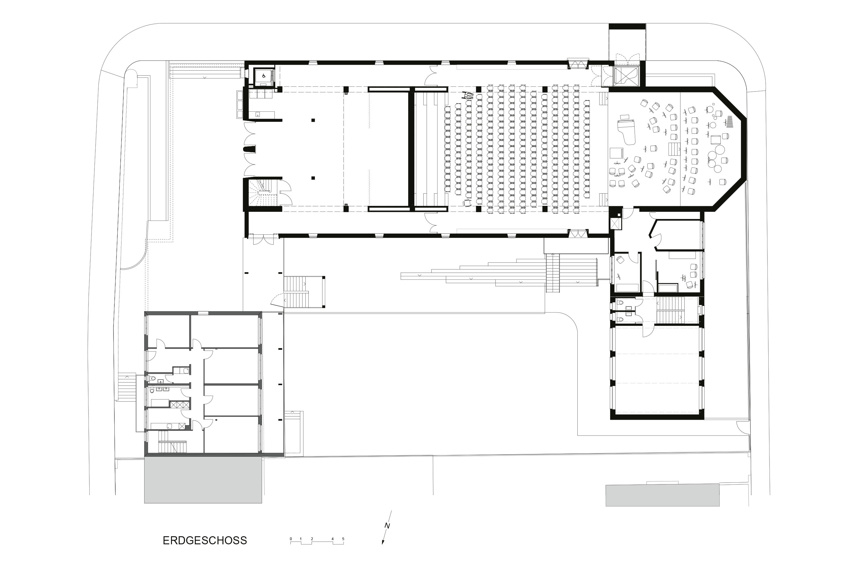
La construction, dotée d’un pignon sur rue, est en ossature métallique. Dans le projet de transformation, tous les bâtiments – église, presbytère et sacristie – ont été préservés. Cette dernière a pu être prolongée et abrite désormais les bureaux du Basel Sinfonietta et de l’Orchestre de chambre de Bâle. L’ancienne sacristie accueille quant à elle un studio d’enregistrement, une salle de vote et des vestiaires. Au sous-sol de l’ancien presbytère, on trouve les bureaux de l’association du centre culturel.

Mais le cœur du projet est la transformation de l’ancienne salle paroissiale en salle de répétition et de concert pour 500 personnes. L’installation d’une nouvelle tribune en bois a permis d’améliorer la vue sur la scène et d’agrandir le foyer situé en dessous. La matérialisation de la nouvelle salle est simple et sobre. Les revêtements de sol en dalles d’argile ont été remplacés par des lames de sapin argenté traitées à l’huile grise. Comme à l’origine, le crépi structuré de couleur claire sur les murs contraste avec le plafond en bois foncé.

L’acoustique de la pièce a été améliorée de manière décisive grâce à diverses mesures. Les fenêtres ont été équipées de volets intérieurs, maniables à la main, qui modifient l’acoustique: lorsqu’ils sont ouverts, les volets réfléchissent le son; lorsqu’ils sont fermés, ils l’absorbent. Les diffuseurs QR intégrés empêchent la formation de nids à sons. Le plafond en poutres de bois de la nef est recouvert de panneaux multicouches de bois et de laine de mouton pour réduire le temps de réverbération.

La salle de répétition, située dans le sous-sol, est quant à elle complètement séparée du reste de la structure du bâtiment afin qu’aucune transmission sonore ne puisse avoir lieu vers la salle de concert située au-dessus. Un studio utilisable de différentes manières – pour le ballet, le yoga ou la danse – complète l’offre. Les deux pièces sont reliées par un foyer avec cuisine. Le programme comprend aussi une salle d’archives des partitions et une salle de stockage spacieuse pour les instruments de musique. Enfin, en plus de l’usage séculier, la chapelle sous l’abside reste pour les fidèles un espace de dévotion et de prière. Avec des équipements techniques à peine visibles, de nouveaux aménagements pour l’acoustique de la pièce et un concept de matériaux et de couleurs sobre, l’agence Martin Pfister a réussi à donner à cette architecture dépouillée un charme fragile.

Texte original publié dans TEC21 31/2021. Traduit et résumé par Camille Claessens-Vallet.

Transformation Église Don Bosco, Bâle (BS)

 

Maître d’ouvrage: Centre culturel Don Bosco (salle/extension), Église catholique romaine du canton de Bâle-Ville (façade, chapelle, extension)

 

Architecture: Martin Pfister Architekten

 

Structure porteuse: Schnetzer Puskas Ingenieure

 

Structure porteuse en bois: Winter + Walther

 

Acoustique: applied acoustics; Kahle Acoustics

 

Réalisation: 2018-2020

Verwandte Beiträge