Giess­en­turm, Dü­ben­dorf

Einreichung PRIXFORIX 2024

Publikationsdatum
10-04-2024

Als Teil des Giessenareal-Masterplans markiert das Hochhaus die Schnittstelle zwischen dem suburbanen Gewerbe- und Industriebereich und dem gewachsenen, kleinteiligen Kern der historischen Gemeindestruktur Dübendorfs. Am Scheitelpunkt der Überlandstrasse figuriert das Hochhaus als visueller Fixpunkt und identitätsstiftendes Wahrzeichen. Das Thema des Richtungswechsels wird in der Grundrisstypologie fortgeführt.

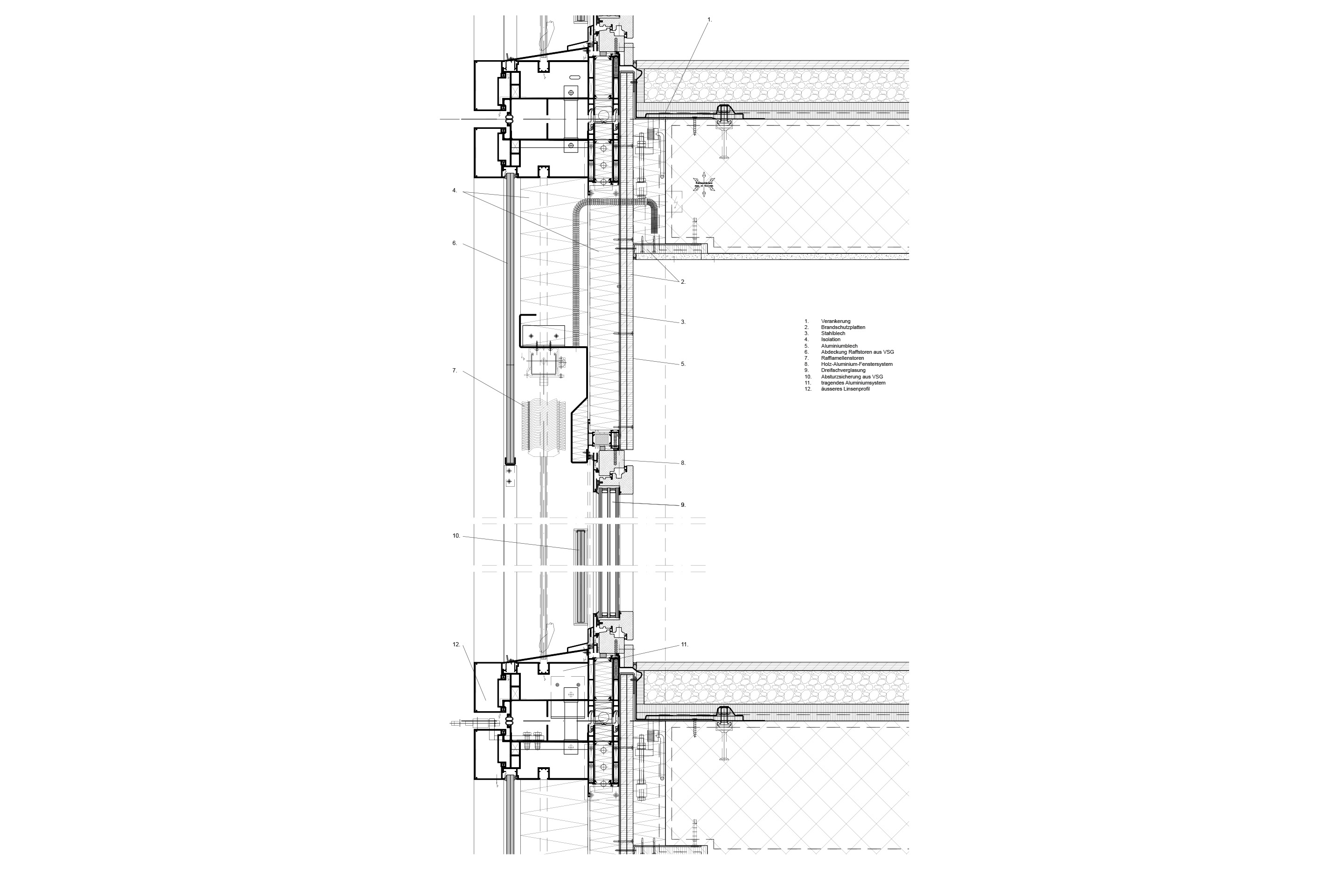
Ein homogenes, richtungsloses «Fassadennetz» überspannt beide Gebäudeteile zu einer skulpturalen Einheit. Netz und Füllung agieren als Hauptkomponenten der Fassade. Füllelemente die die Funktion von Fenstern, Absturzsicherungen und geschlossenen Paneelen übernehmen, interagieren mit dem Netz in Form von Farbigkeit, Oberfläche und Kontrastbildung. Die in Aluminiumrahmen eingefassten vorgehängten Fassadenelemente variieren in der Breite und Öffnungsart und verflechten sich zu einer elegant und leicht wirkenden Umhüllung. Die bronzefarbene Materialisierung nimmt unter anderem Bezug auf das industrielle Gedächtnis des Orts, der von typischen Backsteinfassaden und Rostoberflächenstrukturen geprägt ist.

Fassadenplanung
Group 5F, Basel
 

Fassadenbau
Geilinger, Winterthur 
 

Architektur
atelier ww Architekten, Zürich
 

Architektur
Implenia Schweiz, Zürich
 

Bauingenieurwesen
Henauer Gugler, Zürich
 

Bauherrschaft
Credit Real Estate Fund Siat, Zürich

Weitere eingereichte Projekte für den PRIXFORIX 2024 finden Sie in unserem digitalen Dossier und auf prixforix.ch

Verwandte Beiträge