Em­pa Nest Hi­Lo, Dü­ben­dorf

Einreichung PRIXFORIX 2024

Publikationsdatum
15-04-2024

HiLo steht für High Performance und Low Emissions. Die neue Nest-Unit demonstriert neue Technologien zur Verringerung des Materialverbrauchs und Energiebedarfs in Gebäudestrukturen. Die Unit wird im laufenden Betrieb weiter durch Forschende der ETH Zürich untersucht und als Büro genutzt.

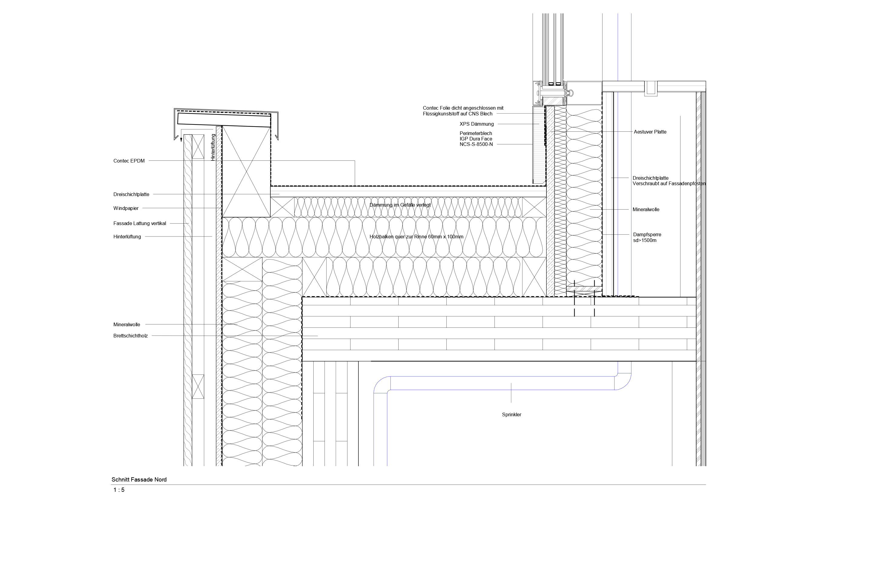
Der Anschluss an die doppelt gekrümmte Betonschale wurde mit einem thermisch getrennten Einlageteil gelöst, das vorgängig auf der Membran befestigt und dann eingegossen wurde. Zur thermischen Entkopplung wurde dadurch die tragende Innenschale durchdrungen, die mit zusätzlichen Armierungen abgefangen werden musste. Da das SageGlass nicht mit einem Radius hergestellt werden kann, mussten die Schrägschnitte entsprechend optimiert und der Bogen mit einer Blechabdeckung abgebildet werden. Das Gebäude verfügt über eine adaptive Solarfassade. Diese besteht aus 30 Photovoltaikmodulen, die sich nach der Sonne ausrichten. Die Module lassen sich nutzen, um den Sonneneinfall in den Raum zu steuern, passiv zu heizen oder den Kühlbedarf zu senken. Die durch die Dachgeometrie entstandenen Bögen wurden mit Pfosten-Riegel-Glasfassaden geschlossen, die einige Kniffe aufweisen.

Fassadenplanung
psMetalltechnik, Benken
 

Fassadenbau
Pletscher Metallbau, Schleitheim
 

Architektur
ROK Architekten, Zürich
ETH Zürich – Block Research Group
ETH Zürich – Chair of Architecture and Building Systems
 

Bauherrschaft
Empa, Dübendorf

Weitere eingereichte Projekte für den PRIXFORIX 2024 finden Sie in unserem digitalen Dossier und auf prixforix.ch

Verwandte Beiträge