Bio­zen­trum, Ba­sel

Einreichung PRIXFORIX 2024

Publikationsdatum
16-04-2024

Das Areal «Schällenmätteli» in Basel wird sich innerhalb der nächsten Jahre zu einem modernen und vernetzten universitären Campus entwickeln. Zusammen mit dem Departement Biozentrum als primärer Nutzer sind im Neubau ein Rechenzentrum, allgemeine Unterrichtsräume und eine Cafeteria beheimatet. Die beengte innerstädtische Situation und eine geforderte HNF von 23 400 m2 bedingten eine Entwicklung des Bauvorhabens in die Höhe. Der prismatische Baukörper überstrahlt in der Achse des Münsters rheinabwärts die umgebende städtische Textur und setzt so neben den Monumenten für Handel, Industrie und Kirche ein Zeichen für den Bildungsstandort Basel.

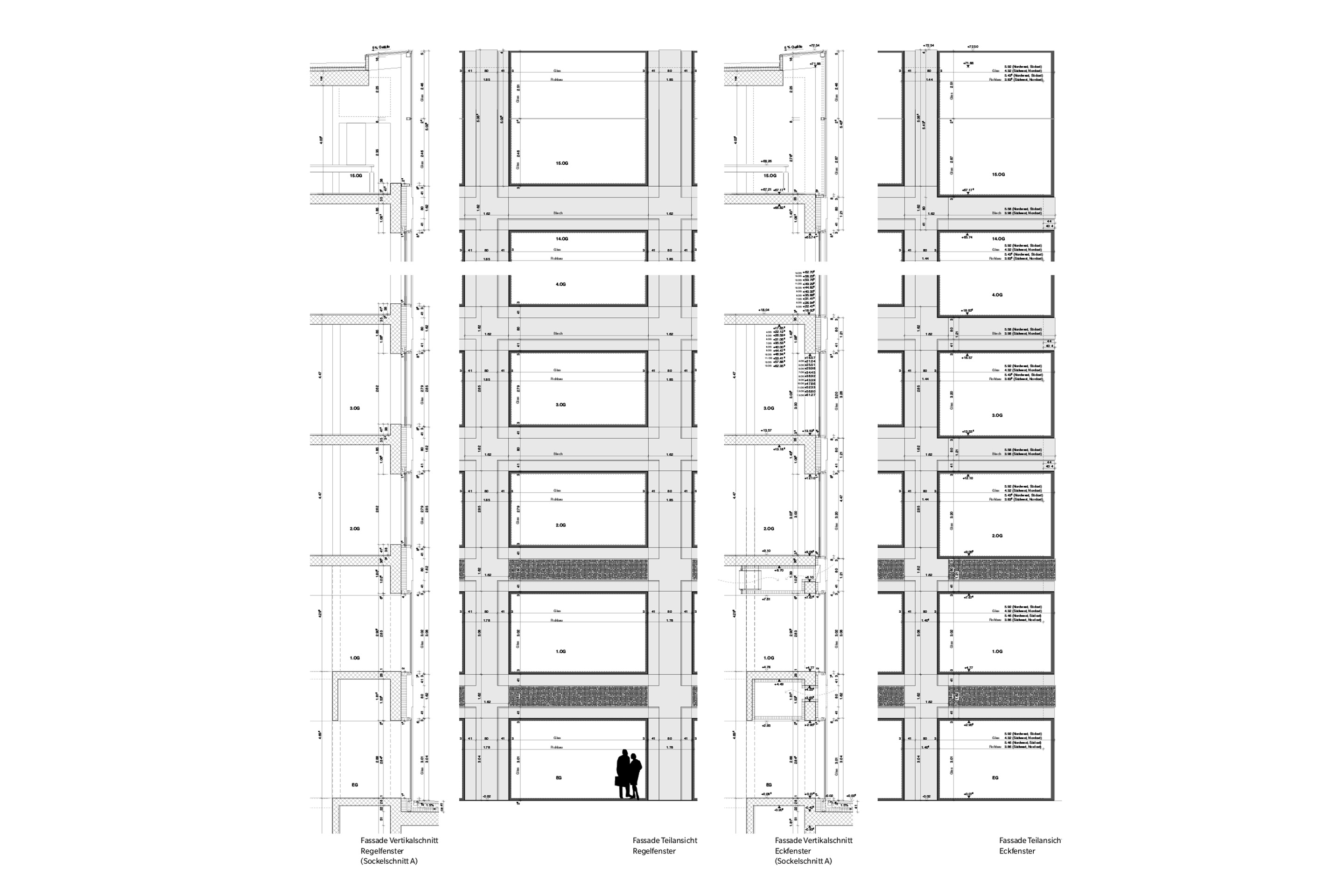
Das Biozentrum ist auf faszinierende Art massstabslos. Aus der Ferne betrachtet, ragt es wie ein fein strukturierter Kubus aus dem Stadtkörper, von Nahem wächst es als abstrakte, matt schimmernde Stahl-Glas-Skulptur aus dem Boden. Die reduzierte Fassadengestaltung und die Chromstahlverkleidung bilden die Basis dieses Effekts. In den frühmorgendlichen Nebelschwaden taucht das Gebäude auf und wieder unter, tagsüber schimmert es silbern bis weiss, in der Abendsonne leuchtet es golden, und nachts, wenn die Fenster in der Dunkelheit verschwinden, löst es sich in eine Gitterstruktur auf. Das edle Material ist eine Reverenz an das technische Innenleben des Hauses und verleiht ihm eine elegante, immer wieder andere Präsenz im Stadtraum.

Weitere eingereichte Projekte für den PRIXFORIX 2024 finden Sie in unserem digitalen Dossier und auf prixforix.ch

Verwandte Beiträge