Hoch­schul­cam­pus, Brig

Einreichung PRIXFORIX 2024

Publikationsdatum
16-04-2024

Seit Oktober 2021 ist der Hochschulcampus der Fernfachhochschule Schweiz (FFHS) und der FernUni Schweiz in Betrieb. Der sechsgeschossige transparente Bau führt die Hochschuleinheiten unter einem Dach zusammen und wird zum neuen Bezugspunkt im Quartier. Auch im Innern wurde ein innovatives Raumkonzept geschaffen.

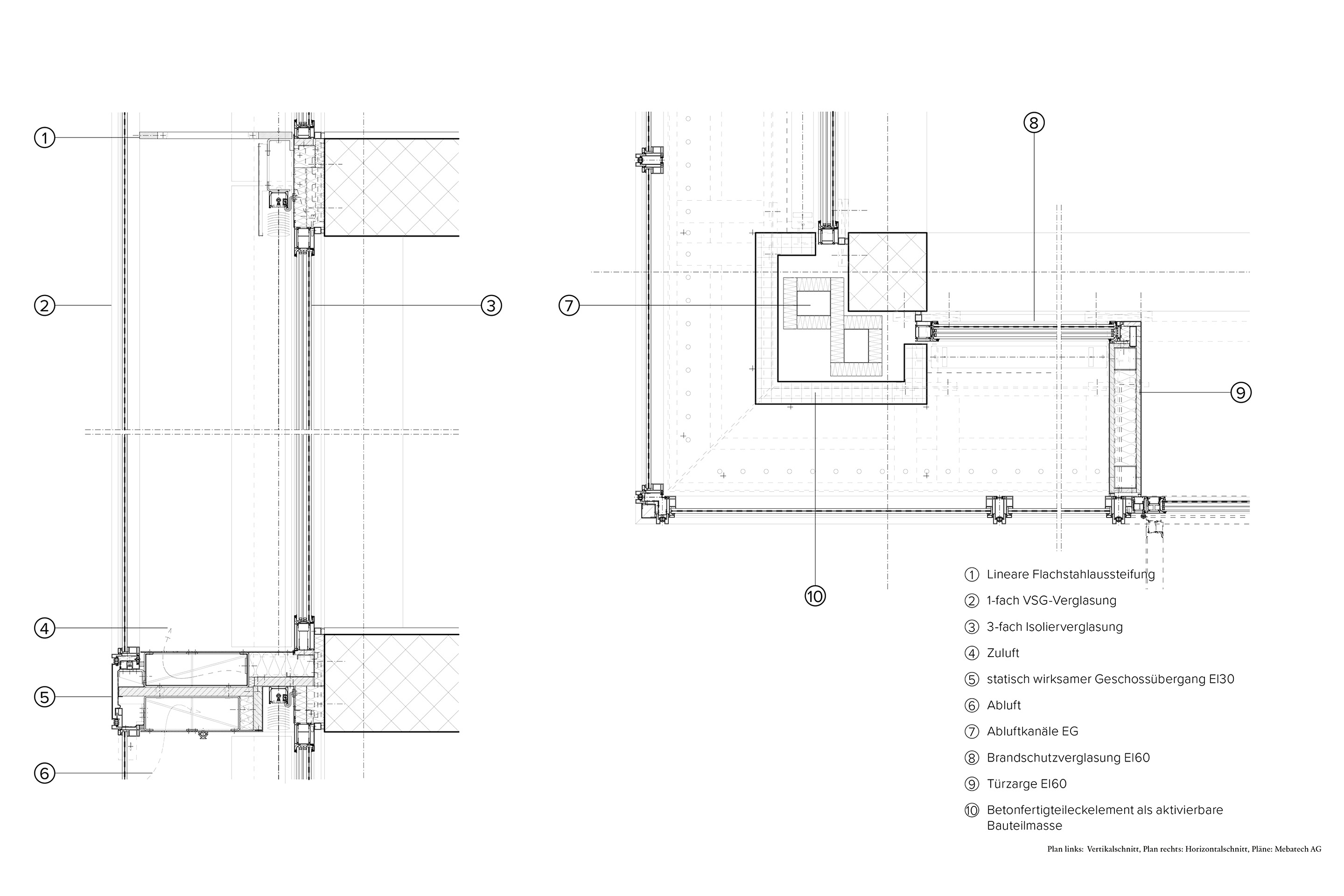
Die Globalstrahlung in Brig beträgt bis zu 1500 kWh/m2. Gleichzeitig belastet ein hohes Windaufkommen die Sonnenschutzsysteme an Gebäuden. Diesen Bedingungen gegenüber stand der Anspruch an eine transparente Architektur, die viel Licht ins Innere der tiefen Grundrisse bringt. In Zusammenarbeit mit unterschiedlichen Fachplanern wurde ein zweischaliges, verglastes Fassadensystem mit dazwischenliegendem geschlossenem Luftkreislauf konzipiert. Mithilfe eines Erdregisters wird die Luft im Zwischenraum im Winter vorgewärmt und im Sommer gekühlt. Die eigens für den Hochschulcampus Brig entwickelte Fassade wird so zur Klimafassade, die positive Auswirkungen auf die Behaglichkeit im Innern hat und den Gesamtenergieverbrauch des Gebäudes reduziert. Dank der grossen Verglasungen wird das Quartierleben mit der Arbeitswelt des Hochschulcampus in einen erlebbaren Austausch gebracht. Zudem erhalten die beiden öffentlichen Institutionen durch die Fassade ein zeichenhaftes Gebäude, das Innovation und Transparenz vermittelt.

Fassadenplanung
Mebatech, Baden
 

Lüftung Fassade
Aicher, De Martin, Zweng, Zürich
 

Architektur
Markus Schietsch Architekten, Zürich
 

Bauingenieurwesen
SPI, Brig-Glis
 

Bauherrschaft
Universitäre Fernstudien Schweiz FS-CH und Fernfachhochschule FFHS

Weitere eingereichte Projekte für den PRIXFORIX 2024 finden Sie in unserem digitalen Dossier und auf prixforix.ch

Verwandte Beiträge