Com­plesso d’abi­ta­zione Vier Jah­res­zei­ten a Coira

Bearth & Deplazes Architekten

Date de publication
31-10-2023
Matteo Moscatelli
Architetto e PhD, docente al Politecnico di Milano, redattore espazium quaderni

L’intervento riguarda un’area collocata lungo la Austrasse, il tratto urbano più settentrionale di Coira in prossimità dell’autostrada che la separa dal corso del Reno. Il terreno è incastonato tra due lotti già costruiti, nella porzione verso la strada di un’area più estesa occupata da un eterogeneo mosaico di orti e costruzioni leggere.

Il volume riprende l’orientamento sud-ovest / nord-est del tessuto viario e reinterpreta la tipologia a blocchi affiancati che caratterizza molti edifici residenziali di questa parte di città, più alti ma meno estesi linearmente, reinterpretandola però a una scala maggiore, con una lunghezza doppia rispetto alle costruzioni più grandi che la circondano. Il cambio di scala consente a questo grande segmento abitato di confrontarsi con i maggiori segni urbani e paesaggistici del territorio – dal percorso del Reno e dall’andamento della valle fino al tessuto viario e al sedime ferroviario dalla parte opposta – e, allo stesso tempo, di evidenziare e consolidare il margine settentrionale della città.

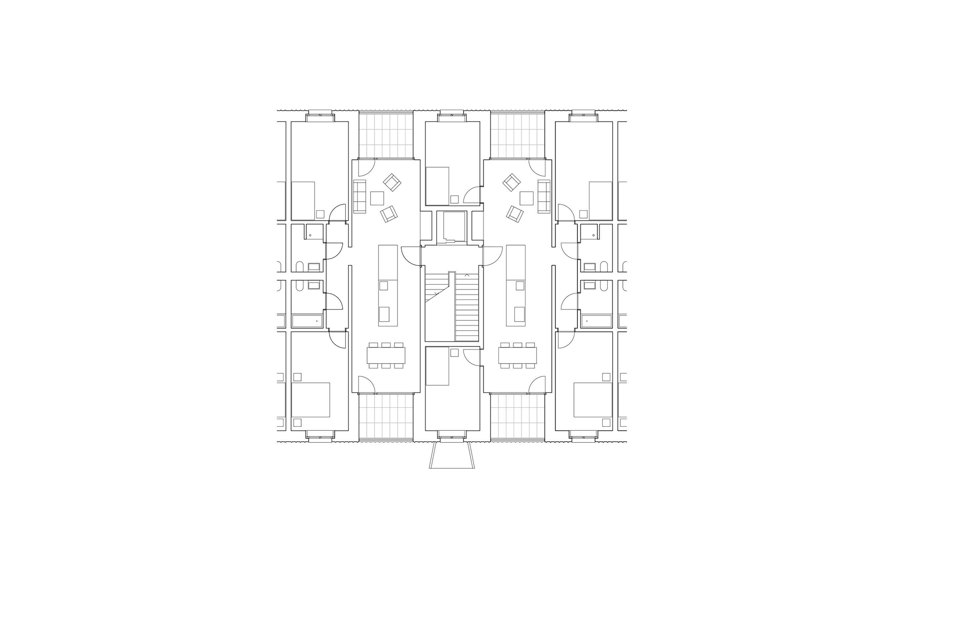
L’edificio è costituito dalla ripetizione di 12 moduli uguali a 4 livelli, ciascuno dei quali è organizzato specularmente con un corpo distributivo centrale che conduce a due appartamenti a doppio affaccio su ciascun piano. Ogni modulo è suddiviso simmetricamente in cinque spazi passanti di uguale larghezza: quello centrale accoglie il blocco della distribuzione verticale con ascensore e scala; ciascuno dei due laterali ospita un alloggio con zona giorno, due camere e due bagni più un’ulteriore stanza, raggiungibile dalla zona giorno, situata nello spazio centrale come proiezione esterna del nocciolo distributivo. Gli appartamenti sono dotati di due logge opposte raggiungibili dalla zona giorno che, incolonnate sui tre piani, rompono la configurazione monolitica del volume e creano un gioco di rientranze e sporgenze dal ritmo regolare separando il corpo centrale (con la distribuzione al centro e, più all’esterno, una stanza per lato) da quelli laterali (con i due bagni al centro e una camera per lato).

L’ingresso, collocato su un piano rialzato, è raggiungibile tramite una serie di rampe dai diversi orientamenti che creano una mediazione tra la scansione razionale dell’edificio e il disegno irregolare e curvilineo dei percorsi dello spazio aperto, convergendo a gruppi di quattro verso i tre accessi dalla strada. Nel seminterrato trova posto un parcheggio da 110 posti auto, raggiungibile da due rampe poste alle estremità del complesso con alcuni spazi di servizio. Completa l’intervento il generoso giardino che separa il blocco abitativo dalla città. Questo accogliente chiostro urbano, caratterizzato da un’alternanza tra spazi verdi e minerali e da un accurato studio delle specie arboree, arbustive e floreali, è cinto da un muro lungo il quale sono posizionati gli accessi alla corte.

La continuità tra il muro e l’edificio è ribadita dalla matericità delle facciate, realizzate in cemento a vista con una fitta texture modulare di rientranze e sporgenze dall’andamento verticale, una scelta che permette di apprezzare la razionalità dell’insieme e la coerenza con cui ogni variazione geometrica sul corpo principale è stata studiata.

Luogo
Austrasse 35-45a, Coira

 

Committenza
Bürgergemeinde Chur

 

Architettura
Bearth & Deplazes Architekten AG Coira / Valentin Bearth, Andrea Deplazes, Daniel Ladner

 

Collaboratori
Clarissa Wacker, capoprogetto

 

Direzione lavori
Domenig Architekten AG, Coira

 

Architettura del paesaggio
Hager Partner AG, Zurigo

 

Ingegneria civile
Ferrari Gartmann AG, Coira

 

Progetto impianti RVCS
Paganini Plan AG Integral, Coira

 

Progetto impianti elettrici
Amstein + Walthert AG, Coira

 

Fisica delle costruzioni
mkB - Martin Kant Bauphysik, Coira

 

Progetto impianto fotovoltaico
winsun AG, Coira

 

Geologia
Baugeologie und Geo-Bau-Labor AG, Coira; Büro für Technische Geologie AG, Sargans

 

Fotografia
Ralph Feiner, Malans

 

Fotorender
Bearth & Deplazes Architekten AG Coira / Valentin Bearth, Andrea Deplazes, Daniel Ladner

 

Date
concorso 2016, progetto 2016-2020, realizzazione 2018-2020

 

Pianificazione energetica
Willi Haustechnik AG, Coira

 

Intervento e tipo edificio
nuova costruzione

 

Categoria edificio (Ae)
abitazioni plurifamiliari: 12’864 m2

 

Fattore di forma (Ath/Ae)
1.14

 

Riscaldamento
100% pompa di calore da acqua di falda, CLA= 3.2

 

Acqua calda
100% pompa di calore da acqua di falda, CLA = 3.0

 

Elettricità
impianto fotovoltaico, 424.8 kWp, 1’440 moduli

 

Requisito primario involucro dell’edificio
19.6 kWh/m2a (35 kWh/m2a)

 

Indice energetico complessivo
21.2 kWh/m2a

 

Particolarità
Pompe di calore che utilizzano pozzi di estrazione e reimmissione dell’acqua di falda. Resa del calore tramite radiatori. Elettrodomestici di classe A++, illuminazione di classe A++. Nessun sistema di ventilazione controllata. Impianto fotovoltaico su tutto il tetto per l'autoconsumo, inclusa mobilità elettrica

Sur ce sujet