Trans­for­mer par touches, à Rueyres et à Mé­zières

En visite: deux reconversions de fermes

L’une ajoute, l’autre soustrait. Bien que proches, par leur programme et par leur état initial, deux reconversions illustrent des processus opposés d’intervention sur le patrimoine rural. En visite avec la SIA Vaud, les professionnel·les ont discuté ces deux approches de rénovation à petits budgets menées avec doigté.

Date de publication
12-03-2025
Revision
12-03-2025
Jaouida Zehou
Architecte à Paris et Lausanne, membre du Groupe Architecte de la SIA Vaud.

Rueyres (VD) : construire pas à pas

Présente au cadastre dès 1772, l’ancienne maison paysanne de Rueyres est acquise dans les années 2000 par les commanditaires, qui la restaurent « à l’ancienne » depuis 25 ans. Louis Crisinel, étudiant en master d’architecture, vient ajouter sa pierre à l’édifice en 2019. Son intervention de densification s’articule en deux étapes : l’aménagement d’un appartement dans le volume du grenier et la construction de plusieurs annexes dessinant une cour. Le nouveau logement prend la forme d’un vaste espace ouvert, éclairé par de grandes fenêtres existantes, et cinq nouvelles découpées dans la toiture. Le dénivelé entre le pont de grange et le plafond de l’habitation délimite la cuisine et le salon. L’appartement compose avec une variété de matériaux anciens, neufs et récupérés : portes, planchers bois, carrelage et poteaux. La façade du corps de ferme, notée 3 au recensement architectural, reste, elle, inchangée. Côté cour, deux couverts, une arche d’entrée et une annexe intégrant un four traditionnel, ont été réalisés avec des matériaux de réemploi – fruits de vingt ans de collectes diverses (tuiles, carrelages, bois de charpente, menuiseries, pierres de taille…).

Ce projet s’inscrit dans une longue histoire de transformations procédant de l’addition d’éléments issus du réemploi des démolitions du bâti ancien voisin. À la manière d’un collage, il évoque l’esthétique pittoresque par la juxtaposition lisible des modifications sur l’imposante bâtisse bicentenaire.

Aménagement d’un appartement dans un grenier et construction de plusieurs annexes dans une ancienne maison paysanne, Rueyres (VD)

Architecte : Louis Crisinel & MID Architecture

Réalisation : 2023-2024

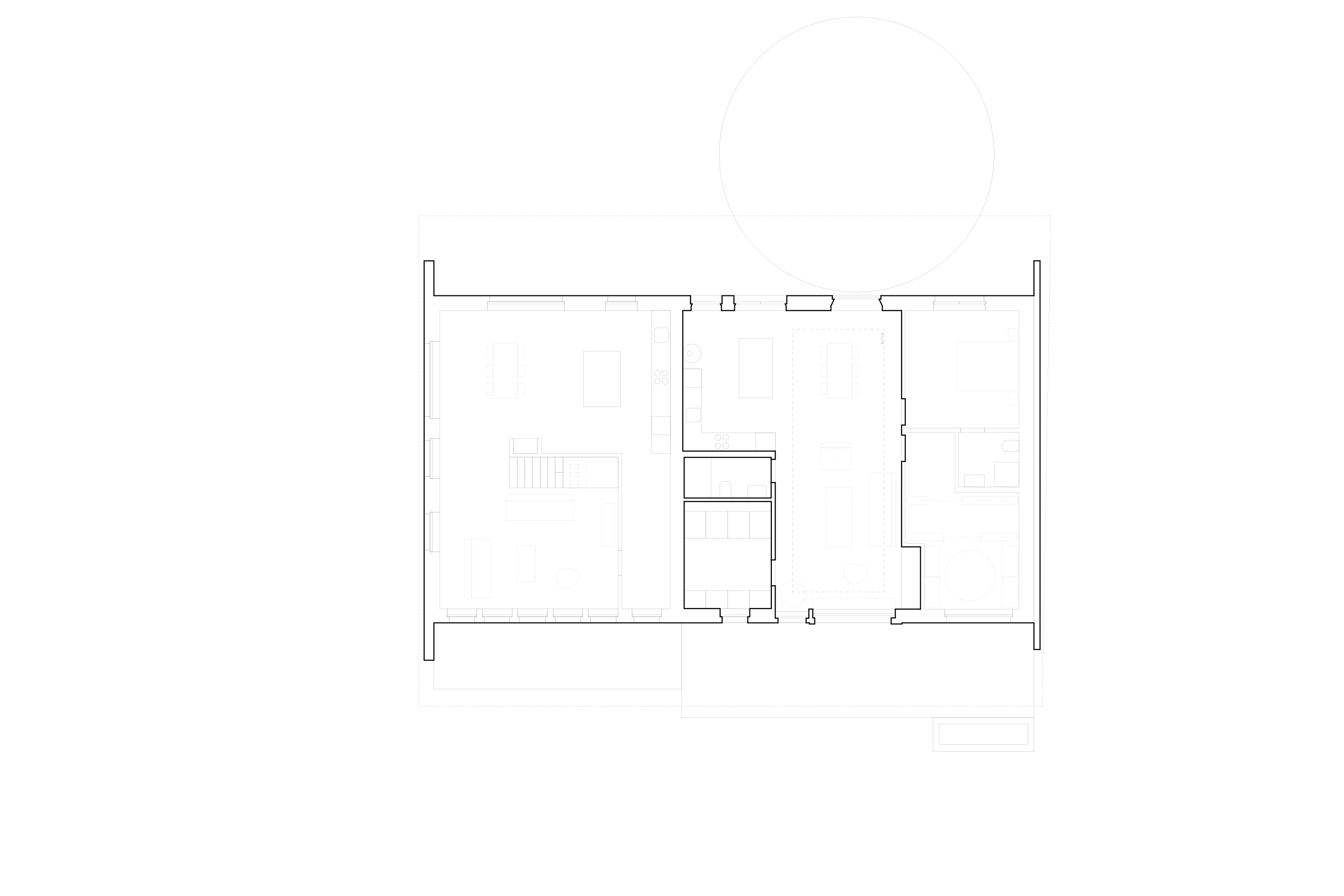
Mézières (FR) : déconstruire pour construire l’espace

L’itinéraire de la ferme de Mézières est plus sinueux. Acquise par les commanditaires en 2021, l’ancienne ferme avait subi une lourde transformation en 2011 qui avait terni l’aspect rural de l’édifice. Le rural, composé de la fourragère (au centre) et des écuries (latérales), a été divisé par une dalle béton à 2.30 m. Au-dessus, un volume impressionnant sert de galetas (aucune surface ne pouvant être ajoutée sur ce site hors zone à bâtir) ; en dessous, un logement est aménagé. Face à cette altération du patrimoine et dans la limite du budget mis à disposition, les architectes Bard Yersin interviennent par soustraction. Afin de retrouver le volume traversant de l’ancienne fourragère, la dalle est sciée sur toute la longueur de la travée centrale et les cloisons sont supprimées. Cet espace central est délimité verticalement par des parois de bois dont les montants rappellent les séchoirs à foin. Les architectes conservent les anciens murs réalisés en briques enduits et peints, mais les sablent, pour donner à lire une matérialité plus brute. Enfin, deux grandes ouvertures sont réalisées pour souligner l’emplacement des accès au stockage historique et augmenter l’apport lumineux dans l’appartement.

Progressivement, les suppressions effacent le projet antérieur et remémorent les qualités spatiales et l’esprit agricole de la ferme. Le projet trouve un équilibre délicat entre la volonté de corriger la transformation et celle de limiter la démolition d’éléments encore fonctionnels.

Aménagement d'un appartement dans une ancienne ferme, Mézières (FR)

Architecte : Bard Yersin Architectes

Réalisation : 2023-2024

Sur ce sujet