Prix SIA Mas­ter Ar­chi­tec­ture 2017: «La STEP d’Aïre: un nou­veau lieu de créa­tion et de dif­fu­sion ar­tis­tique à Ge­nève»

Un projet de Thierry Buache

Un diplôme de Master de l'Ecole polytechnique fédérale de Lausanne | Professeur Franz Graf

Date de publication
04-06-2018
Revision
06-06-2018

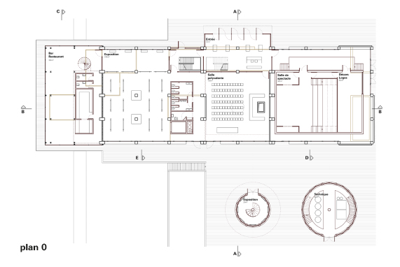
Inaugurée en 1967, la station d'épuration d'Aïre [Georges Brera, 1964-1967] subit de nombreuses transformations au cours du temps et laisse aujourd'hui deux bâtiments à l'abandon: le bâtiment administratif et l'ancien bâtiment de traitement des boues, le «porteous». Préconisant leur sauvegarde, ce projet propose une stratégie de réaffectation à travers un scénario programmatique et une méthode de réutilisation du bâti existant basée sur l'analyse architecturale, matérielle et historique des bâtiments.

Situés dans un méandre du Rhône, les bâtiments dévoilent leur nouvelle vocation culturelle à travers une promenade architecturale et paysagère au fil de l'eau. Le bâtiment administratif est reconverti en lieu de création artistique, où les anciens espaces de bureaux et de laboratoires accueillent des ateliers d'artistes et d'artisans, alors que le «porteous» est transformé en lieu de diffusion artistique, où les grands volumes anciennement industriels sont dédiés aux performances, expositions et installations diverses. Sous l'enseigne d'un même programme, les deux bâtiments ré-établissent leur lien historique et trouvent un nouvel usage permettant d'assurer leur pérennité.

Le projet s'insère dans un cadre paysager unique pour mettre en valeur les rives du Rhône et offrir un lieu public où la collaboration, entre les divers acteurs culturels, institutionnels et les habitants du quartier, permet de faire vivre ce nouveau lieu de la culture émergente.

(extraits des planches de présentation)

 

 

Informations pratiques

 

Distinction décernée depuis les années 1960 par la SIA, le Prix SIA Master Architecture récompense chaque année des travaux de fin d’étude soutenus dans l’une des trois hautes écoles universitaires que sont l’Accademia di architettura di Mendrisio (AAM), l’Ecole polytechnique fédérale de Lausanne (EPFL) et la Eidgenössische Technische Hochschule Zürich (ETHZ). Entre 80 et 130 projets de master sont soutenus annuellement (deux sessions d’examens pour l’EPFZ, une seule pour l’EPFL et l’AAM). Pour chaque session d’examens, le jury est formé de six architectes: le président de la société spécialisée «architecture et culture» (A&C), un représentant de chacune des régions linguistiques de cette même société, un représentant du groupe professionnel architecture de la SIA et un représentant de la section locale de la SIA du canton où se trouve la haute école universitaire. 

 

Tous les travaux ont été évalués par le jury à partir des critères suivants: qualité urbanistique et intégration au contexte, qualité architecturale et traitement des détail, clarté du parti, exhaustivité du rendu et aptitude à la collaboration au sein d'un bureau d'étude. 

 

Pour une vision d'ensemble des projets lauréats, consultez notre e-dossier consacré à ce prix. 

Étiquettes

Sur ce sujet