Une va­lise pour six se­maines

Quelle est la recette d’une rénovation énergétique durable et exemplaire? «Plus que les seules améliorations éner­­gétiques»: telle est l’approche adoptée pour l’ensemble Les Minoteries à Genève.

Date de publication
08-12-2023

«Le logement pour tous » est une priorité de la politique sociale genevoise. Elle a mené à la construction de grands ensembles de logements au cours de la deuxième moitié du 20e siècle. Aujourd’hui, la mission de la Ville évolue: Plusieurs complexes de son portefeuille immobilier ont atteint la fin de leur premier cycle de vie. Les défauts fonctionnels des installations techniques n’ont d’égal que l’état d’usure avancé des surfaces. Et bien que de tels bâtiments soient plutôt décriés, l’intérêt pour une transformation douce apparaît. Quoi qu’il en soit, certains sites sont protégés à titre patrimonial. Qui plus est, le développement urbain genevois privilégie généralement la transformation plutôt que la démolition et le remplacement.

329 logements répartis dans deux barres parallèles de 9 étages; entre elles, une galette traversée par un passage public desservant des espaces associatifs, un accueil parascolaire, un centre médical et des surfaces commerciales, une garderie juchée dans un des deux attiques complétant l’offre: l’ensemble des Minoteries est un petit village, conçu entre 1971 et 1976 par le bureau Honegger sur une parcelle de 6000 m2. Sa réputation de gouffre énergétique a poussé le Département de l’aménagement, des constructions et de la mobilité à faire de cet ensemble un projet test de rénovation énergétique de logements à grande échelle. Une solution inédite de chauffage connecté à un collecteur public (égouts) par l’intermédiaire d’un échangeur de chaleur, a par exemple été intégrée au cahier des charges des mandats d’étude parallèles (MEP) lancés en 2010 et remportés par Itten + Brechbühl.

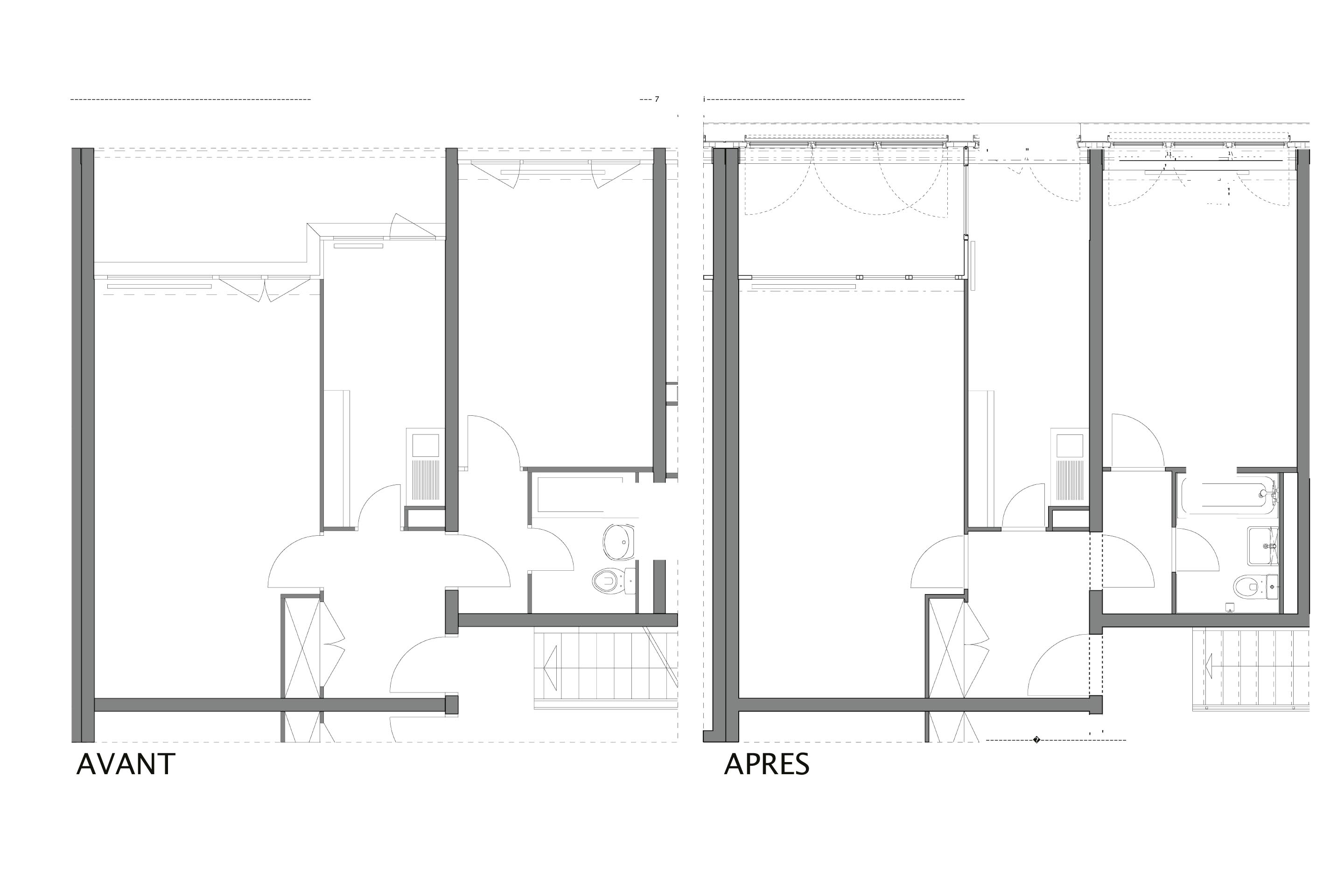
Par intérêt pour son patrimoine, la Ville de Genève, maître d’ouvrage du projet, a mandaté en 2009 le laboratoire Techniques et sauvegarde de l’architecture moderne (TSAM) de l’EPFL pour la réalisation d’une étude patrimoniale. Celle-ci suggère une rénovation de l’ensemble tenant compte d’une volumétrie caractérisée par la minéralité du tout préfabriqué en béton et l’orientation biaise des murs pignons.

Cap sur la performance énergétique

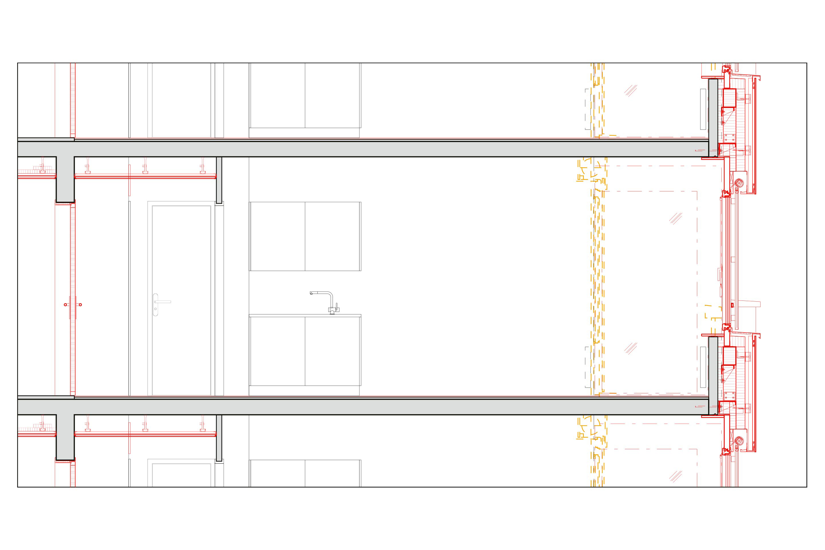
Le concept de rénovation d’Itten Brechbühl s’appuie sur la recommandation du TSAM. Développé à l’aune de la performance énergétique et de la course aux labels – les MEP ciblaient Minergie et la directive genevoise HPE –, la priorité est donnée à la part technique. La façade d’origine a tout bonnement été emballée d’une couche d’isolation extérieure de 30 cm protégée par des plaques en fibrociment – rappel de l’aspect minéral d’origine. Ce faisant, les appartements bénéficient désormais d’une loggia tempérée, grâce à la fermeture des balcons équipés de triple vitrage. Et cela porte ses fruits: deux pompes à chaleur évitent la consommation annuelle de 500 000 litres de mazout, alors qu’une centrale solaire thermique et des pergolas photovoltaïques, en plus d’offrir des zones ombragées en toiture, permettent le fonctionnement des pompes et la production d’eau chaude sanitaire.

Un patrimoine bâti et habité

La rénovation des Minoteries est riche d’un autre enseignement : la culture de la transformation est aussi celle de l’habité. Il était difficile, voire impossible compte tenu du marché locatif genevois et de la mission sociale assignée aux logements municipaux, de demander aux 600 personnes vivant ici de déménager pendant la durée des travaux. Qui plus est, ces grands ensembles présentent un important réseau social. Des raisons qui ont poussé la Ville à développer une structure d’accompagnement des locataires. Mis en place en amont des MEP, un processus de consultation a permis de sonder les besoins des habitants.

Les plus grandes interventions ont nécessité des adaptations architecturales sur le corps du bâtiment. Il était donc indispensable de laisser chaque appartement aux mains des artisans pendant plus d’un mois. C’est le temps qui a été nécessaire au désamiantage, à l’assainissement des salles d’eau, à la rénovation des installations techniques et à la transformation des balcons. Allées après allées, les locataires de deux étages étaient invités à faire leurs valises et à emménager six semaines durant dans l’un des 30 appartements de l’ensemble libérés et meublés en prévision de ces rocades. Pendant le chantier, la publication d’un bulletin informait mensuellement les locataires de l’avancement du chantier et des étapes à venir. Deux médiateurs mandatés par la Ville assuraient une permanence quotidienne sur le chantier, tandis que des civilistes, les trois concierges, une association de réinsertion sociale, ainsi que de nombreux bénévoles prêtaient main forte et assuraient un soutien moral bienvenu auprès des habitants. La rénovation de l’ensemble des Minoteries n’a engendré aucun changement de locataire, et le fait que les loyers n’aient pas été rehaussés n’est certainement pas étranger à cela. C’est la Ville qui, en respect de sa politique du logement, prend en charge les coûts de la transformation.

Retour d’expériences

Si l’ensemble des Minoteries souffrait d’un manque de reconnaissance et d’une mauvaise réputation au crépuscule de sa première vie, il jouit aujourd’hui, à l’aube de sa deuxième vie, d’une dynamique sociale paradoxalement réinventée et revitalisée par plus de quatre années de chantier: les ressources et les vertus du patrimoine se cachent aussi au cœur de l’habitat. La Ville a pris soin de documenter cette expérience par le texte et l’image, en croisant les regards des habitants avec les réalités d’un chantier. Pour le reste, les Minoteries auront aussi permis d’adapter les futurs projets de rénovation avec la recherche de concepts ménageant le climat et nécessitant moins de subterfuges techniques, afin d’économiser à l’avenir l’énergie d’exploitation et de réduire les besoins en ressources.

Les Minoteries, GENève

 

Maître d’ouvrage
Ville de Genève

 

Architecture et planification générale
Itten+Brechbühl, Genève/Lausanne

 

Ingénieurs civils (structure)
MDB Ing
énieurs Civils Associés, Petit-Lancy

 

Façades
BCS, Neuchâtel

 

Physique du bâtiment
Amstein + Walthert, Genève

 

Planification du chauffage et de la ventilation
SRG engineering Riedweg & Gendre, Carouge

 

Ingénieur sanitaire
Buclin Ingénieurs-­conseils, Petit-Lancy

 

Ingénierie électrique
Rossetti Ing. conseils, Carouge

 

Planification de la technique du bâtiment
HEPIA_LEEA, Genève

 

Architecture paysagère
Oxalis Architectes Paysagistes Associés, Carouge

 

Durée de la construction
1971-1976

 

Rénovation
2010-2015 (planification), 2016-2020 (réalisation)

Avec le soutien de SuisseEnergie et de Wüest Partner, les numéros spéciaux suivants ont été publiés par espazium - les éditions pour la culture du bâti:

 

1/2018 «Immobilier et énergie: stratégies pour l'immobilier – orientation pour les investisseurs institutionnels».

 

2/2019 «Immobilier et énergie: stratégies de mise en réseau».

 

3/2020 «Immobilier et énergie: stratégies de la transformation».

 

4/2021 «Immobilier et énergie: sur des routes communes avec l'électromobilité».

 

5/2022 «Immobilier et énergie: stratégies d'autoconsommation».

 

6/2022 «Immobilier et énergie: reconnaître la valeur de l’existant».

Les articles peuvent être consultés dans notre dossier numérique «Immobilier et énergie».

Sur ce sujet