Pre­mio Eu­ro­peo di Ar­chi­tet­tu­ra Ma­til­de Baf­fa Ugo Ri­vol­ta 2021

Concorso per il social housing – i risultati

Publikationsdatum
30-01-2022

La storia del premio

Il Premio Europeo di Architettura Matilde Baffa Ugo Rivolta per le migliori realizzazioni di edilizia sociale in Europa, è stato fondato e organizzato a partire dal 2007, dall’Ordine degli Architetti Pianificatori, Paesaggisti e Conservatori della Provincia di Milano, con cadenza biennale. Nato per promuovere i migliori progetti di edilizia sociale, sia pubblici sia privati – nonostante la definizione stessa di social housing abbia accezioni anche molto diverse nei vari paesi europei –, il premio ha dato un’importante spinta culturale in questa direzione, focalizzando l’attenzione sulla qualità dell’ambiente costruito e sulla sostenibilità del progetto. Dal 2007 ad oggi, si sono candidati architetti provenienti da Italia, Svizzera, Austria, Olanda, Portogallo, Spagna, Bulgaria, man mano estendendosi geograficamente a un’Europa allargata.

L’architetto Ugo Rivolta (1929-2005)– cui il premio è intitolato – era vice Presidente dell’Ordine degli Architetti di Milano nel 2005 quando è improvvisamente mancato. Ugo Rivolta aveva dato un significativo contribuito alla cultura architettonica milanese, attraverso l’insegnamento, l’etica e la professione: assistente di Gio Ponti, aveva lavorato con BBPR per la realizzazione della Torre Velasca, fino a fondare lo studio di architettura con la moglie Matilde Baffa, con cui ebbe un lungo sodalizio di vita e lavoro. Nel 2016, al premio viene aggiunto il nome di Matilde Baffa (1930-2016), Professoressa Ordinaria del Politecnico di Milano, dopo essere stata assistente di Franco Albini presso lo IUAV di Venezia: studiosa di grande spessore sui temi della residenza e della composizione architettonica (pubblica, tra le altre cose, su Alexander Klein), e collaboratrice storica di Casabella Continuità sotto la direzione di Ernesto Nathan Rogers.

Edizione 2021: premio e menzioni a due studi svizzeri

L’ottava edizione del premio – conclusasi a dicembre 2021 – ha decretato vincitore lo studio barcellonese Peris+Toral Arquitectes con il progetto «85 Social Housing Units» a Cornellà de Llobregat, per la qualità della «proposta radicale e sofisticata, sia in termini di programma funzionale che di linguaggio. L'edificio a Cornellà – questo il giudizio della giuria – ha avuto il merito di mettere in luce come la flessibilità non significhi necessariamente spazio libero, ma può costituire la combinazione tra uso della geometria e ripetizione di elementi modulari». Questa «casa delle stanze uguali» progettata con mezzi ridotti e grande attenzione anche alla scala urbana, è stata ritenuta emblematica anche perché esito di un concorso di architettura bandito da un ente pubblico di edilizia popolare.

La giuria internazionale dell’ottava edizione – composta da Søren Nielsen (Danimarca), Carles Muro (Spagna), Simona Della Rocca, Chiara Rizzica e Fabio Lepratto (Italia) – ha, inoltre, attribuito due importanti menzioni ufficiali a due studi svizzeri.

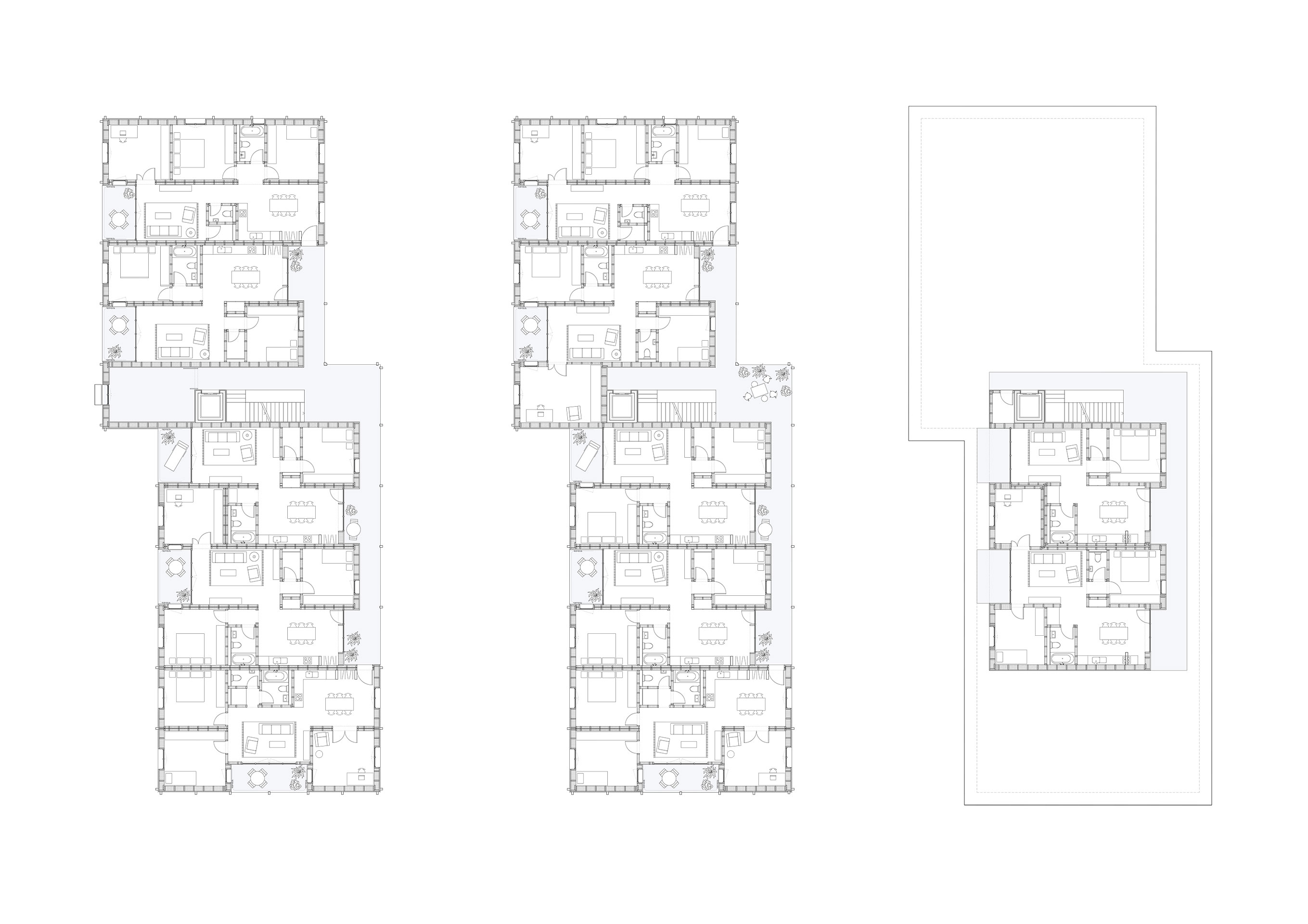
La menzione per la sperimentazione tipologica viene attribuita al progetto «Housing Development Maiengasse» a Basilea, dello studio Esch Sintzel Architekten di Zurigo. Il complesso residenziale – perfettamente inserito nel contesto urbano e densamente abitato – reinterpreta in chiave contemporanea il blocco a corte – qui è una forma aperta a U – attraversato da percorsi pedonali, e posto in coerente relazione con il tessuto urbano circostante.

Ottiene la menzione per la «ricerca e innovazione tecnica e costruttiva» il progetto Hirtenweg a Basilea, di Harry Gugger Studio, che ha utilizzato un efficace sistema di prefabbricazione in legno sia per la struttura, sia per la facciata, recuperando, inoltre, le fondazioni esistenti degli edifici preesistenti: il progetto ha saputo quindi conciliare modularità, sostenibilità, relazione con l’ambiente circostante a costi contenuti.

La prossima edizione del premio è attesa per il 2023: http://premiobaffarivolta.ordinearchitetti.mi.it