«Ham­burg gönnt sich seine Leuchttürme»

Studium an der ETH, Büro in Deutschland

In einer kleinen Serie präsentieren wir junge deutsche Architekturbüros mit Verbindung zur ETH Zürich. Henrik Becker beschäftigt sich mit unterschiedlichen Wohnformen und erarbeitet durch die Verbindung von Ort und Programm vielfältige Wohnräume.

Date de publication
09-09-2020

Das Büro von Henrik Becker wurde 2017 in Hamburg gegründet. Nachdem er sein Studium 2012 an der ETH Zürich abgeschlossen hatte, assistierte er an der EPFL bei Jeannette Kuo sowie an der HSLU. Im Jahr 2013 gründete er mit Michael Umbricht in Zürich Becker & Umbricht Architekten. Die ersten Projekte von Henrik Becker zeichnen sich durch eine präzise Auseinandersetzung mit Raum, Konstruktion und Material aus.

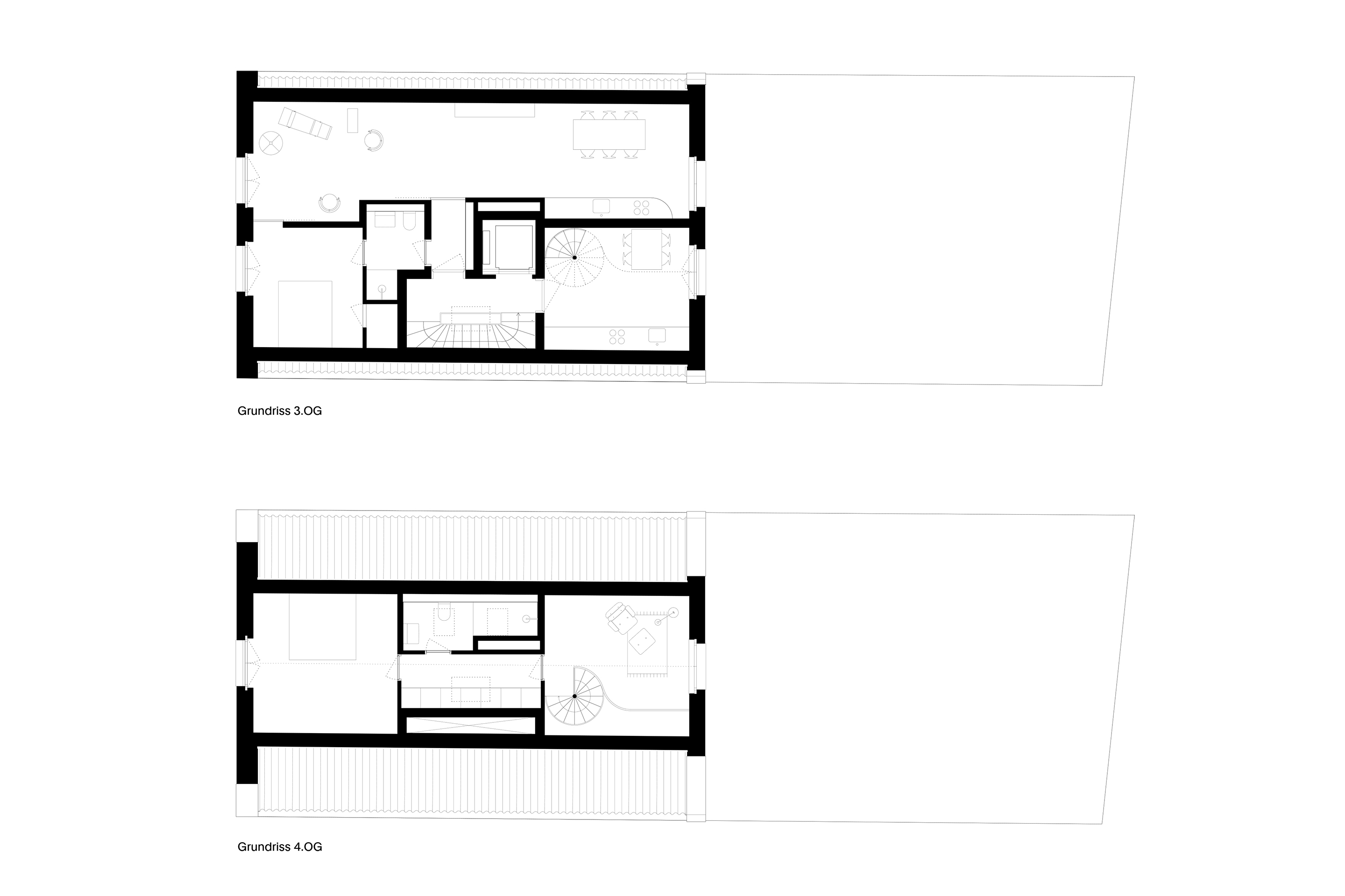
Nordische Wohnhäuser I: Haus B

Das Haus B steht inmitten eines Einfamilienhausquartiers an der Ostsee. Mit seinen Traufen wendet es sich einerseits zur Strasse und andererseits zum Garten. Auf den ersten Blick mutet es wie ein weiteres grosses Haus für eine Familie an, der Blick auf den Grundriss zeigt jedoch die Teilung des Volumens entlang des Firstes, sodass zwei identische Wohneinheiten mit unterschiedlicher Ausrichtung entstehen. Man kennt die reetgedeckten Häuser mit ihren steilen, oft expressiv-organischen Dachformen und Gauben: Auch beim Haus B bildet das Reetdach das prägende Element. Es lagert auch auf einem hölzernen Dachstuhl, jedoch wird dieser nicht von dicken Mauern getragen, sondern von einer leichten Holzkonstruktion bestehend aus acht Rundstützen und Holzrahmenbauwänden. Die Wohnräume im Erdgeschoss orientieren sich über ihre filigran profilierten Verglasungen zum Aussenraum und verbinden sich über eine gedeckte Verandaschicht mit diesem. Im Gegensatz dazu ruhen die Schlafräume unter dem hohen Steildach, die giebelseitig lediglich über zwei schmale Fenster in der Holzwand belichtet werden. Der Übergang von den extrovertierten zu den introvertierten Räumen wird beim Aufstieg in den Galerieraum inszeniert: sein Oblicht bietet keinen Ausblick mehr.

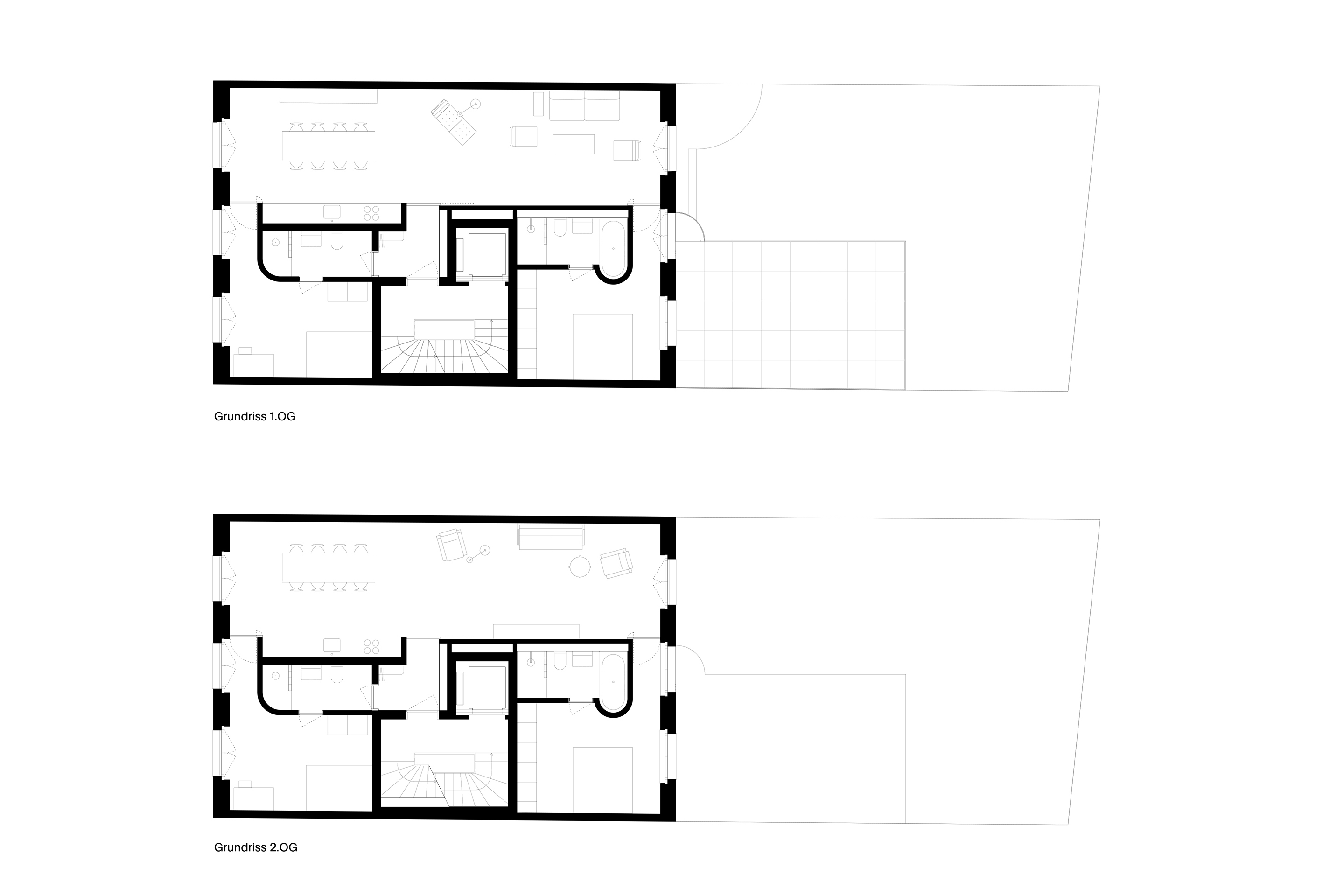
Nordische Wohnhäuser II: Lübecker Gründungsviertel

Auf dem im Zweiten Weltkrieg stark zerstörten ältesten Kaufmannsviertel, dem Lübecker Gründungsviertel, entstehen derzeit 38 Giebelhäuser auf den ursprünglichen Parzellen, die sich in ihrer Dichte und gemischten Nutzung an historischen Vorbildern orientieren sollen. Das Wohnhaus von Henrik Becker knüpft an die historische Grundrissstruktur an und macht diese für fünf zeitgemässe Wohnungen nutzbar. Die für die Kaufmannshäuser typische doppelgeschossige Erdgeschossdiele sowie die Verengung der Grundrisse im spitz zulaufenden Dachraum dient als Ausgangspunkt. Während sich in einer Gebäudehälfte das Treppenhaus sowie die privaten Zimmer und Bäder gliedern, befinden sich im langen, von Strasse zu Hof durchgehenden Raum die Wohn- und Essbereiche. Die oberste Wohnung erstreckt sich mit ihrer Galerie bis in den hohen Dachraum.

Genossenschaftshaus Freihampton

Beim zweiten Wettbewerb der Kooperativen Grossstadt im Münchner Stadtteil Freiham erzielte Henrik Becker zusammen mit Basista Jansen Architekten den dritten Preis. Gesucht wurde ein Genossenschaftshaus mit unterschiedlichen Wohnungsgrössen, die je nach zukünftigem Bedarf auch wachsen oder schrumpfen sollen. Das Team hat ein grosses Haus mit Loggien entworfen, das sich mit einem Kopfbau, der die Erschliessung sowie Gemeinschaftsräume aufnimmt, verbindet. Gewohnt wird ab dem Erdgeschoss. Die grossen Wohnungen entwickeln sich über zwei Geschosse; eine Wendeltreppe verbindet die Wohn- und Essräume mit den Schlafräumen. Die doppelgeschossigen, breiten Loggien dienen als Laubengang und gemeinschaftlicher Aussenraum vor den Küchen.

Henrik Becker kritisiert den aktuellen rendite- und zweckorientierten Wohnungsbau in Deutschland und möchte mit seiner Arbeit zu einer Wohnbaukultur beitragen, die sich mit den qualitativen Themen der Architektur und nicht mit der Erfüllung von Quantitäten beschäftigt. Durch die Suche nach einem spezifischen Ausdruck für Ort und Programm erhält jedes Projekt einen eigenen Charakter.

espazium: Was sehen Sie als grösste Chance in Ihrer Stadt, Ihrer Region?

Henrik Becker: Seit 2017 arbeite ich als selbständiger Architekt in Hamburg. Der Umzug hatte vor allem private Gründe, weniger strategische und bestimmt keine architektonischen. Hamburg hat zwar ein stolzes bauliches Erbe und gönnt sich seine Leuchttürme, doch mit der zeitgenössischen Architekturproduktion in dieser Stadt ist es so eine Sache. Dabei könnten die Voraussetzungen der Stadt kaum besser sein, sie wächst und prosperiert. Dennoch erfüllen Neubauten, insbesondere Wohnbauten scheinbar lediglich den Zweck, Wohnraum bereitzustellen. Zu behaupten, man könnte dies nun einfach ändern, wäre vermessen, dennoch würde ich mit meiner Arbeit gerne dazu beitragen, diese Lage zu verbessern.
 

espazium: Wo ist der Bezug zur ETH Zürich oder zur Schweiz in Ihrer Arbeit spürbar?

Henrik Becker: Als Schüler und später als junger Student war ich fasziniert von der Ernsthaftigkeit schweizerischer Architektur. Sie schien, anders als die zeitgenössische Architektur, die ich bislang kennengelernt hatte, logisch zu sein – vielleicht ein wenig spröde, dafür in meinen Augen wahrhaftig. Diese Beobachtungen sind höchst subjektiv und haben natürlich keinen Anspruch auf Allgemeingültigkeit. Sie beschreiben lediglich, was ich empfand, als ich auf Reisen durch die Schweiz, insbesondere in Graubünden und im Tessin, Gebäude wahrnahm, die ich in dieser Form vorher nirgendwo gesehen hatte. Diese Faszination führte mich nach Zürich an die ETH, wo ich von 2008 bis 2013 studierte. Im Anschluss gründete ich gemeinsam mit Michael Umbricht das Büro Becker & Umbricht Architekten, ebenfalls in Zürich.
 

espazium: Was sind aktuelle Inspirationen Ihrer Arbeit?

Henrik Becker: In Deutschland ist es um das offene Wettbewerbswesen leider deutlich schlechter bestellt als in der Schweiz. In den vergangenen drei Jahren gab es in der Stadt Hamburg keinen einzigen offenen Wettbewerb für eine Wohnüberbauung. Gleichzeitig werden so viel Wohnungen gebaut wie nie. Das ist ein Skandal, der nicht zu tolerieren ist. Eine Kultur des Wettbewerbs produziert nicht nur qualitativ hochwertige Architektur, sondern fördert junge Architekten und ermöglicht mitunter die Gründung eines Büros. Diese Kultur ist daher nicht hoch genug zu schätzen!

Nun ist dies ein politisches Problem, das sich nicht über Nacht lösen lässt. Daher lautet mein Ansatz, die Lösung selbst in die Hand nehmen. Im Moment arbeiten wir an der Gründung einer nicht-kommerziellen Organisation, deren Sinn und Zweck die Förderung der Wohnungsbaukultur sein wird. Die erste Handlung wird ein Vortrags- und Gesprächszyklus sein, der noch in diesem Jahr stattfinden soll. Das langfristige Ziel aber sollte sein, selber Projekte zu initiieren, vermutlich in Form einer Genossenschaft. Bis dahin ist es noch ein langer Weg.

In unserer Online-Serie «Debüt» präsentieren wir die Werke junger Architekturbüros. Dieser Beitrag  ist Teil einer Reihe, die den Schwerpunkt auf Architektinnen und Architekten mit Bezug zur Schweiz setzt, die ihr Büro in Deutschland gründeten.