Va­len­tina Mo­retti: in­dus­tria­li­ser la mai­son

«La grande industrie doit s’occuper du bâtiment et établir en série les éléments de la maison. Il faut créer l’état d’esprit de la série, l’état d’esprit de construire des maisons en série, l’état d’esprit d’habiter des maisons en série, l’état d’esprit de concevoir des maisons en série.»
Le Corbusier, «Maisons en série», Vers une architecture, 1923

Date de publication
28-02-2018
Revision
29-03-2018

Valentina Moretti (Erbusco, 1982) effectue ses études à l’Accademia di architettura di Mendrisio où elle obtient son diplôme d’architecte sous la direction de Valerio Olgiati en 2007. Après avoir travaillé au sein du bureau Richard Meier & Partners Architects et de l’agence Anderson Architects à New York, elle rentre en Italie, dans la région vallonnée de Franciacorta, pour s’occuper de l’entreprise familiale Moretti-Building on human values, présente dans le secteur des grands travaux de construction industrialisée depuis 1967. En 2010, Valentina Moretti, qui veut appliquer les principes de la préfabrication au système de la maison, lance le projet Moretti MORE. Elle obtient avec MORE des récompenses importantes à l’échelle nationale, dont le prix de design industriel ADI Design Index, le premier prix dans la catégorie des systèmes pour l’architecture au salon Klimahouse et le Prix des Prix des mains du président de la République italienne pour son approche avant-gardiste sur le thème de la maison. Depuis 2014, elle dirige le bureau de design d’intérieur AMOAMA Architettura avec son mari Francesco Matricardi, diplômé de l’Accademia di architettura di Mendrisio et directeur marketing et communication de MORE.

Le système constructif MORE

Le projet MORE est une idée innovante de maison à l’échelle industrielle qui associe les avantages de la préfabrication à la conception architecturale: contrôle à tous les stades de fabrication, rapidité de mise en œuvre, conformité du produit fini aux exigences prédéfinies et garantie des coûts. Il aboutit à une série de modèles d’habitation ready made, dont les caractéristiques peuvent être adaptées et reproduites. Des maisons, à la fois objets de design et «machines à habiter», construites au moyen de panneaux périphériques efficaces et dotées d’équipements de haute technologie: ventilation mécanique contrôlée, domotique, communication et transmission des données et énergies alternatives.

Le système constructif MORE est basé sur des éléments modulaires porteurs définissant l’enveloppe du bâtiment. Ces éléments sont unis près des joints horizontaux et verticaux par un coulage de béton fluide qui permet de réaliser une structure compacte. Les panneaux sont constitués de couches superposées, étudiées pour optimiser au maximum les performances des matériaux utilisés: une «croûte» externe compacte en béton coloré dans la masse, une couche isolante et une plaque interne en béton allégé. Les éléments sont assemblés à sec sur le chantier, les finitions sur place sont réduites au strict minimum ainsi que les délais de construction de huit semaines au total. Les huisseries sont insérées à l’intérieur des panneaux par un faux-cadre monobloc qui garantit la continuité de l’isolation thermique et acoustique de l’enveloppe.

Prototypes et réalisations

Le premier prototype réalisé par MORE à Erbusco, Casa Uno, est une maison compacte de plusieurs niveaux. Elle a été conçue comme une coque solide dans laquelle un espace ouvert et lumineux se développe à la verticale jusqu’au toit-terrasse. Inspirée de la ferme lombarde traditionnelle, la forme de sa couverture permet d’exploiter au maximum l’espace habitable sous le toit.

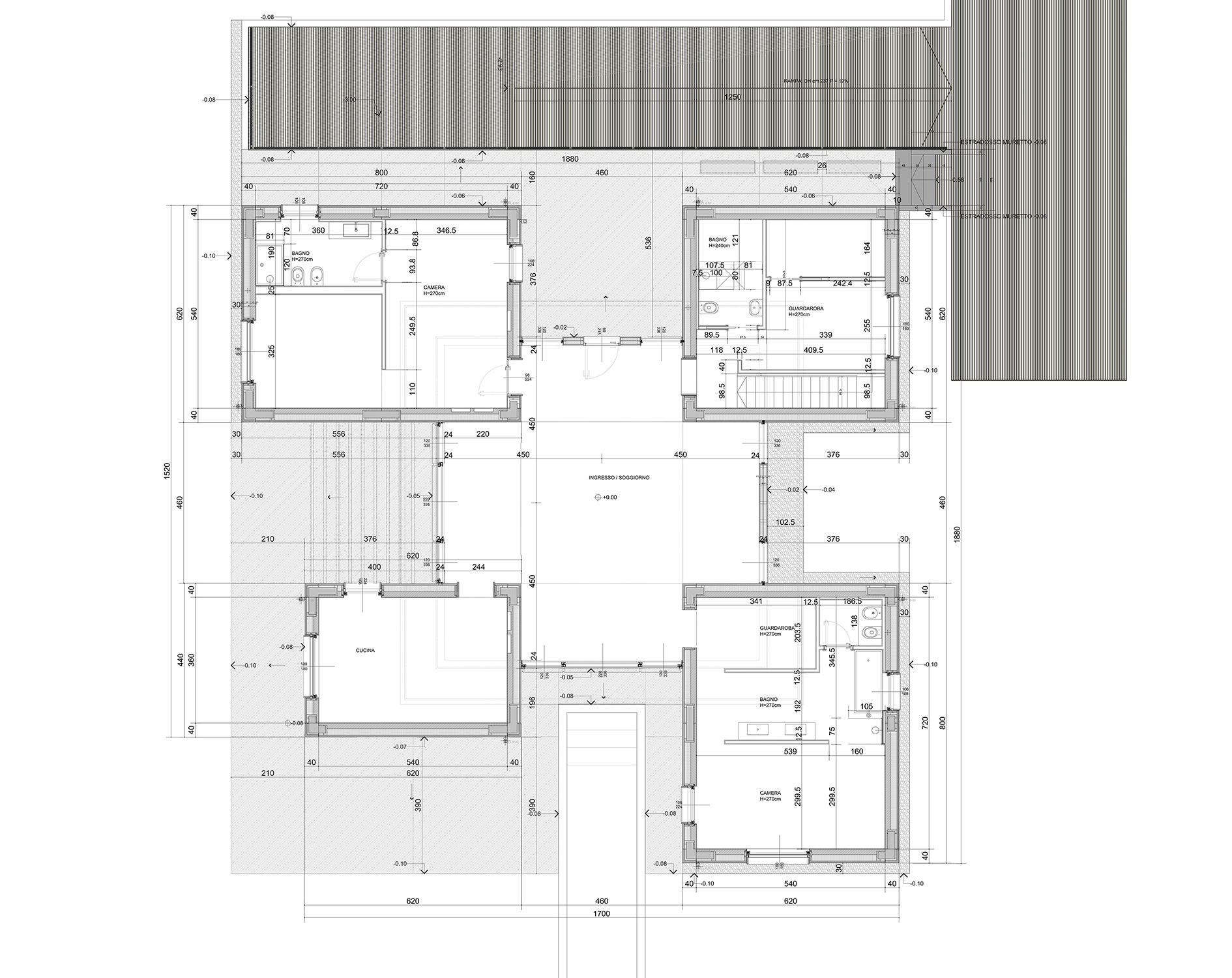
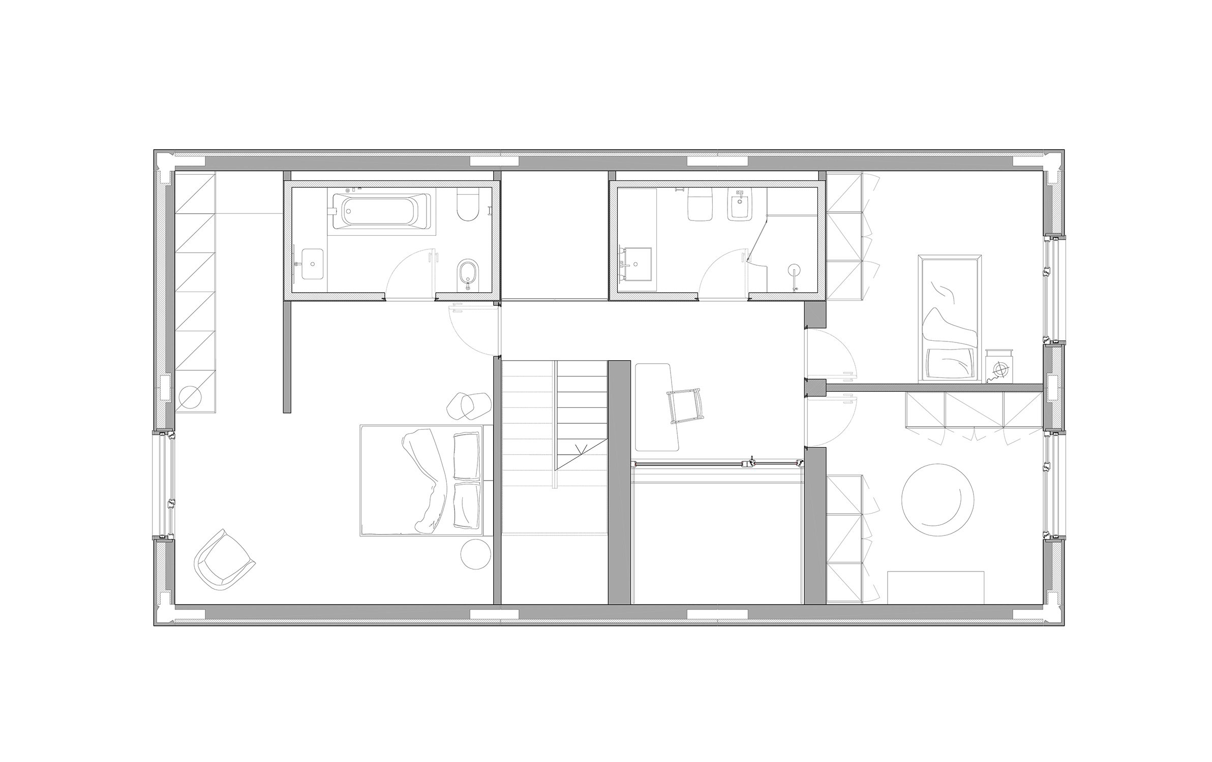
Située à l’intérieur du golf de Franciacorta, la Casa Patio est formée de quatre blocs de circulation abritant respectivement les chambres à coucher et leur salle de bain, la cuisine et un cabinet de travail. La composition de ces noyaux dessine au centre une grande pièce dédiée au séjour, plus haute et transparente, dont les baies vitrées en retrait créent quatre patios extérieurs protégés par le toit.

A Uznach, dans le canton de Saint-Gall, la maison conçue par MORE est constituée de quatre carrés tournés vers les points cardinaux. A l’étage supérieur, ils pivotent et offrent des vues nouvelles sur le paysage ainsi qu’une lumière différente. Réalisé avec un système à sec sans coulages, des huisseries en bois naturel et des éléments de ferblanterie en acier chromé, le bâtiment est conforme aux standards Minergie et Minergie A.

La Casa V+F est, quant à elle, une maison de verre immergée dans la végétation des collines qui possède un beau point de vue sur le lac d’Iseo. Quatre blocs de béton apparent accueillant les chambres, les salles de bain et la cuisine soutiennent le grand toit-terrasse planté d’un exubérant jardin suspendu. A l’intérieur, les meubles de design côtoient une décoration et des détails dessinés sur mesure, comme les cadres des larges baies en rouvre clair qui forment des consoles d’appoint et se transforment dans les chambres en bow-windows de forme carrée. Un bassin spectaculaire couronné d’une ouverture zénithale circulaire invite à un moment de détente exotique, au contact de la nature. Construite en ajoutant au système MORE une structure de poutres en acier sur lesquelles sont ancrés des panneaux de remplissage en ciment, la maison a été réalisée en seulement cinq mois.
L’objectif de Valentina Moretti est clair: rendre l’architecture accessible à tous grâce à la technologie et aux atouts de la construction industrialisée.

Sur ce sujet