Prix SIA Master Architecture 2016: Ausstellungshaus für Architektur und Städtebau am See
Un projet de Sandro Elmer
Master soutenu à l'EPFZ sous la direction du Professeur Andrea Deplazes
1 / 9
2 / 9
3 / 9
4 / 9
5 / 9
6 / 9
7 / 9
8 / 9
9 / 9
1 / 9
2 / 9
3 / 9
4 / 9
5 / 9
6 / 9
7 / 9
8 / 9
9 / 9
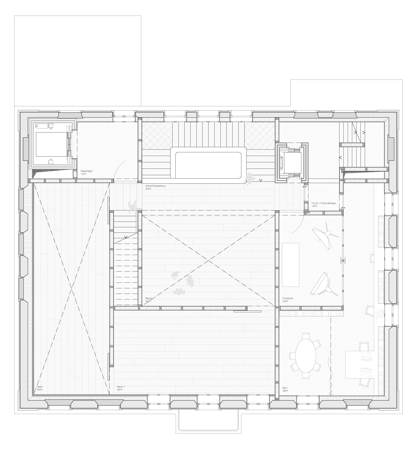
Un changement d‘affectation, auquel les principaux concernés réfléchissent depuis des décennies, a fourni le sujet. Tout en valorisant la substance existante, l‘auteur fait subir une métamorphose au bâtiment, d’une part en déclinant de subtiles interventions et quelques menues adaptations aux deux premiers étages, d’autre part en surélevant l’ouvrage de deux étages complets. A côté d’une structure en béton pour l’extérieur, l’intérieur reçoit une charpente en bois. Une captivante succession d’espaces bien proportionnés, des transitions intéressantes, un éclairage naturel maîtrisé et une matérialisation dynamique promettent des options scénographiques et une perception spatiale en adéquation avec un lieu d’exposition. Outre les qualités formelles du projet, son rendu et le soin apporté à la présentation mérite eux-mêmes une reconnaissance.
(Texte du jury)