Ca­mou­flage d’al­page

Un projet hôtelier haut de gamme,mais pas ostentatoire, dissimulé dans des granges désaffectées. Retour sur une réalisation d’une grande sensibilité environnementale.

Date de publication
03-12-2015
Revision
08-12-2015

Au début des années 2000, le hameau de Commeire, qui surplombe la route du Grand- Saint-Bernard, était quasi abandonné. Constitué d’une trentaine de granges en mélèze, il défiait le temps et l’idée qu’on se fait du confort.

Quand deux entrepreneurs belges envisagent d’y installer des maisons d’hôtes personne n’y croit. Ni les propriétaires qui cèdent les premières granges à 25000 francs, ni la Commune d’Orsières qui ne croit pas au potentiel de développement du hameau, ni les banquiers qui hésitent à financer un projet jugé atypique.

Aujourd’hui, l’entreprise Montagne Alternative compte une trentaine de lits dans huit granges reconfigurées et trois nouvelles constructions. Aux dires de Patrick Devanthéry, l’architecte qui a planifié la reconversion, les dernières granges du hameau restées dans leur état d’origine se négocient désormais à 250000 francs.

Dès les premières étapes, le projet affiche l’ambition d’offrir à ses futurs hôtes les standards d’un quatre étoiles, mais sans l’emprise au sol d’un établissement de ce type. Toutes les fonctions d’un grand hôtel vont devoir être disséminées dans le hameau. C’est une des principales caractéristiques du projet: inscrire un nouvel usage dans des gabarits existants.

Le chantier, forcément long, doit s’adapter au rythme des bâtisseurs locaux qui ne travaillent que pendant les périodes où ils ne sont pas appelés à d’autres tâches. Ce calendrier montagnard rythme le phasage des reconversions, et explique qu’il a fallu près de dix ans pour parvenir au résultat actuel. Loin de constituer un défaut, la lenteur d’exécution confère au projet une dimension incrémentale. Chaque nouvelle reconversion s’enrichit de la précédente. Chaque étape a le temps de mûrir et se perfectionner avant d’être mise en œuvre. Le projet serait aujourd’hui parvenu à 90% de ses objectifs. Il reste encore quelques éléments essentiels à concrétiser, dont un SPA, mais l’ensemble est déjà opérationnel.

Reconversion sur mesure


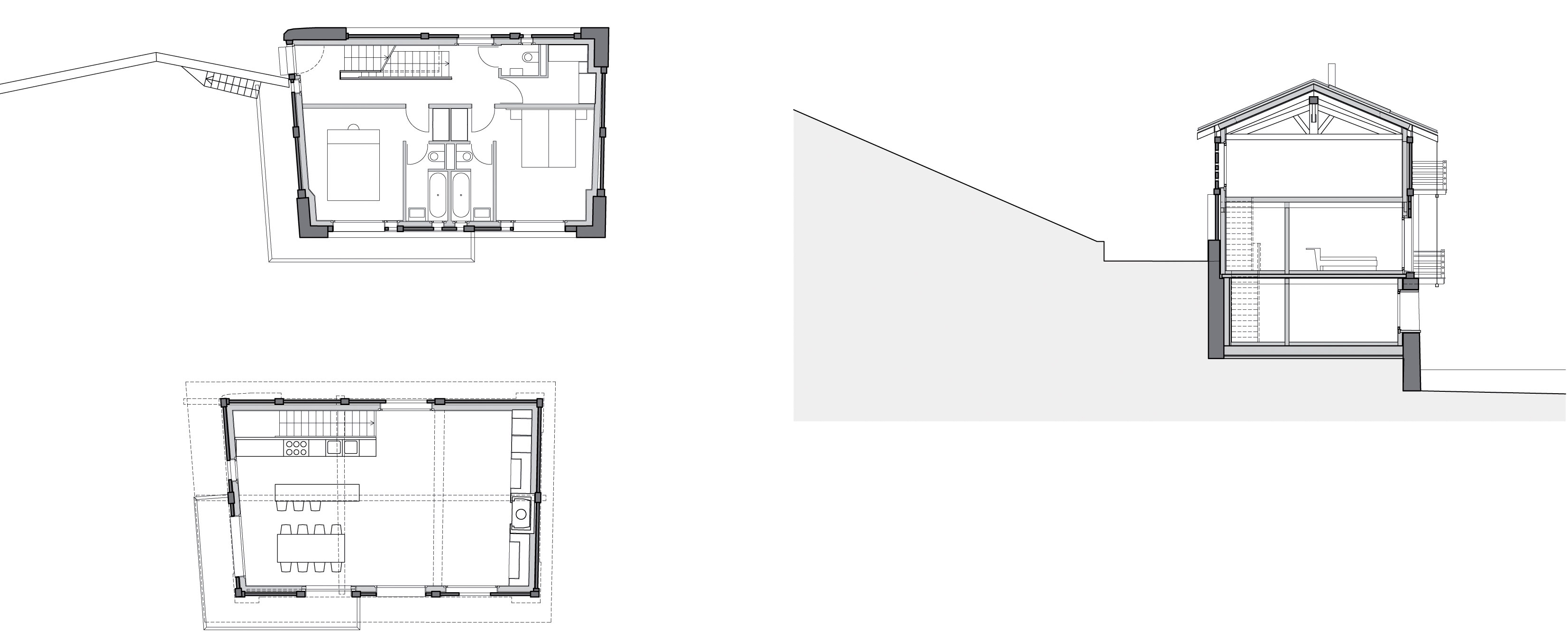
Les chambres, toutes différentes, s’adaptent aux gabarits variables des granges. Le principe de l’intervention est complexe malgré une apparente simplicité. Les granges sont des structures dans lesquelles les hommes et les bêtes coexistaient. Elles sont mal isolées et comportent très peu d’ouvertures. L’architecte a donc dû concevoir des boîtes habitables à l’intérieur des enveloppes initiales. Il s’est efforcé de limiter au maximum les percées dans la paroi en mélèze. Il a consolidé, parfois redressé les structures qui avaient tendance à s’incliner. Il a surtout reconstruit intégralement les soubassements. Le résultat peut surprendre: le premier effet est celui d’une structure ancienne posée sur un socle neuf. Il faut entrer dans chacune des bâtisses pour se rendre compte du fin travail d’adaptation dont a fait preuve la démarche de Patrick Devanthéry.

A commencer par les ouvertures, réduites au strict nécessaire qui exploitent quand cela est possible les fentes d’aération de la grange. Dans certains cas, le paysage se donne à voir par un subtil jeu de meurtrières maintenues en l’état. Leur façon de structurer la vue transforme la contemplation en acte sollicité. C’est un des détails les plus réussis du projet. Les grandes fenêtres panoramiques qu’il a fallu créer pour chacune des chambres affectent peu l’apparence globale des granges. Les chambres étant situées dans les parties inférieures, la plupart des nouvelles fenêtres se situent dans le socle refait. Le bardage intérieur, lui aussi en mélèze, est fait avec des planches dépareillées, provenant souvent du même bâtiment.Globalement,l’usage du bois est structurel et certainement pas ornemental.

Parfaitement isolées, mais sans que soit altérée la finesse du panneau du toit, chauffées pour l’essentiel par des capteurs solaires et des cheminées high-tech capables d’optimiser la chaleur d’un feu, les granges sont des résidences de luxe parfaitement dissimulées. En cela, elles ne sont pas sans évoquer les étranges constructions désaffectées à l’entrée du village. Il s’agit de bunkers camouflés sous l’apparence de constructions agricoles. Commeire a longtemps profité des unités d’artillerie postées à l’entrée du hameau et dont les canons cachés dans la montagne ciblaient le Grand-Saint-Bernard. Avec le départ des militaires, le hameau va décliner jusqu’à l’arrivée de cette nouvelle opération de la camouflage qu’est Montagne Alternative.
Globalement, la discrétion qualifie l’intervention dans son ensemble. Elle en vient à constituer la marque de fabrique du projet: l’idée forte à apposer comme un contrepoint idéologique au banal chalet hôtelier, neuf et envahissant.

En s’imposant cette règle spatiale – trouver sa place dans des gabarits existants – le projet s’invente une loi qui structure son déploiement. Il ne s’agit pas juste d’une contrainte relevée, mais d’un principe qui donne sa dynamique à l’ensemble. De façon analogue, le travail d’adaptation de la boîte habitable dans le gabarit initial n’est pas appréhendé comme une succession de compromis, mais comme un concept qui structure et donne son sens à l’opération. L’adaptation du nouveau à l’ancien et le respect de la configuration initiale sont les fondements de l’écologie globale du projet.

Dans les ruelles un peu trop léchées du hameau ressuscité apparaît la façon qu’à le projet de revisiter un mythe fondamental de l’hôtellerie de montagne: l’idée de l’îlot d’urbanité au milieu de nulle part. Ce fantasme a constitué un trait essentiel du grand hôtel du 19e siècle. La forte déclivité permet des points de vue sur la montagne mais aussi sur le hameau. Il ne s’agit donc pas seulement de l’urbanité des services proposés aux hôtes ni celle d’une écologie énergétique et nutritionnelle qui n’a rien d’exceptionnel. L’urbanité qui fait la marque de fabrique de Montagne Alternative est celle inhérente à la forme du hameau: celle qui situe l’origine de la ville dans la forme archétypale du village. La rencontre entre la densité vernaculaire du hameau et la culture urbaine de l’entre- prise hôtelière scelle la réussite du projet.

(Cet article est paru dans l’édition d’août 2015 de la revue allemande DB Deutsche Bauzeitung)

 

Étiquettes
Magazine

Sur ce sujet