Centre Com­mer­cial Fri­bourg-Sud, Vil­lars-sur-Glâne

Soumission PRIXFORIX 2024

Date de publication
17-04-2024

La revitalisation du centre commercial de Fribourg Sud s’inscrit dans un contexte de concurrence commerciale intense. Afin de renforcer son ancrage dans le tissu économique local et d’assurer la durabilité de la structure et de ses installations techniques, un projet d’envergure a été élaboré.

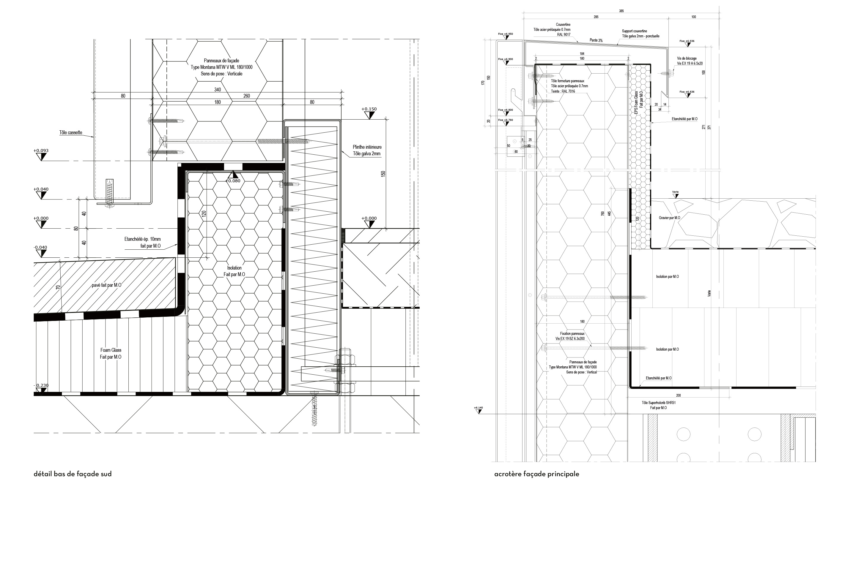
Le projet vise à donner une nouvelle image au centre commercial Coop Fribourg-Sud, en harmonie avec son environnement. Une attention particulière a été accordée à la mise aux normes du bâtiment, notamment en ce qui concerne l’enveloppe thermique et les normes AEAI.

Implanté à la jonction entre une urbanité animée d’un côté et une forêt reposante de l’autre, le projet s’inscrit harmonieusement dans ce contexte singulier caractérisé par un aspect industriel au nord et une immersion naturelle au sud.

L’ingéniosité du design s’exprime dès le premier regard, off rant une vue imprenable sur la forêt non seulement observée depuis la route, mais métaphoriquement représentée par la façade elle-même. Chaque arbre, minutieusement détouré à la main, appartient véritablement à cette forêt, conférant à la façade une dimension artisanale et authentique.

La longueur imposante de la façade, 180 mètres, bien qu’elle crée une perspective marquante, est habilement atténuée par une intégration harmonieuse dans son environnement. Des caissettes alu de 3mm d’épaisseur, totalisant 810 éléments, créent un contraste artistique grâce aux 5 motifs perforés de base (4’800’000 trous). Le motif «seamless» se répète tous les 66 panneaux, organisés en 22 colonnes de 3 panneaux de hauteur.

Planification et construction de façades
Morand, Enney
 

Architecture
Architecture & Retail Rites, Lausanne
 

Direction de travaux 
OCSA o charrière architectes, Bulle
 

Maître d'ouvrage
Coop Société Coopérative

Vous trouverez d'autres projets soumis pour le PRIXFORIX 2024 dans notre dossier numérique et sur prixforix.ch

Étiquettes

Sur ce sujet