PAV Pointe Nord, Ge­nève

Soumission PRIXFORIX 2024

Date de publication
17-04-2024

Située sur la pointe nord du quartier en pleine restructuration PAV, à proximité du centre-ville de Genève, la Tour de 16 étages a fait l’objet d’un des projets de rénovation les plus importants de la Caisse de Prévoyance de l’État de Genève (CPEG). Ce bâtiment est emblématique de ce site entièrement rénové, qui abrite à ce jour environ 650 collaborateurs, fonctionnaires de l’État de Genève.

Son architecture rectiligne reflète ses lignes d’origine alors que sa rénovation, commencée début 2021, répond aux plus hauts standards énergétiques et de développement durable tant par le réemploi des matériaux que par la réduction des émissions de gaz à effet de serre.

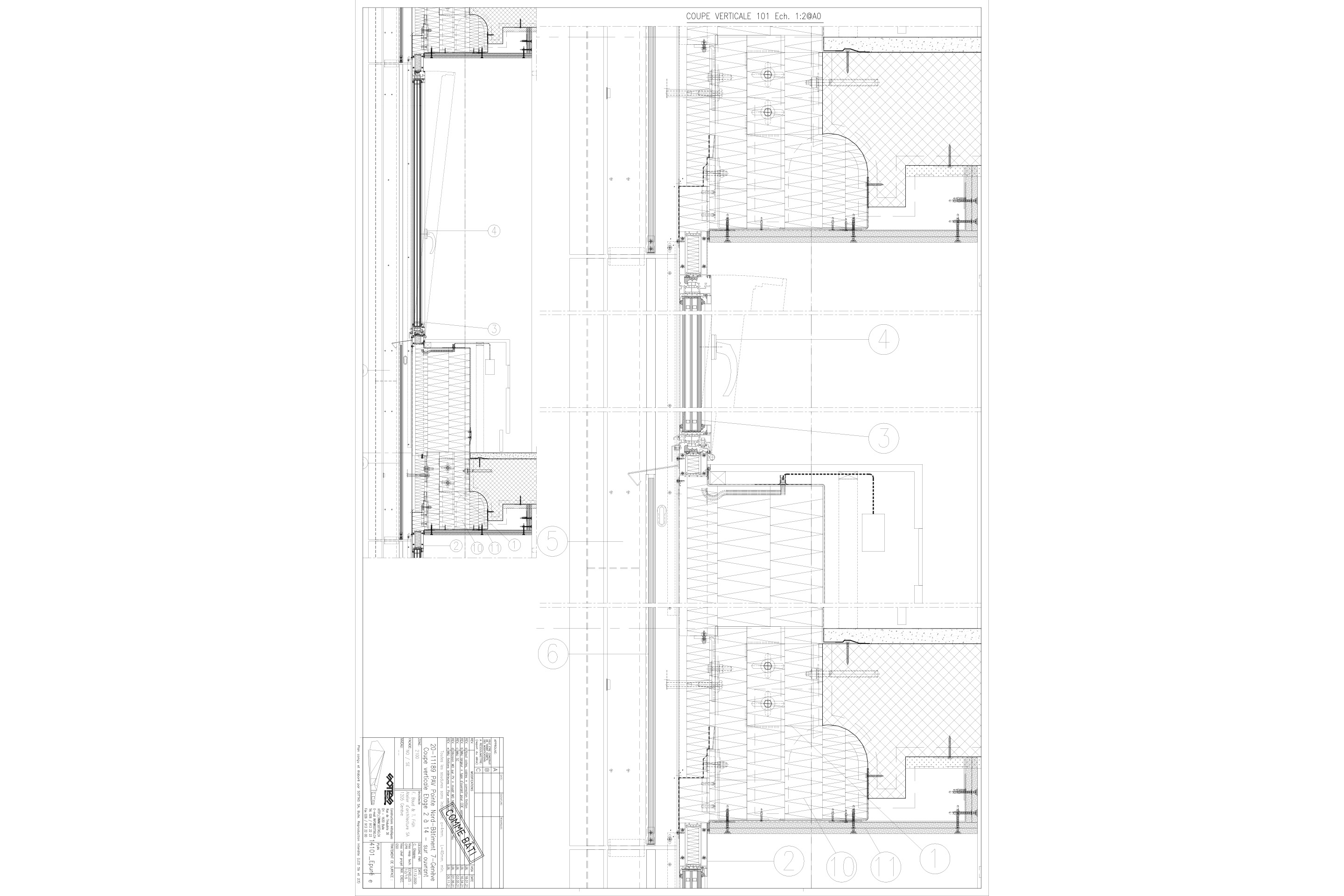
La façade par éléments, en aluminium, équipée notamment de verres électrochromes Sageglass et de panneaux photovoltaïques dynamiques, représente l’élément caractéristique de ce bâtiment tout en conservant ses lignes architecturales originales.

Le bâtiment étant réalisé à son origine en béton armé, la résistance de la structure des années 1960 permet une rénovation où le squelette est quasiment laissé à nu en raison de l’obsolescence de bon nombre des éléments de sa façade, ceux de l’enveloppe étant entièrement déposés, afin de donner naissance à une nouvelle façade, composée d’un système de menuiserie en aluminium et de verres dynamiques à teinte variable. Les éléments de contrecœur rythment la façade et permettent un équilibre harmonieux entre la performance isolante de la façade, l’énergie solaire, le risque de surchauffe et la lumière naturelle. Les panneaux solaires de type BIPV, de différentes couleurs, offrent une capacité d’autoproduction énergétique et se marient avec l’architecture de l’ancienne tour.

Les façades extérieures, conçues comme façades légères de type rideau, ont été réalisées avec un système de châssis de fenêtre en aluminium isolant reposant ainsi sur des sous-constructions massives tamponnées en nez de dalle. En effet, le béton dégradé en bord de dalle a été scié pour fournir une surface d’appui saine au système porteur.

Planification de façades
BIFF, Genève
 

Construction de façades
Sottas, Bulle
 

Architecture
F. Baud & T. Früh – Atelier d’architecture

Vous trouverez d'autres projets soumis pour le PRIXFORIX 2024 dans notre dossier numérique et sur prixforix.ch

Étiquettes

Sur ce sujet