Cam­pus un­li­mi­trust, Prilly

Soumission PRIXFORIX 2024

Date de publication
17-04-2024

Le premier campus dédié à l’économie de la confiance offre 27'000 mètres carrés d’espace flexibles voués aux contacts et aux échanges dans une atmosphère douce, épurée et résolument moderne. Ces espaces intégralement vitrés, visent à inonder la bâtisse de lumière naturelle et à favoriser le bien-être au travail, assurance de créativité et d’innovation. SICPA, leader sur le marché des encres de sécurité, réunit dans un même lieu différents acteurs et entreprises portés par ce même objectif de recherches gravitant au cœur de la sécurité, de l’authentification, de la lutte contre la cybercriminalité et de la protections des donnée.

Afin d’offrir un maximum de surfaces vitrées, le campus se divise en quatre ailes de quatre étages chacune, dotées d’immenses terrasses orientées vers le lac Léman. Dix vastes passerelles relient ces divisions, créant ainsi un continuum architectural rejoignant le bâtiment historique à l’arrière.

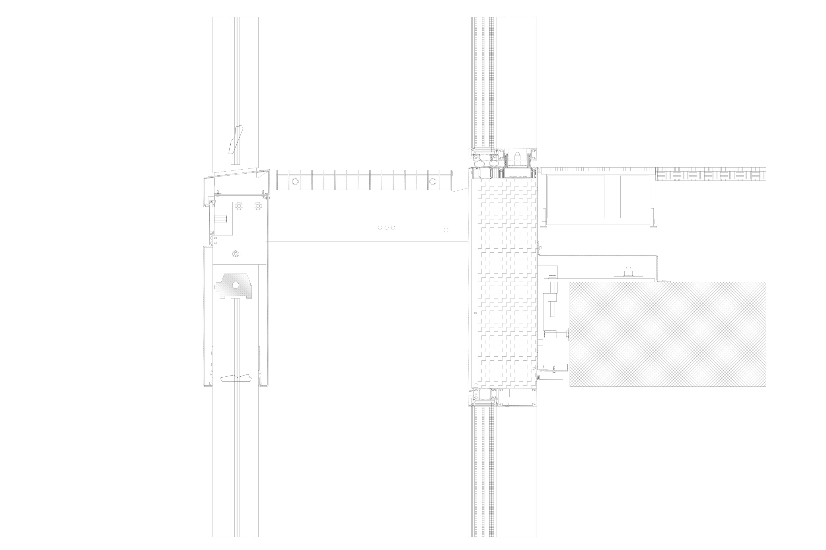
Pour concrétiser la vision de l’architecte, un prototype purement esthétique fut érigé afin de valider l’harmonie des teintes, en particulier celle de l’anodisation de la façade. Les stores, la forme des mains-courantes ou encore les grilles caillebotis ont également fait l’objet d’analyses détaillées. Trois verres composés de différentes couches de transmission lumineuse, montés dans le but de tester les jeux de lumière et la transparence influençant directement le confort intérieur, ont ainsi permis de conforter le concept de protection solaire naturelle. En effet grâce à sa position, la deuxième peau procure tant une protection solaire optimale en été qu’un apport de lumière intéressant à travers les stores à lamelles microperforés en hiver.

Composé de 12'000 m2 de façade, ce campus affiche fièrement sa forme atypique par ses nombreux décrochements et ses terrasses asymétriques. Un total de 2166 éléments, comprenant une soixantaine de types différents, contribuent à créer une géométrie distinctive.

Construction de façades
SOTTAS, Bulle
 

Architecture
RDR architectes, Lausanne
 

Ingénieur Civil
Ingeni, Lausanne
 

Maître d'ouvrage
Sicpa, Prilly

Vous trouverez d'autres projets soumis pour le PRIXFORIX 2024 dans notre dossier numérique et sur prixforix.ch

Étiquettes

Sur ce sujet